模型详情
1/8
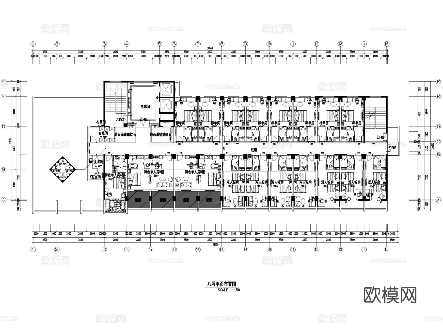
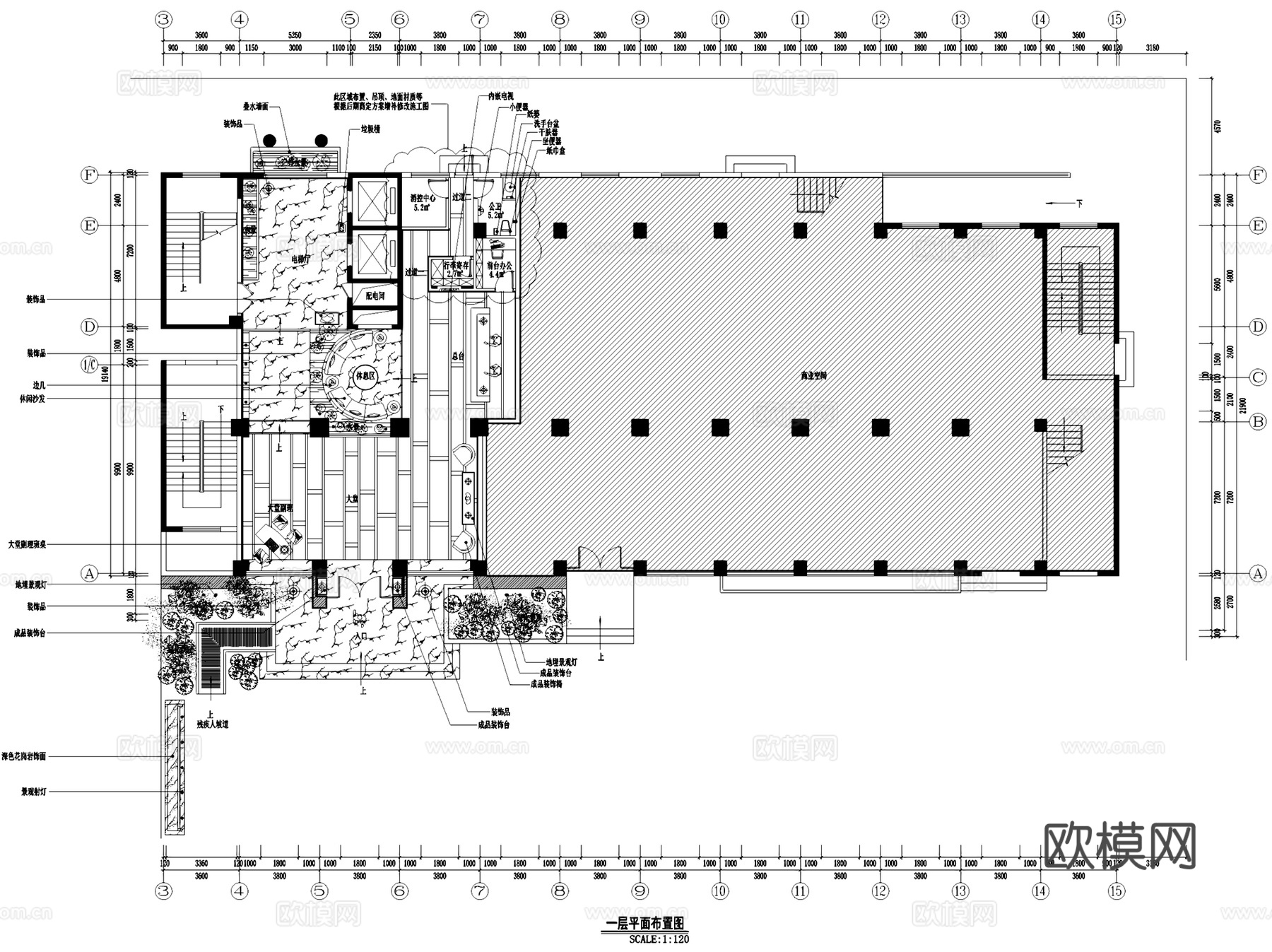
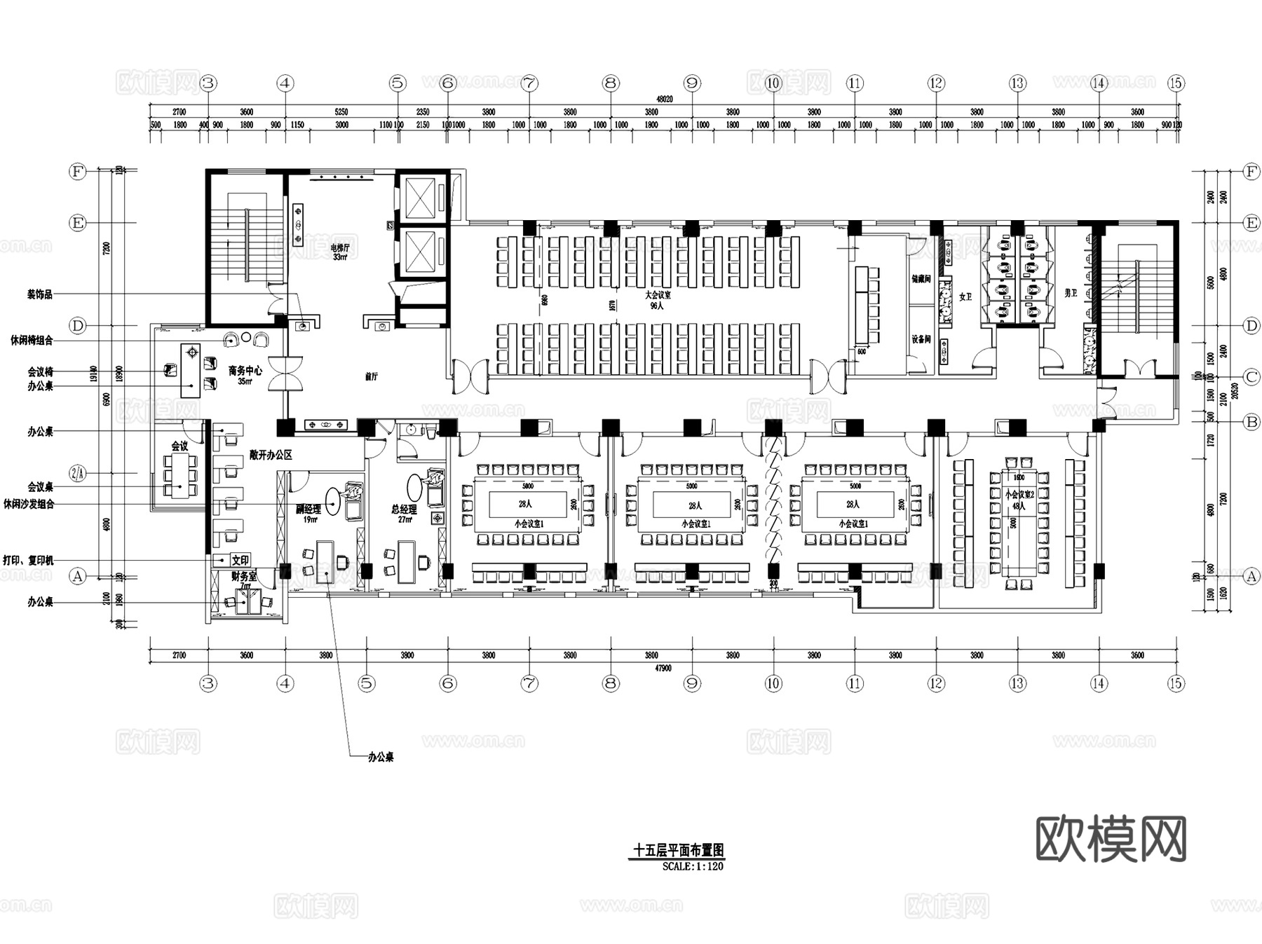
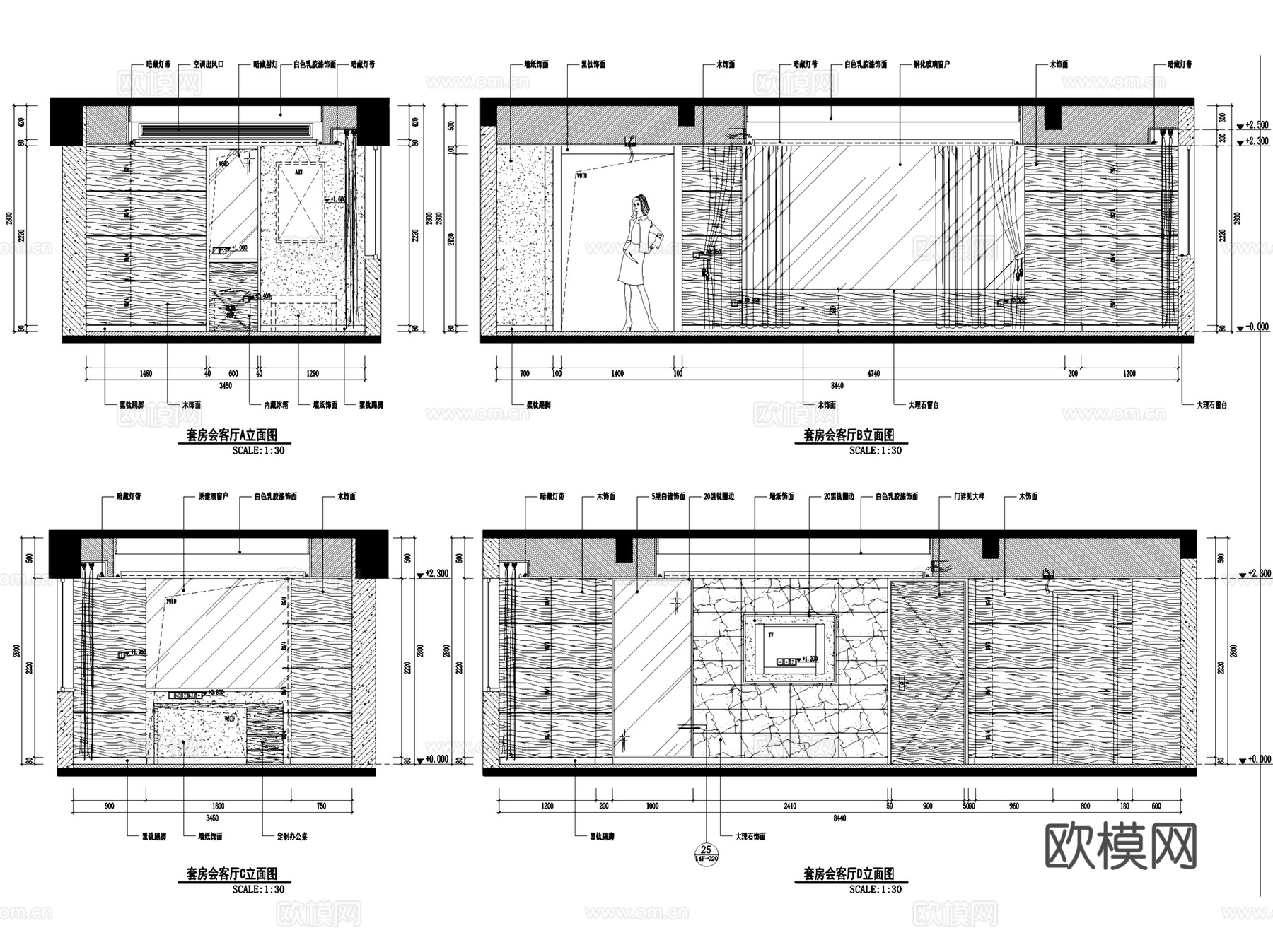
福州教育宾馆新濠酒店室内工装CAD施工图cad施工图
ID:
5092654
福州教育宾馆新濠酒店室内工装CAD施工图cad施工图 ID-5092654
所需欧币:
36
发布时间:
2025-10-23
下载请使用电脑登录欧模网,建议先收藏
收藏
分享
皮肤干燥
关注
为您推荐
福州铭濠泰式SPA会所室内工装CAD施工图cad施工图
中式宾馆酒店室内工装CAD施工图cad施工图
福州温泉公园酒店大堂及客房室内工装CAD施工图cad施工图
新锦城宾馆酒店建筑CAD施工图cad施工图
铭濠酒店四层茶室茶会所室内工装CAD施工图cad施工图
亲江一帆宾馆酒店室内工装CAD施工图cad施工图
福州曼丹养生馆会所室内工装CAD施工图cad施工图
新后街酒吧简餐室内工装CAD施工图cad施工图
福州凯乐福皮居展厅室内工装CAD施工图整套cad施工图
福州朗雅汇海鲜主题餐厅室内工装CAD施工图整套cad施工图
平顶山建国迎宾馆酒店室内工装CAD施工图cad施工图
福州尚宾路口得悦饭庄餐厅室内工装CAD施工图cad施工图
天骄宾馆四季厅室内工装CAD施工图cad施工图
绍兴园林会议酒店室内工装CAD施工图cad施工图
新荣记上海店海鲜餐厅室内工装CAD施工图整套cad施工图
巴宝莉BURBERRY福州东方店服装店室内工装CAD施工图cad施工图
青岛德馨温泉酒店室内工装CAD施工图cad施工图
四甲大酒店餐厅室内工装CAD施工图cad施工图
福清卓越酒店大堂及餐厅室内工装CAD施工图cad施工图
酒店首层及客房层室内工装平面CAD施工图cad施工图
点击加载更多
分享到
复制链接
保存海报
取消
请选择收藏夹
+新增收藏夹
新增收藏夹
取消
确认
退出查看