模型详情
1/8
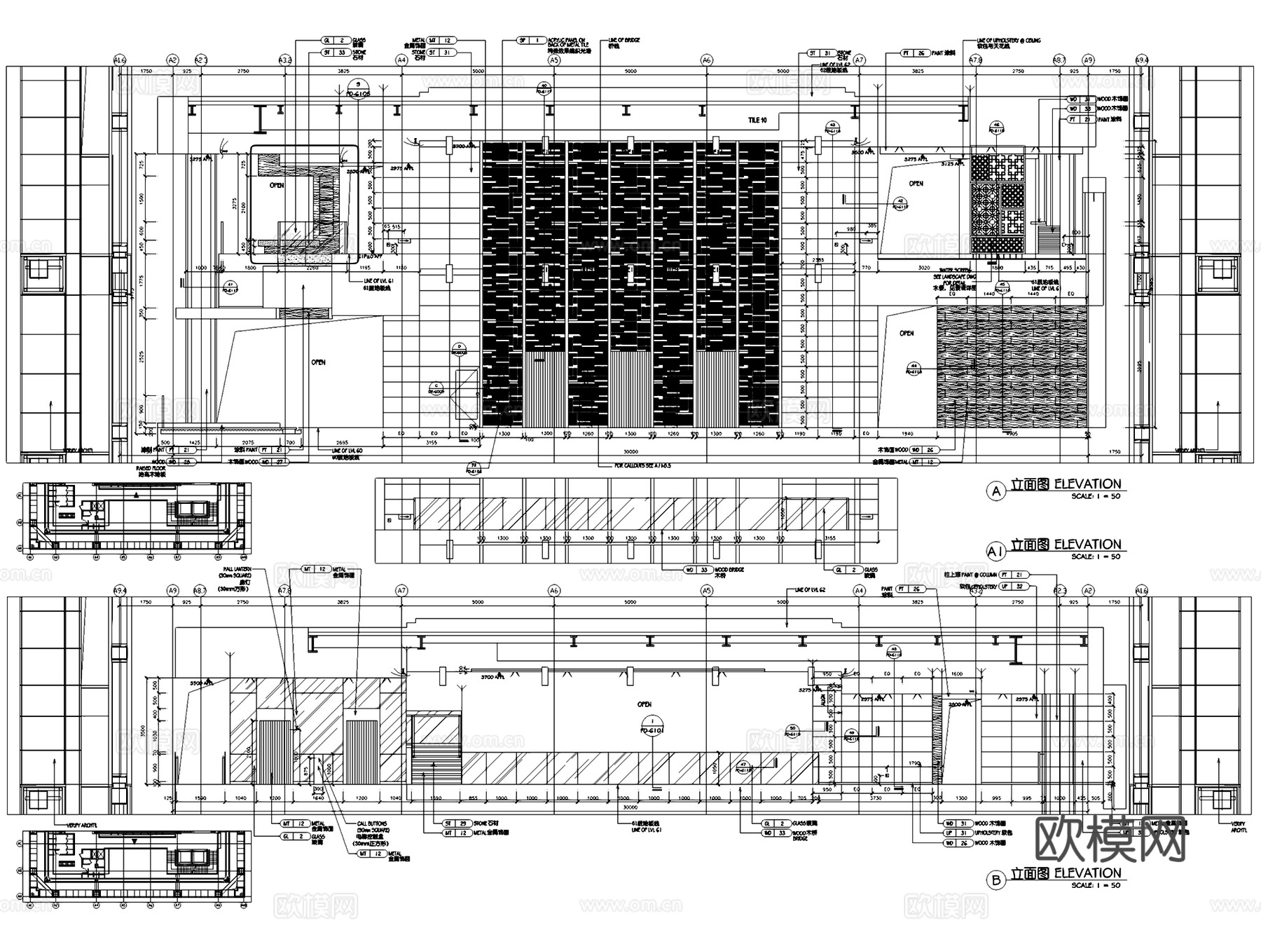
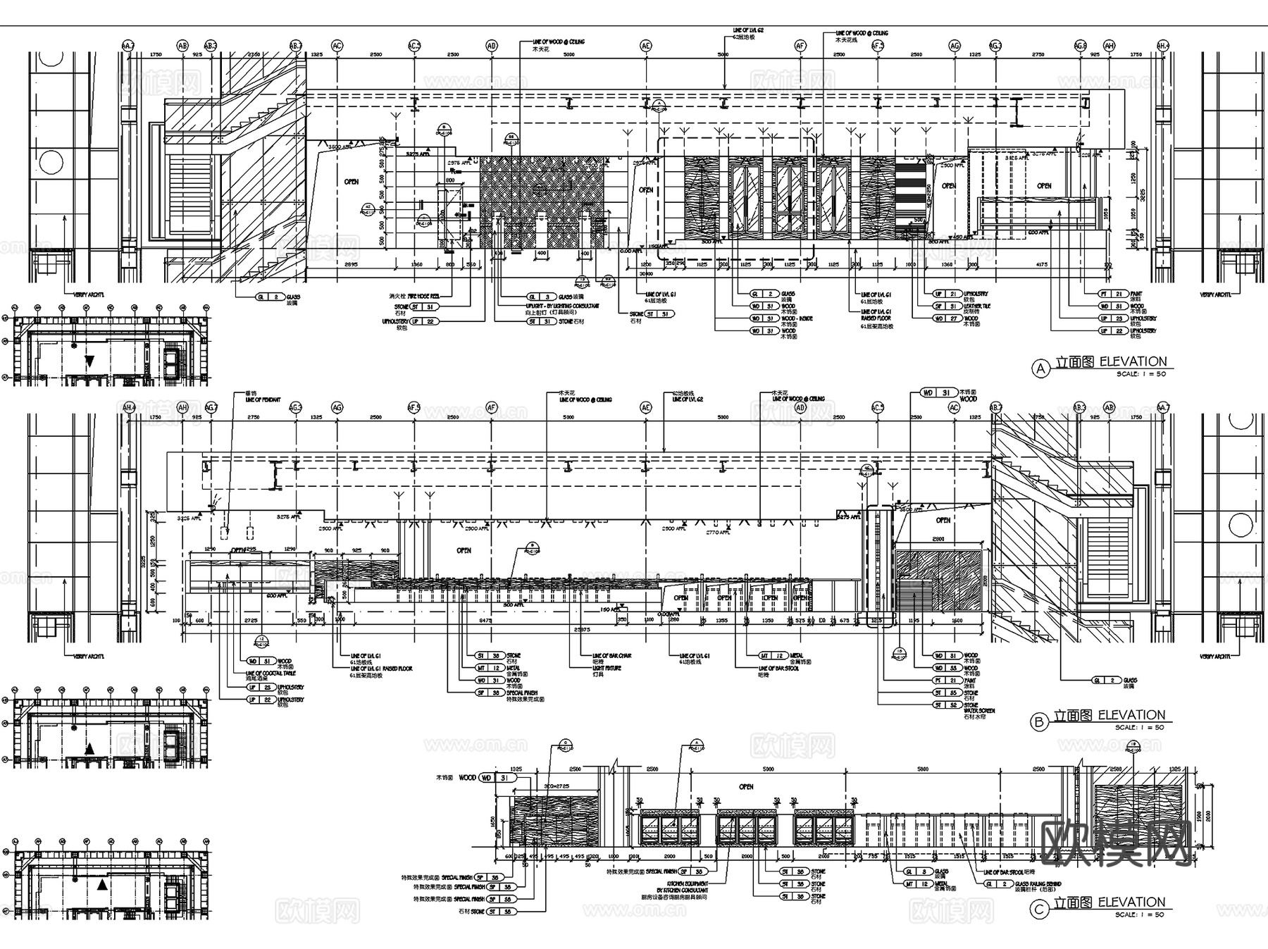
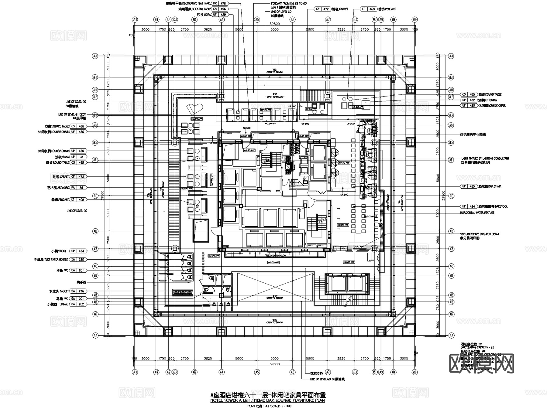
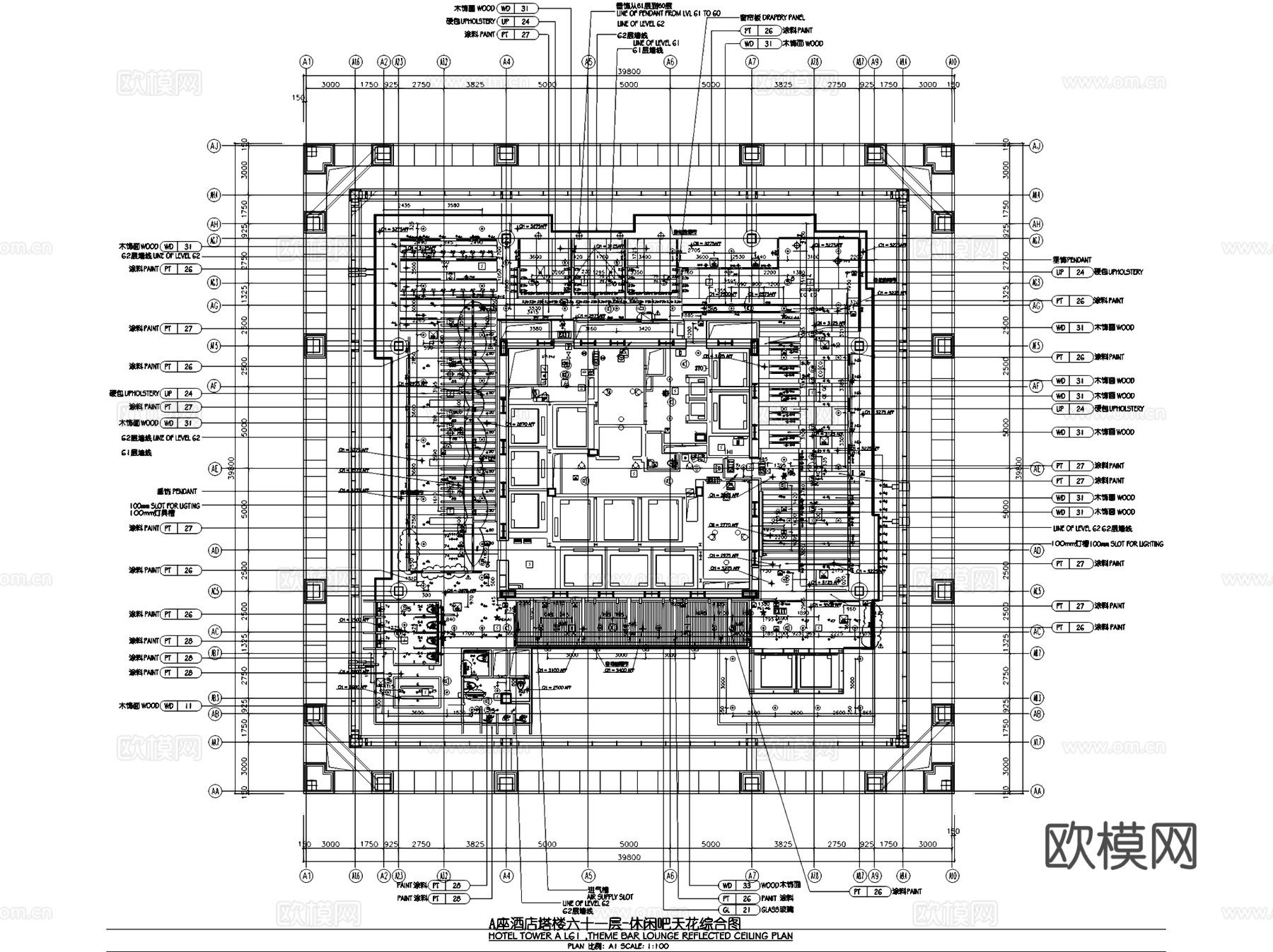
北京银泰中心柏悦酒店61层休闲吧室内工装CAD施工图cad施工图
ID:
5126149
北京银泰中心柏悦酒店61层休闲吧室内工装CAD施工图cad施工图 ID-5126149
所需欧币:
36
发布时间:
2025-11-03
下载请使用电脑登录欧模网,建议先收藏
收藏
分享
皮肤干燥
关注
为您推荐
榕泰公馆会所室内工装CAD施工图cad施工图
北京闽商会会所室内工装CAD施工图cad施工图
北京Fimes衣柜展厅室内工装CAD施工图cad施工图
凯乐福玻璃北京展厅室内工装CAD施工图整套cad施工图
PASQUIER柏诗姬专柜服装店室内工装CAD施工图cad施工图
酒店首层及客房层室内工装平面CAD施工图cad施工图
影帝天池之星宾馆洗浴中心室内工装CAD施工图cad施工图
室内工装综合CAD图库cad施工图
北京大家之家红木家具展厅室内工装CAD施工图cad施工图
同和文化休闲中心B栋会所室内工装CAD施工图cad施工图
湛江足浴店室内工装CAD施工图cad施工图
室内工装家装综合CAD图库cad施工图
室内综合工装图库CADcad施工图
西安蔚来汽车用户体验中心室内工装CAD施工图整套cad施工图
供电局客服中心节能展厅改造室内工装CAD施工图整套cad施工图
欧式福清KTV会所室内工装CAD施工图cad施工图
北京SKP古驰Gucci奢侈品品牌服饰店室内工装CAD施工图cad施工图
银河国际中心蔚来汽车展厅室内工装CAD施工图整套cad施工图
北京欧式二层复式室内家装CAD施工图cad施工图
室内平立面工装综合图库CADcad施工图
点击加载更多
分享到
复制链接
保存海报
取消
请选择收藏夹
+新增收藏夹
新增收藏夹
取消
确认
退出查看