模型详情
1/8
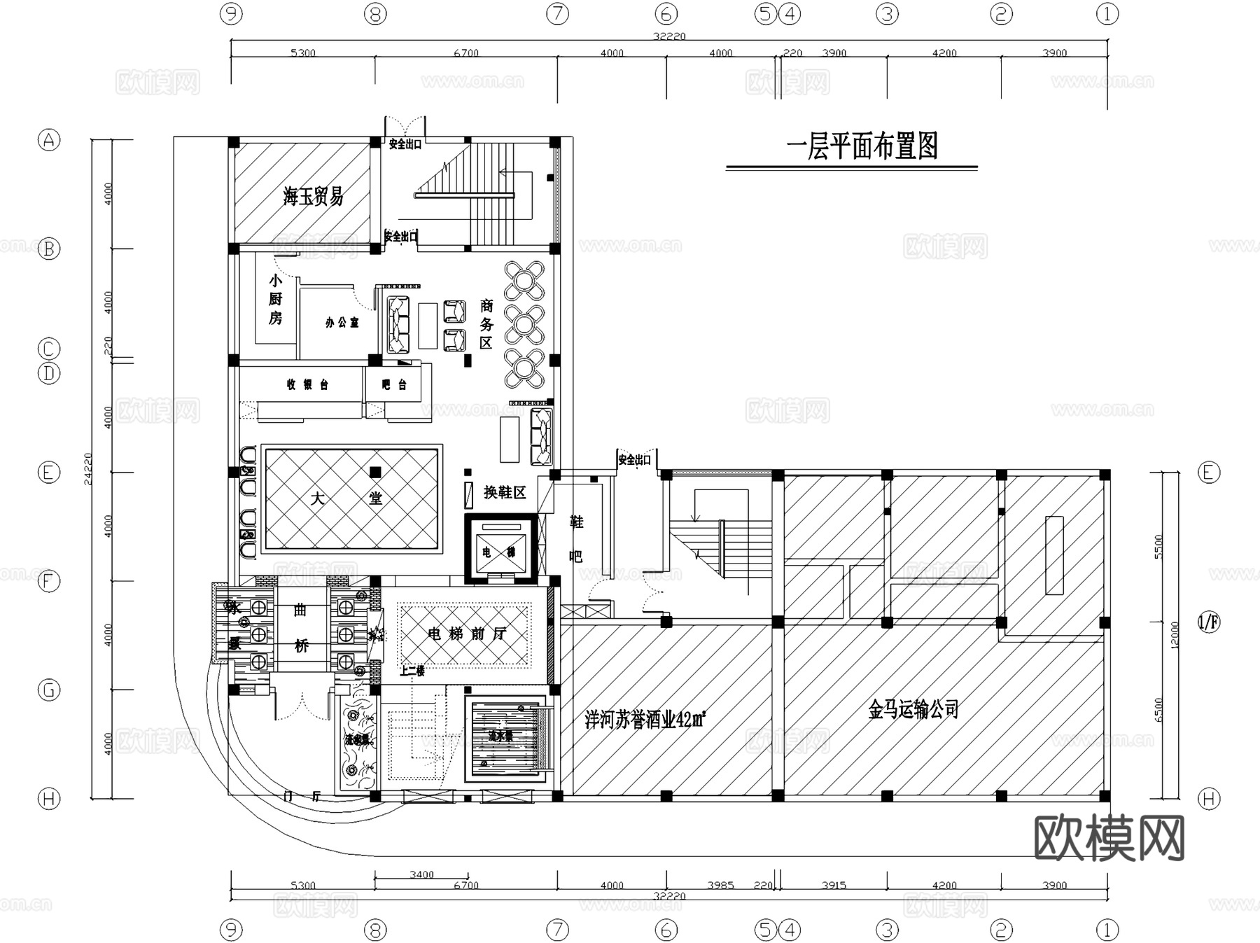
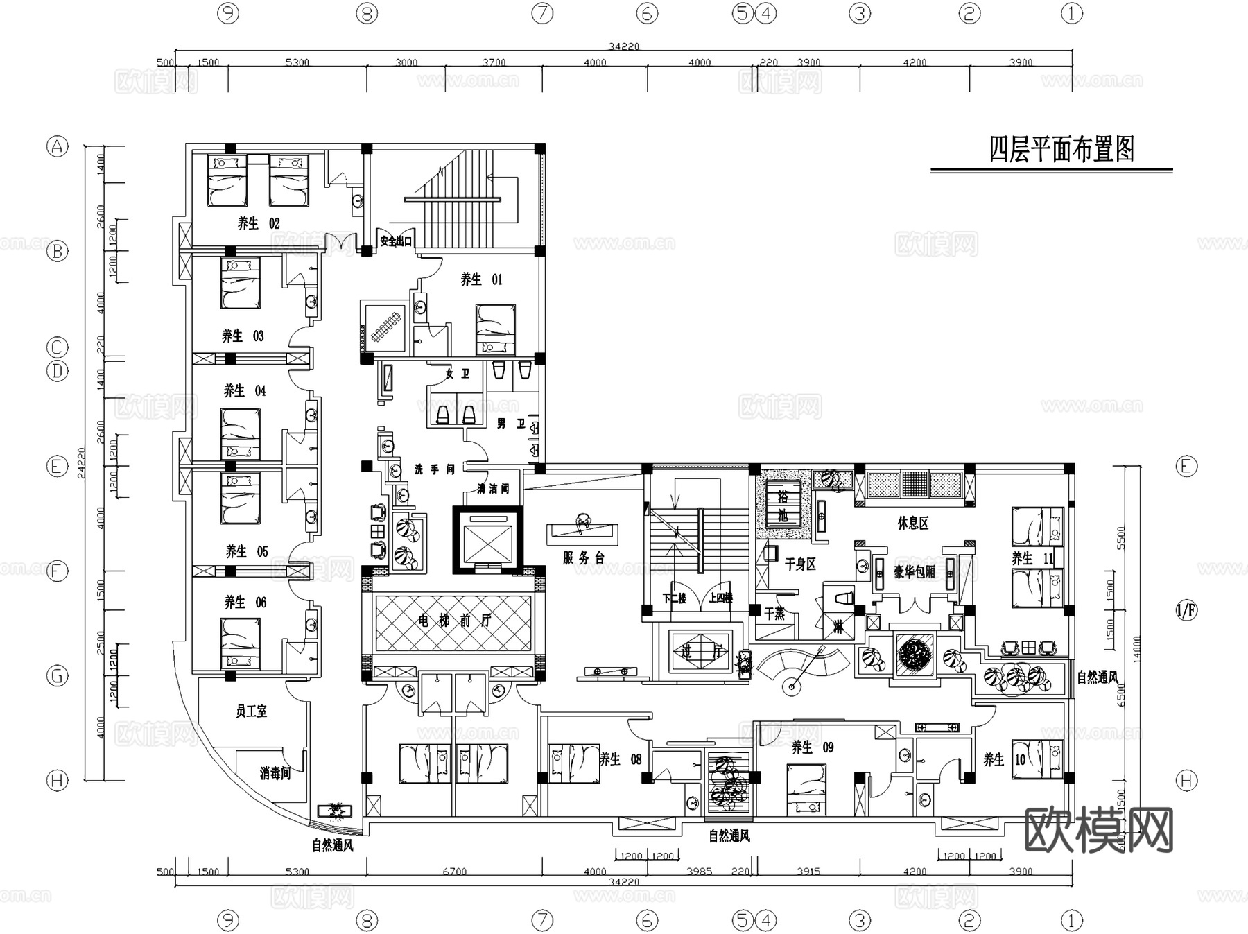
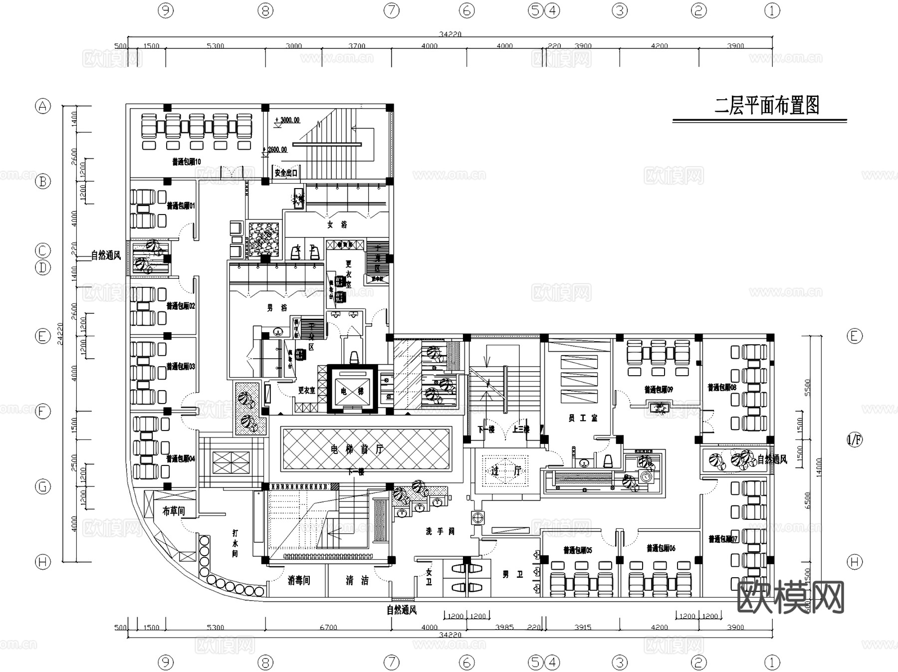
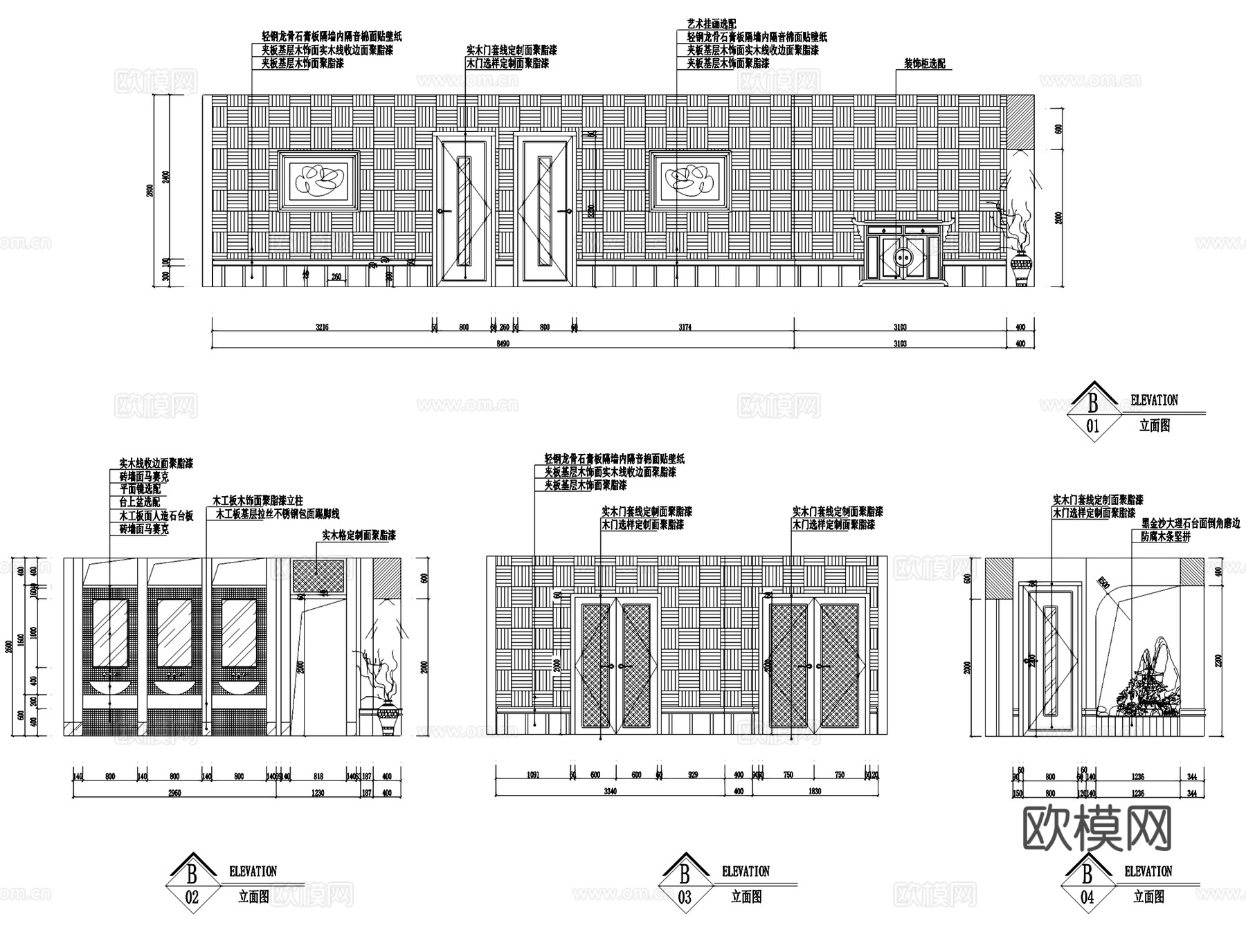
湛江足浴店室内工装CAD施工图cad施工图
ID:
5354496
湛江足浴店室内工装CAD施工图cad施工图 ID-5354496
所需欧币:
16
发布时间:
2026-01-29
下载请使用电脑登录欧模网,建议先收藏
收藏
分享
皮肤干燥
关注
为您推荐
VAMPIR婚纱专卖店室内工装CAD施工图cad施工图
MIEN STUNNING服装店室内工装CAD施工图cad施工图
酒店首层及客房层室内工装平面CAD施工图cad施工图
Boutique新乡韩文店服装店室内工装CAD施工图整套cad施工图
室内工装综合CAD图库cad施工图
最新全套 足浴店 施工图合集cad施工图
最新全套 足浴店 施工图合集cad施工图
巴黎派蒂斯面包店室内工装CAD施工图cad施工图cad施工图
南京MINI MOOK句容店服装店室内工装CAD施工图整套cad施工图
46㎡现代AIGLE服装专卖店室内工装CAD施工图cad施工图
SAKURA HOUSE樱舍服装店室内工装CAD施工图cad施工图
现代59㎡幸会服装店室内工装CAD施工图cad施工图
60㎡魅惑衣族服装店室内工装CAD施工图cad施工图
IZOLA上海漫游城服装店室内工装CAD施工图cad施工图
Sheng Gen生根时尚服装店室内工装CAD施工图cad施工图
最新30套 spa 足浴店 施工图合集cad施工图cad施工图
包头TBALLER潮牌服装店室内工装CAD施工图cad施工图cad施工图
室内工装家装综合CAD图库cad施工图
室内综合工装图库CADcad施工图
巴宝莉BURBERRY福州东方店服装店室内工装CAD施工图cad施工图
点击加载更多
分享到
复制链接
保存海报
取消
请选择收藏夹
+新增收藏夹
新增收藏夹
取消
确认
退出查看