模型详情
1/8
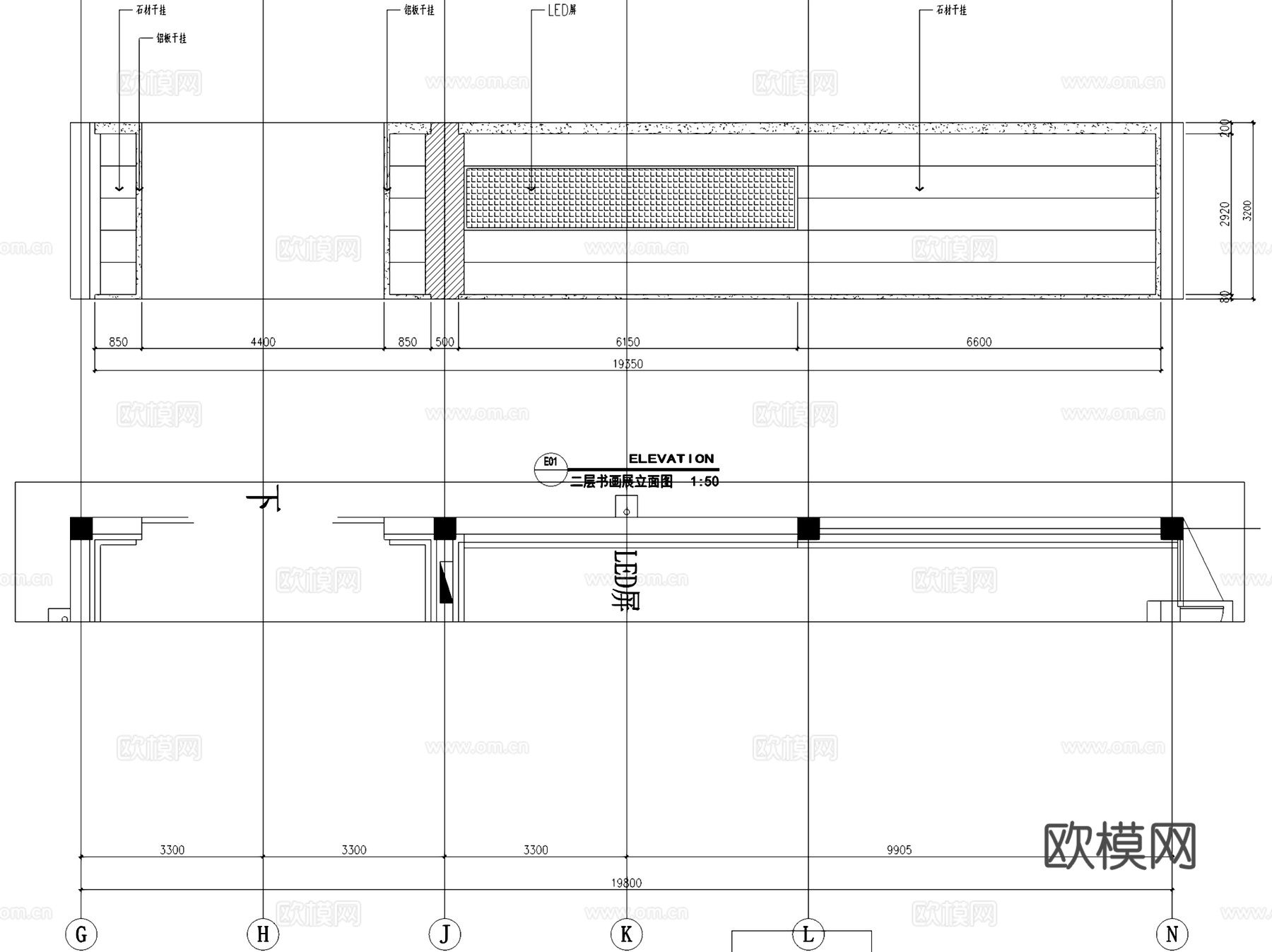
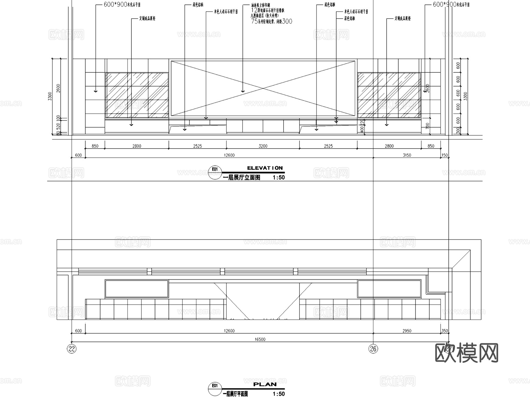
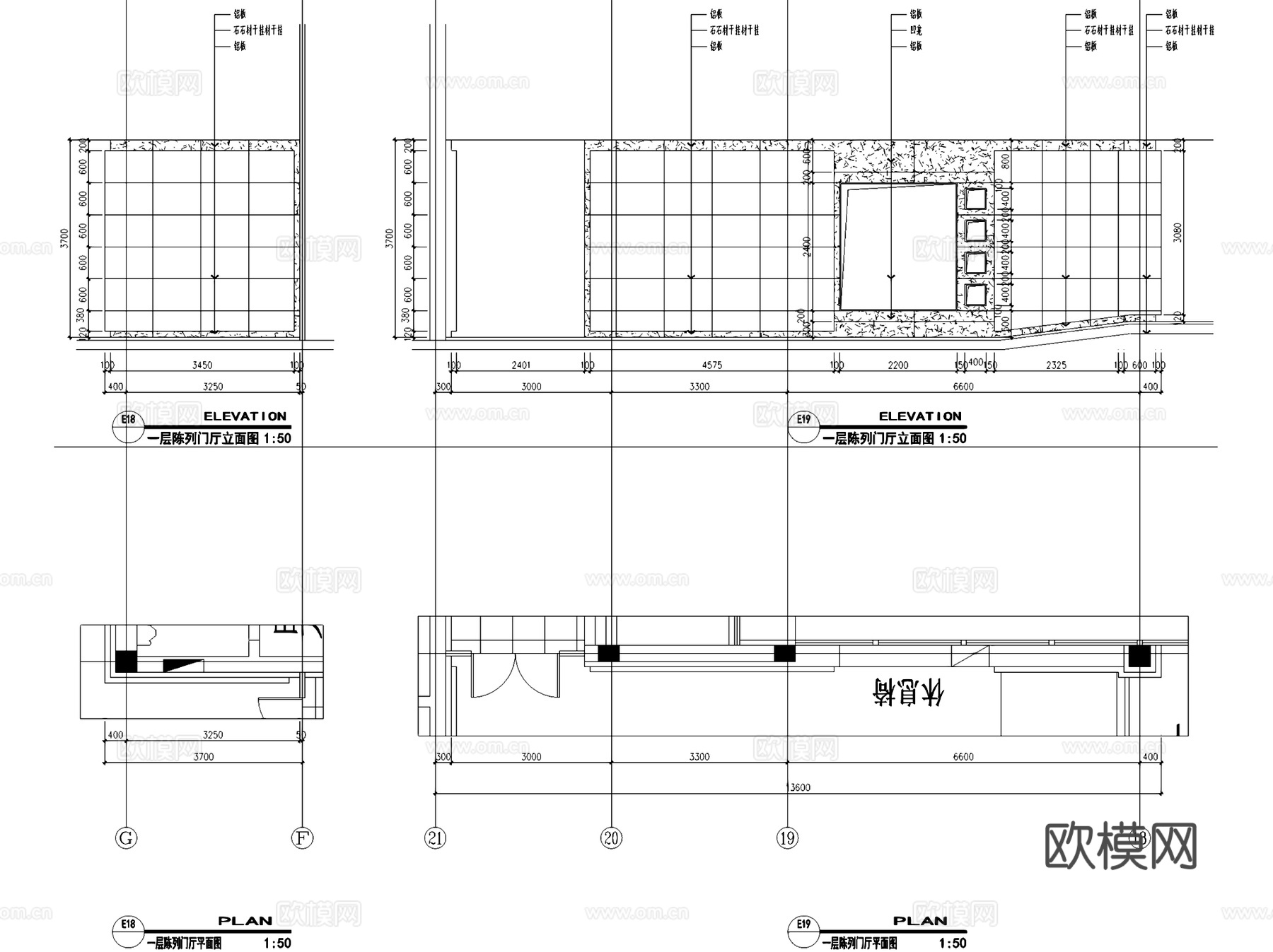
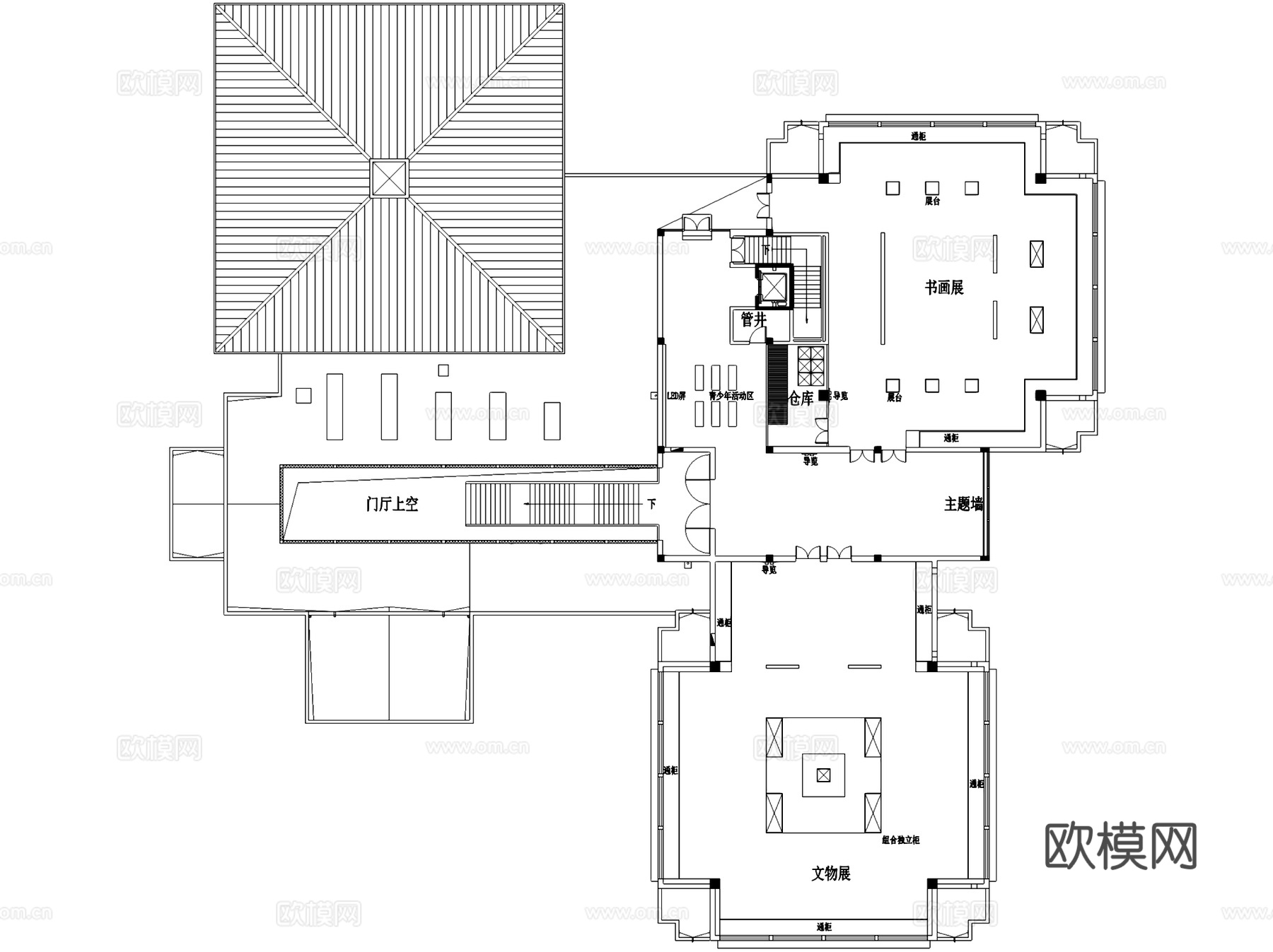
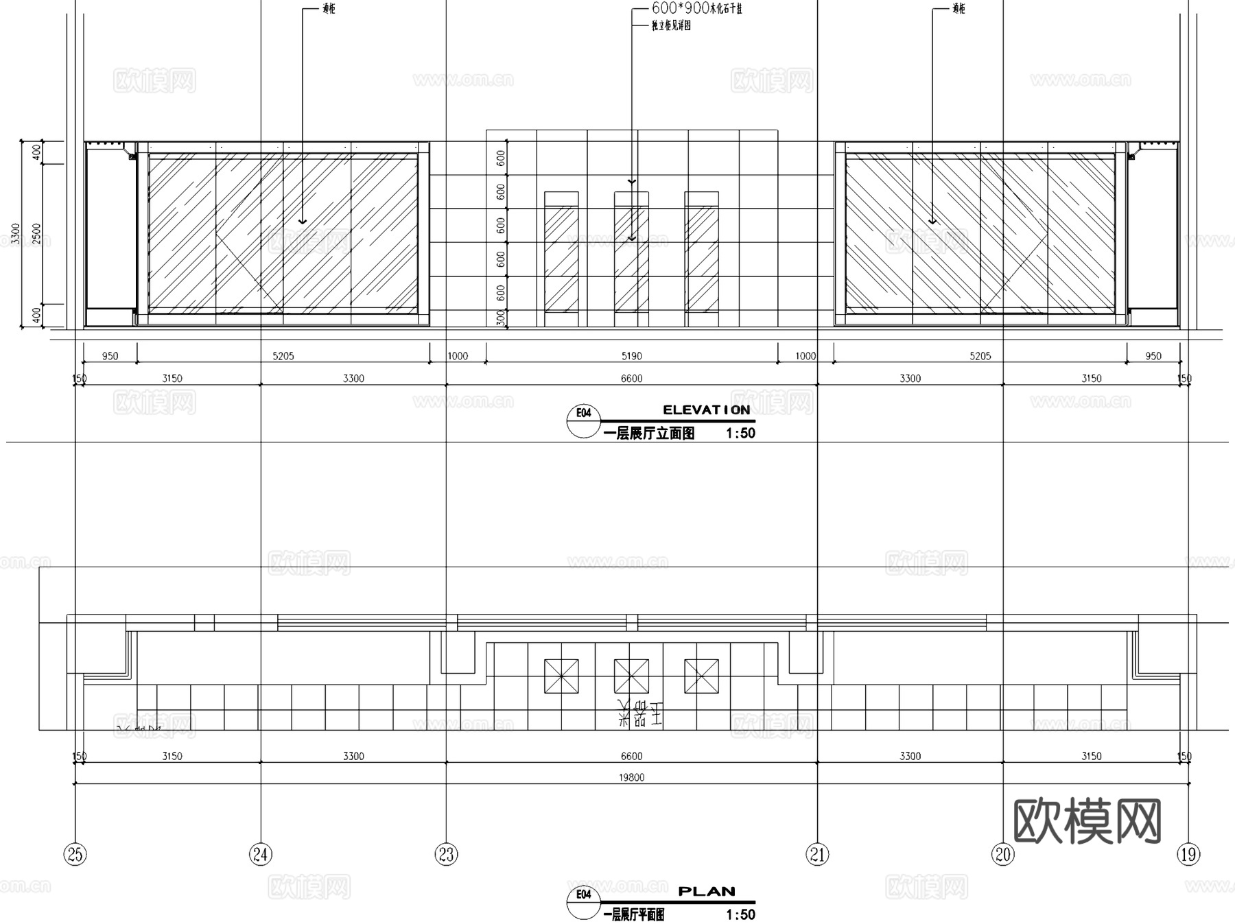
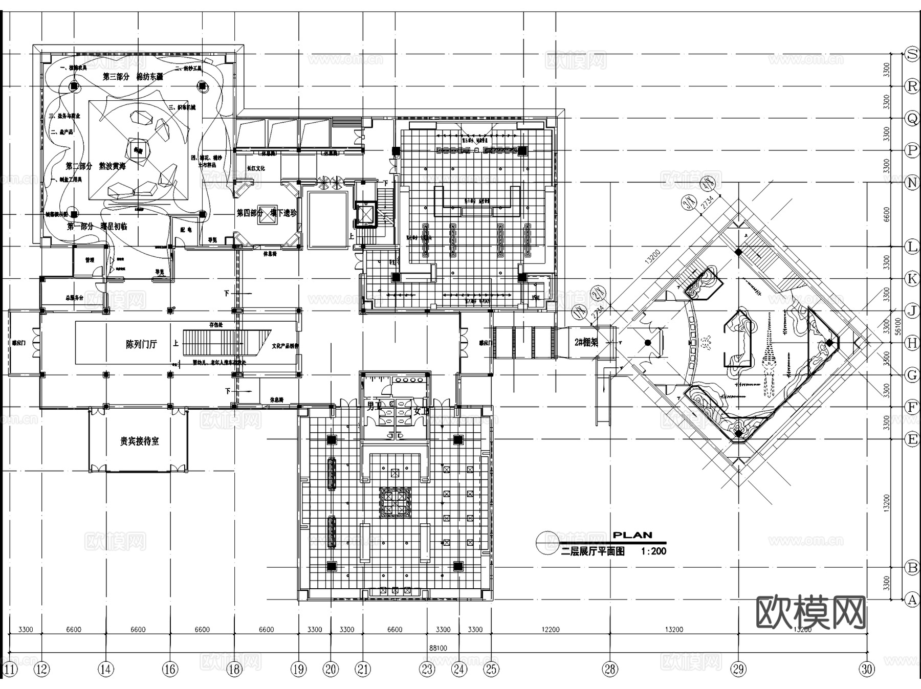
南通博物苑非遗文化展厅室内工装CAD施工图+文本cad施工图
ID:
5126187
南通博物苑非遗文化展厅室内工装CAD施工图+文本cad施工图 ID-5126187
所需欧币:
36
发布时间:
2025-11-03
下载请使用电脑登录欧模网,建议先收藏
收藏
分享
皮肤干燥
关注
为您推荐
INVSON应尚服饰展厅室内工装CAD施工图整套+文本cad施工图
北京鹿鸣书苑咖啡馆室内改造工装CAD施工图整套+文本cad施工图
牡丹苑大酒店餐厅室内工装CAD施工图cad施工图
长威科技软件园企业展厅室内工装CAD施工图整套+文本cad施工图
景德镇中国陶瓷博物馆展厅装修室内工装CAD施工图整套cad施工图
苏州博物馆新馆室内工装CAD施工图cad施工图
ZhouYan洲艳服饰展厅室内工装CAD施工图cad施工图
北京Fimes衣柜展厅室内工装CAD施工图cad施工图
嘉里40F前海住宅项目展厅室内工装CAD施工图+文本cad施工图
汉文化博览园汉源博物馆立面室内工装CAD施工图cad施工图
洛阳凯悦酒店室内工装平面CAD施工图+文本cad施工图
长沙洞庭鱼谣餐厅室内工装CAD施工图整套+文本cad施工图
凯乐福玻璃北京展厅室内工装CAD施工图整套cad施工图
腾冲腾贤苑31栋精品酒店室内工装CAD施工图cad施工图
安徽饭店酒店扩建室内工装CAD施工图整套+文本cad施工图
重庆轨道集团李子坝展厅室内工装CAD施工图整套cad施工图
广东连南瑶族博物馆展厅室内平面CAD施工图cad施工图
虹桥文化艺术中心 电影院改造室内工装CAD施工图+文本cad施工图
六十平方米服装展厅室内工装CAD施工图cad施工图
福州凯乐福皮居展厅室内工装CAD施工图整套cad施工图
点击加载更多
分享到
复制链接
保存海报
取消
请选择收藏夹
+新增收藏夹
新增收藏夹
取消
确认
退出查看