模型详情
1/4
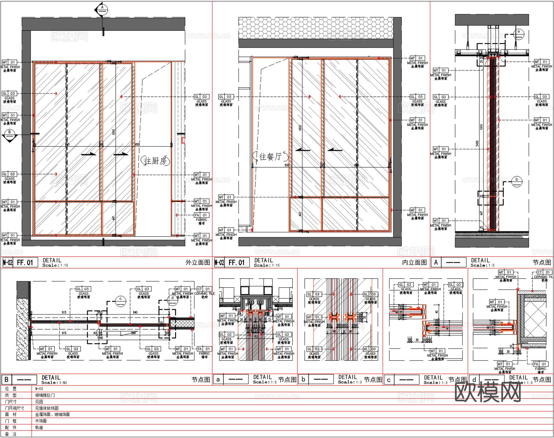
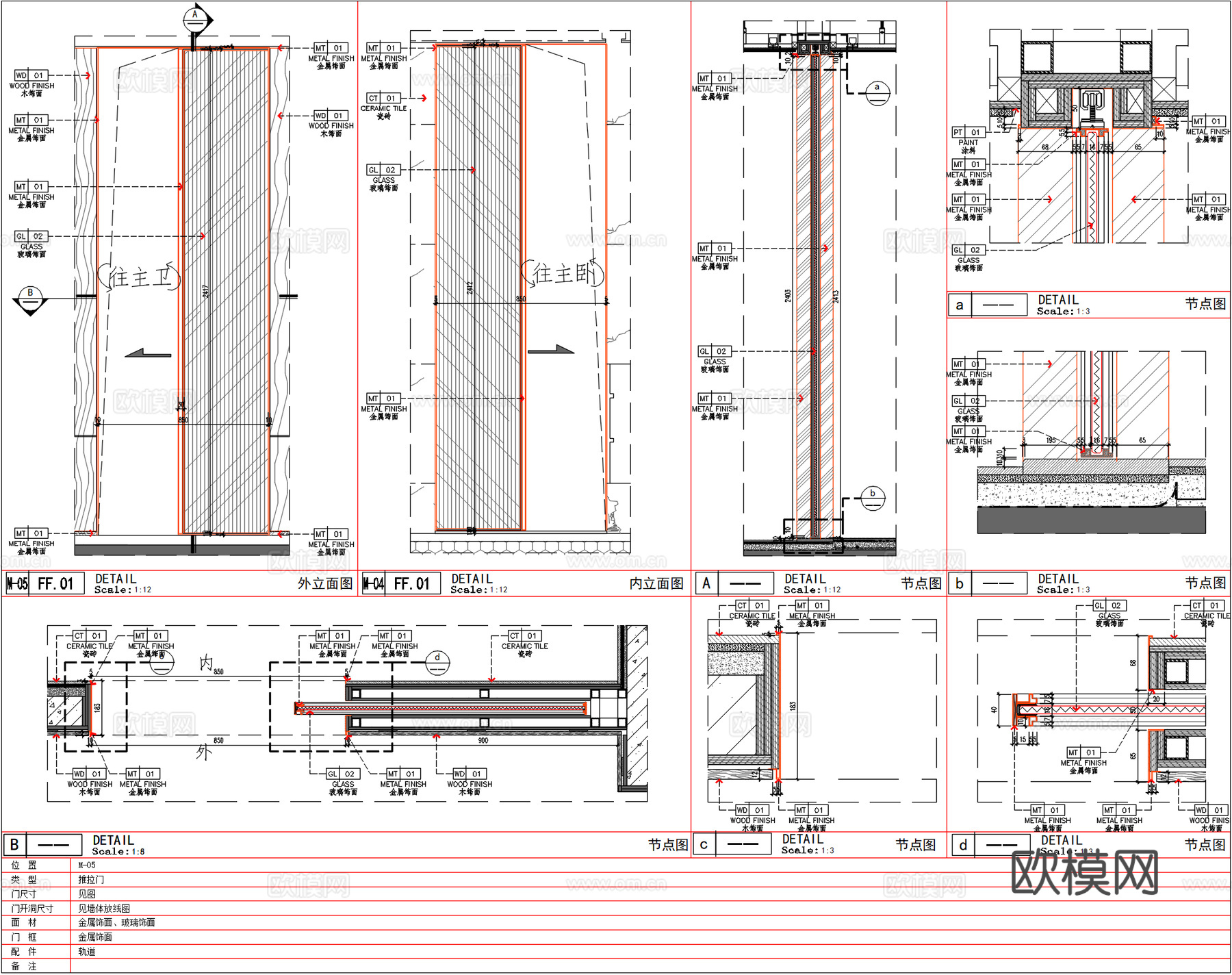
轨道玻璃折叠门、金属框玻璃推拉门、不锈钢玻璃口袋门、玻璃门cad施工图
ID:
5126414
轨道玻璃折叠门、金属框玻璃推拉门、不锈钢玻璃口袋门、玻璃门cad施工图 ID-5126414
所需欧币:
56
发布时间:
2025-11-03
下载请使用电脑登录欧模网,建议先收藏
收藏
分享
室内设计大哥大
关注
为您推荐
玻璃门 玻璃推拉门 办公推拉门 玻璃门节点cad施工图
推拉门 夹丝玻璃门 不锈钢玻璃门 门节点cad施工图
长虹玻璃门 推拉门 厨房玻璃门 门节点cad施工图
推拉门 门节点 厨房玻璃门 夹丝玻璃门cad施工图
长虹玻璃门 推拉玻璃门 玻璃移门 门节点cad施工图
夹丝玻璃门 金属玻璃门 厨房移门 现代玻璃门 门节点cad施工图
卫生间玻璃门 门节点 单开玻璃门节点 玻璃门cad施工图
厨房玻璃门 玻璃推拉门 艺术门 门节点图cad施工图
钢化玻璃门 单开玻璃门 办公室玻璃门 门节点cad施工图
钢化玻璃门 办公区玻璃门 双开玻璃门 门节点cad施工图
现代移门 玻璃门节点 灰色茶玻推拉门 玻璃移门cad施工图
办公室玻璃门 卫生间玻璃门 平开单开玻璃门 门节点cad施工图
厨房推拉门 现代推拉门 玻璃门 门节点图cad施工图
玻璃门 推拉门 衣帽间隐门 门节点cad施工图
9套型材玻璃门CAD详图cad施工图
商铺玻璃门节点详图cad施工图
玻璃门窗安装详图cad施工图
玻璃门立面图 客厅阳台玻璃门 墙面布局图 节点图cad施工图
实木门 推拉门节点 玻璃门节点 单双开门 CAD施工图cad施工图
隐形门节点洗手间暗门钢化玻璃门CADcad施工图
点击加载更多
分享到
复制链接
保存海报
取消
请选择收藏夹
+新增收藏夹
新增收藏夹
取消
确认
退出查看