模型详情
1/2
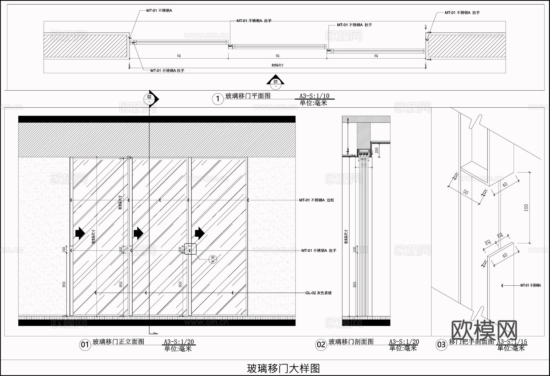
现代移门 玻璃门节点 灰色茶玻推拉门 玻璃移门cad施工图
ID:
5316257
现代移门 玻璃门节点 灰色茶玻推拉门 玻璃移门cad施工图 ID-5316257
所需欧币:
36
发布时间:
2026-01-15
下载请使用电脑登录欧模网,建议先收藏
收藏
分享
妮子1973
关注
为您推荐
长虹玻璃门 推拉玻璃门 玻璃移门 门节点cad施工图
夹丝玻璃门 金属玻璃门 厨房移门 现代玻璃门 门节点cad施工图
木门 移门立面图 卫生间移门 门套节点 移门节点cad施工图
玻璃门 玻璃推拉门 办公推拉门 玻璃门节点cad施工图
长虹玻璃门 推拉门 厨房玻璃门 门节点cad施工图
烤漆板推拉门 门节点 衣帽间移门 双向推拉门cad施工图
推拉门 门节点 厨房玻璃门 夹丝玻璃门cad施工图
单向推拉门 玻璃推拉门 大堂玻璃门 门节点cad施工图
暗门详图超高超重门做法地弹簧玻璃门移门剖面详图节点CAD素材cad施工图
仓库平移门 厂房推拉门 仓库移门 工业推拉门 库房滑动门cad施工图
推拉门 夹丝玻璃门 不锈钢玻璃门 门节点cad施工图
卫生间玻璃门 门节点 单开玻璃门节点 玻璃门cad施工图
玻璃门节点 健身房玻璃门 双开玻璃门cad施工图
现代玻璃门 单开门平开门 玻璃移门 卫生间门衣帽间门 门节点cad施工图
衣柜双移门、三移门内部结构CADcad施工图
玻璃门 推拉门 衣帽间隐门 门节点cad施工图
卫生间玻璃门节点cad施工图
实木门 推拉门节点 玻璃门节点 单双开门 CAD施工图cad施工图
不锈钢玻璃门节点CAD施工图cad施工图
卫生间移门 影木木门 单开门 推拉门 门节点cad施工图
点击加载更多
分享到
复制链接
保存海报
取消
请选择收藏夹
+新增收藏夹
新增收藏夹
取消
确认
退出查看