模型详情
1/2
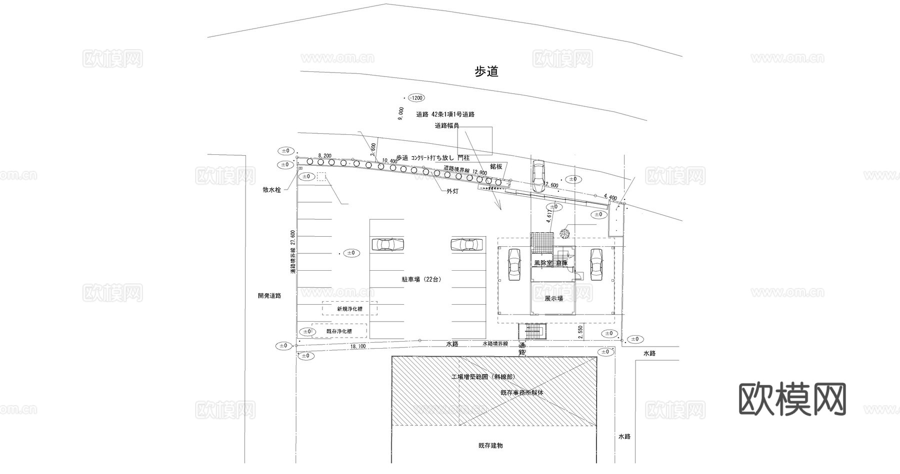
园区工厂办公建筑厂房cad施工图
ID:
5164550
园区工厂办公建筑厂房cad施工图 ID-5164550
所需欧币:
36
发布时间:
2025-11-14
下载请使用电脑登录欧模网,建议先收藏
收藏
分享
RenderTime
关注
为您推荐
厂房建筑 多层住宅 办公建筑 学校建筑 公园平立面图纸cad施工图
厂房通风天窗cad施工图
面包蛋糕月饼糕点食品工厂车间CAD施工图集cad施工图
工厂改造匆匆那年主题餐厅室内工装CAD施工图+SUcad施工图
工厂办公楼建筑平立面图纸cad施工图
凯里食用菌产业园冷库厂房综合楼建筑CAD施工图全套cad施工图
厂房 养鸡场 养殖场 鸡舍 禽类养殖场 鸡圈cad施工图
中民筑友长沙产业园1#实验工厂办公室室内工装CAD施工图cad施工图
钢构工业仓库 钢结构厂房 钢架仓库 工业钢结构库房 轻型钢构cad施工图
家电CAD图库cad施工图cad施工图
现代风庭院CAD施工图cad施工图
隔音门CAD施工图cad施工图
景观庭院CAD施工图cad施工图
CAD图库cad施工图
样板房施工图cad施工图cad施工图
半亭施工图CADcad施工图
采光井做法CAD施工图cad施工图
中式如意纹cad施工图cad施工图
保安亭CAD施工图cad施工图
欧式别墅施工图cadcad施工图
点击加载更多
分享到
复制链接
保存海报
取消
请选择收藏夹
+新增收藏夹
新增收藏夹
取消
确认
退出查看