模型详情
1/7
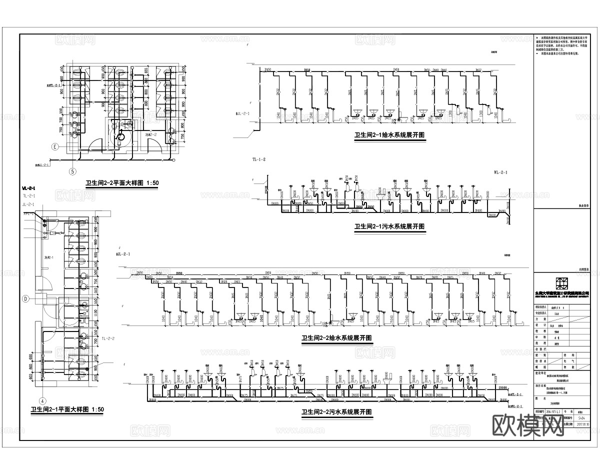
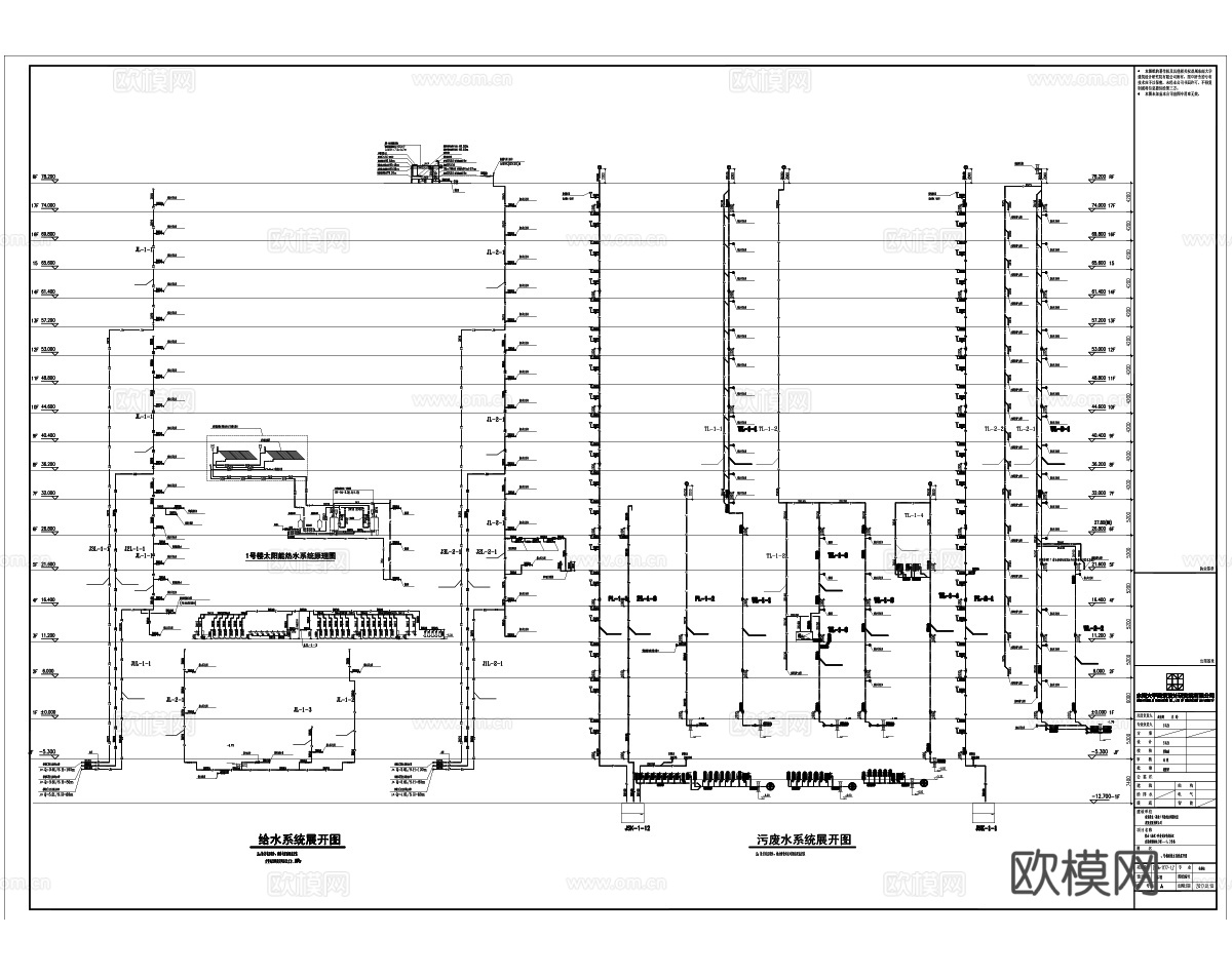
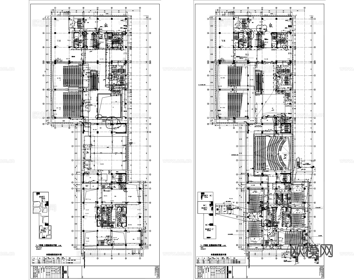
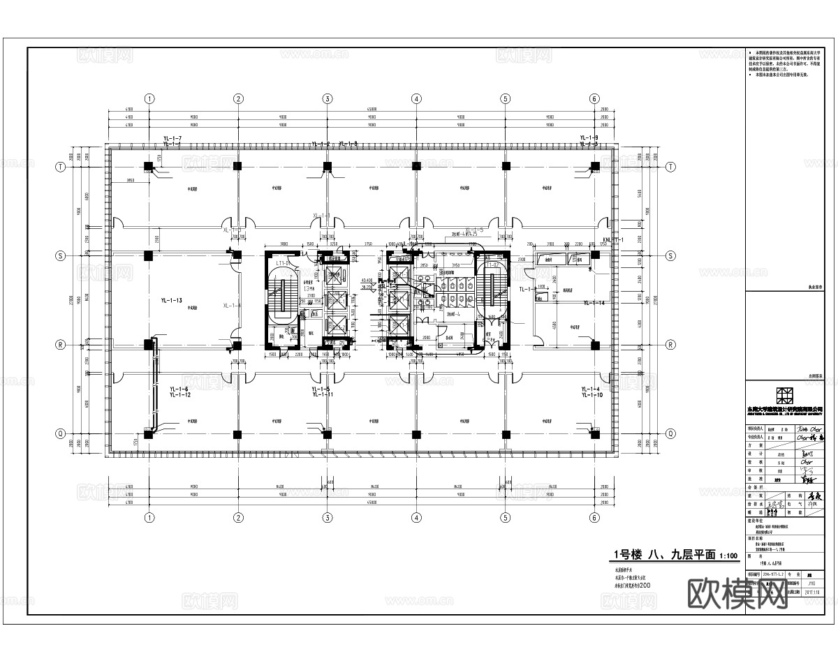
大型办公建筑给排水消防给排水施工图卫生间给排水大样图cad施工图
ID:
5259447
大型办公建筑给排水消防给排水施工图卫生间给排水大样图cad施工图 ID-5259447
所需欧币:
66
发布时间:
2025-12-23
下载请使用电脑登录欧模网,建议先收藏
收藏
分享
CCD设计师
关注
为您推荐
排水沟节点 排水暗沟 CAD施工图cad施工图
给排水节点详图 排水井 线性排水沟cad施工图
排水沟节点 篦子 排水盖板 CAD施工图cad施工图
排水沟节点 地坪排水导沟 CAD施工图cad施工图
排水沟节点 篦子 给排水节点详图cad施工图
排水沟节点 排水口盖板CAD施工图cad施工图
市政给排水_排水沟_排水沟盖板_灌溉沟_灌溉渠_施工图CADcad施工图
排水防水cad施工图cad施工图
排水沟节点 不锈钢排水导沟 CAD施工图cad施工图
排水沟CAD施工图cad施工图
线性排水沟 工字排水沟 缝隙式排水沟cad施工图
卫生间给排水系统图cad施工图
排水沟盖板雨水口给排水节点CAD施工图集 13套cad施工图
屋面透水盲管布置 排水盲沟 泄水口 排水管节点 建筑给排水cad施工图cad施工图
雨水收集口排水管排水井盖板篦子CAD施工图cad施工图
排水沟节点CAD施工图cad施工图
排水沟节点CAD施工图cad施工图
排水沟 排水管 篦子 排水口灌溉取水口 种植槽溢水排水cad施工图
快速取水阀排水口井盖给排水节点CAD施工图集 11套cad施工图
建筑给排水 门卫室厕所卫生间 给排水雨水系统图cad施工图
点击加载更多
分享到
复制链接
保存海报
取消
请选择收藏夹
+新增收藏夹
新增收藏夹
取消
确认
退出查看