模型详情
1/3
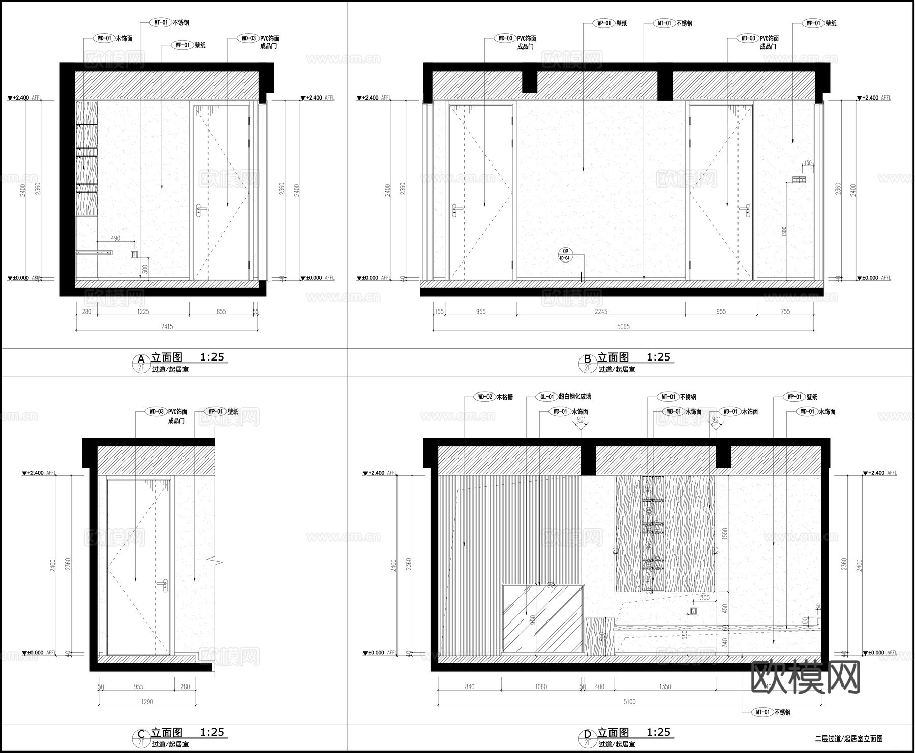
室内休闲区 休闲区立面图 布局设计节点图cad施工图
ID:
5182160
室内休闲区 休闲区立面图 布局设计节点图cad施工图 ID-5182160
所需欧币:
36
发布时间:
2025-11-21
下载请使用电脑登录欧模网,建议先收藏
收藏
分享
妮子1973
关注
为您推荐
现代厨房 厨房立面图 厨房布局设计 节点图cad施工图
负一楼休闲区立面图 墙面装饰节点图cad施工图
欧式卧室立面图 墙面布局图 墙面节点 立面图cad施工图
厨房平立面图 现代厨房 厨房布局节点 墙面节点cad施工图
地下室休闲区 地下室立面图 楼梯节点图cad施工图
公卫平面布局 卫浴节点 卫生间立面图 墙面节点cad施工图
厨房墙面布局 墙面节点 厨房平立面图 现代厨房cad施工图
欧式茶室 茶室立面图 墙面布局 墙面节点cad施工图
厨房墙面布局 现代厨房 中厨立面图 墙面节点图cad施工图
卫生间立面图 墙面节点 卫生间平面布局 卫浴节点cad施工图
卫浴墙面布局 卫浴立面图 台盆镜子 卫浴节点cad施工图
欧式休闲厅立面图 石材墙面节点 墙面布局图cad施工图cad施工图
影视厅墙面节点 影视厅平立面图 墙面布局 墙面节点cad施工图
室内设计平立面图大全cad施工图
现代卫生间 卫生间立面图 墙面布局图 墙面节点cad施工图
卫浴节点 卫生间墙面节点 卫生间平立面图 卫生间布局cad施工图
玻璃门立面图 客厅阳台玻璃门 墙面布局图 节点图cad施工图
现代卧室 卧室布局图 卧室立面图 节点大样图cad施工图
办公室休闲区沙发组合cad施工图
厨房平面立面图 现代厨房布局 烤漆板厨柜吊柜 厨房节点cad施工图
点击加载更多
分享到
复制链接
保存海报
取消
请选择收藏夹
+新增收藏夹
新增收藏夹
取消
确认
退出查看