模型详情
1/3
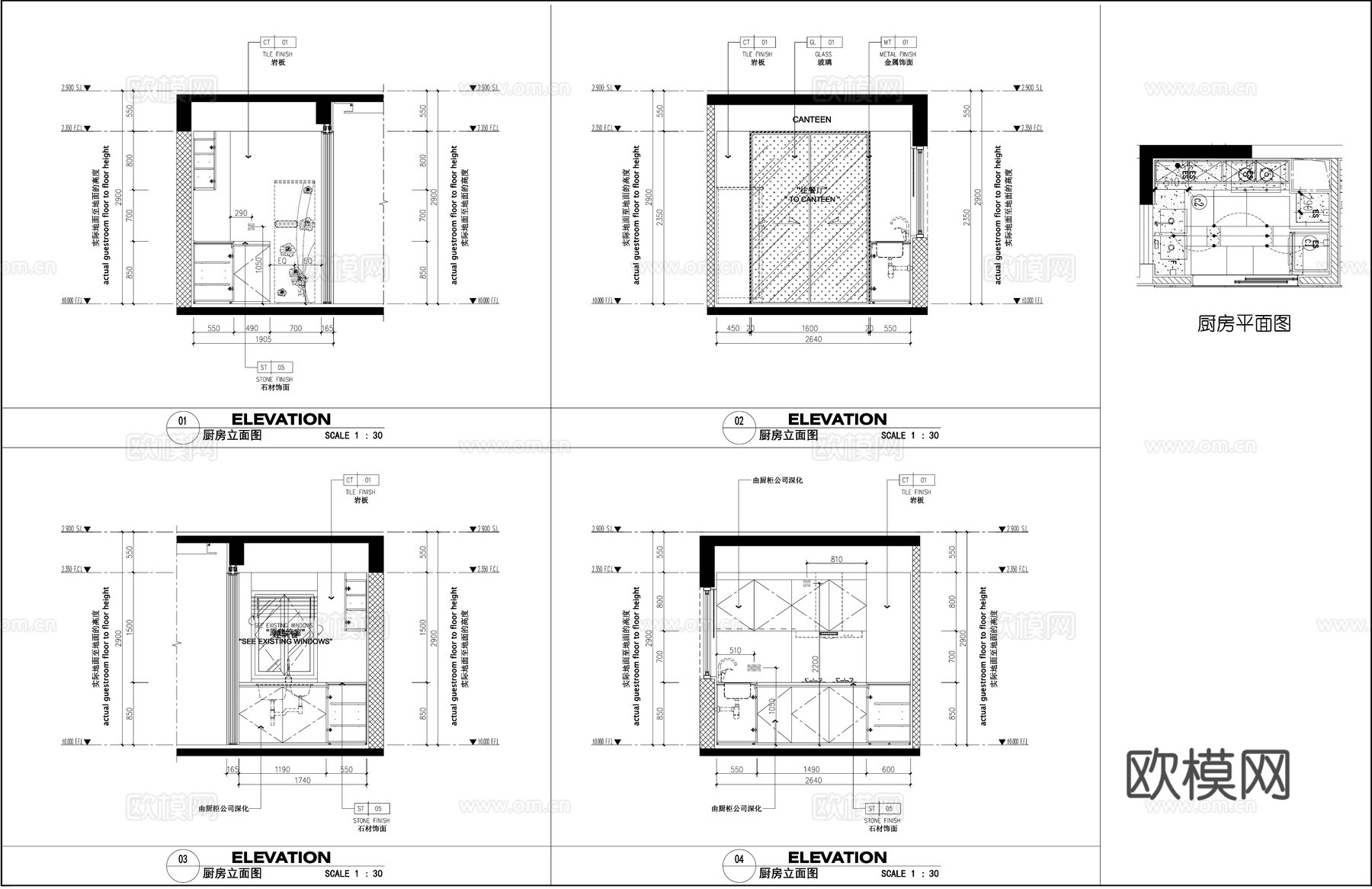
厨房平立面图 现代厨房 厨房布局节点 墙面节点cad施工图
ID:
5245728
厨房平立面图 现代厨房 厨房布局节点 墙面节点cad施工图 ID-5245728
所需欧币:
36
发布时间:
2025-12-18
下载请使用电脑登录欧模网,建议先收藏
收藏
分享
妮子1973
关注
为您推荐
厨房墙面布局 墙面节点 厨房平立面图 现代厨房cad施工图
厨房平面立面图 现代厨房布局 烤漆板厨柜吊柜 厨房节点cad施工图
厨房平面立面图 厨房用品 现代厨房布局图cad施工图
影视厅墙面节点 影视厅平立面图 墙面布局 墙面节点cad施工图
厨房厨柜 厨房墙面布局 现代厨柜 厨柜立面图cad施工图
卫浴节点 卫生间墙面节点 卫生间平立面图 卫生间布局cad施工图
公卫平面布局 卫浴节点 卫生间立面图 墙面节点cad施工图
卫生间立面图 墙面节点 卫生间平面布局 卫浴节点cad施工图
厨房吧台 实木吧台 吧台节点cad施工图
橱柜 厨房 柜子 厨房橱柜 全屋定制 橱柜节点cad施工图
卫浴墙面布局 卫浴立面图 台盆镜子 卫浴节点cad施工图
卫浴节点 卫浴柜子节点 卫生间立面图 墙面节点cad施工图
石材墙面节点 卫浴节点 卫生间平面立面图 现代卫生间布局图cad施工图
健身房镜面墙面 镜面墙体立面图 墙面布局 墙面节点cad施工图
L形厨房布局 L型橱柜设计 L形操作台 转角厨房布局cad施工图
厨房布局橱柜平面立面厨房拆分图橱柜拆分素材CAD图库cad施工图
厨房后厨餐厅平面布局图CAD素材图库cad施工图
后厨 厨房 厨房设施 厨具 后厨设备 餐饮厨房cad施工图
硬包节点 墙面硬包节点cad施工图
墙面节点 墙面凿洞节点 儿童室内墙面装饰cad施工图
点击加载更多
分享到
复制链接
保存海报
取消
请选择收藏夹
+新增收藏夹
新增收藏夹
取消
确认
退出查看