模型详情
1/8
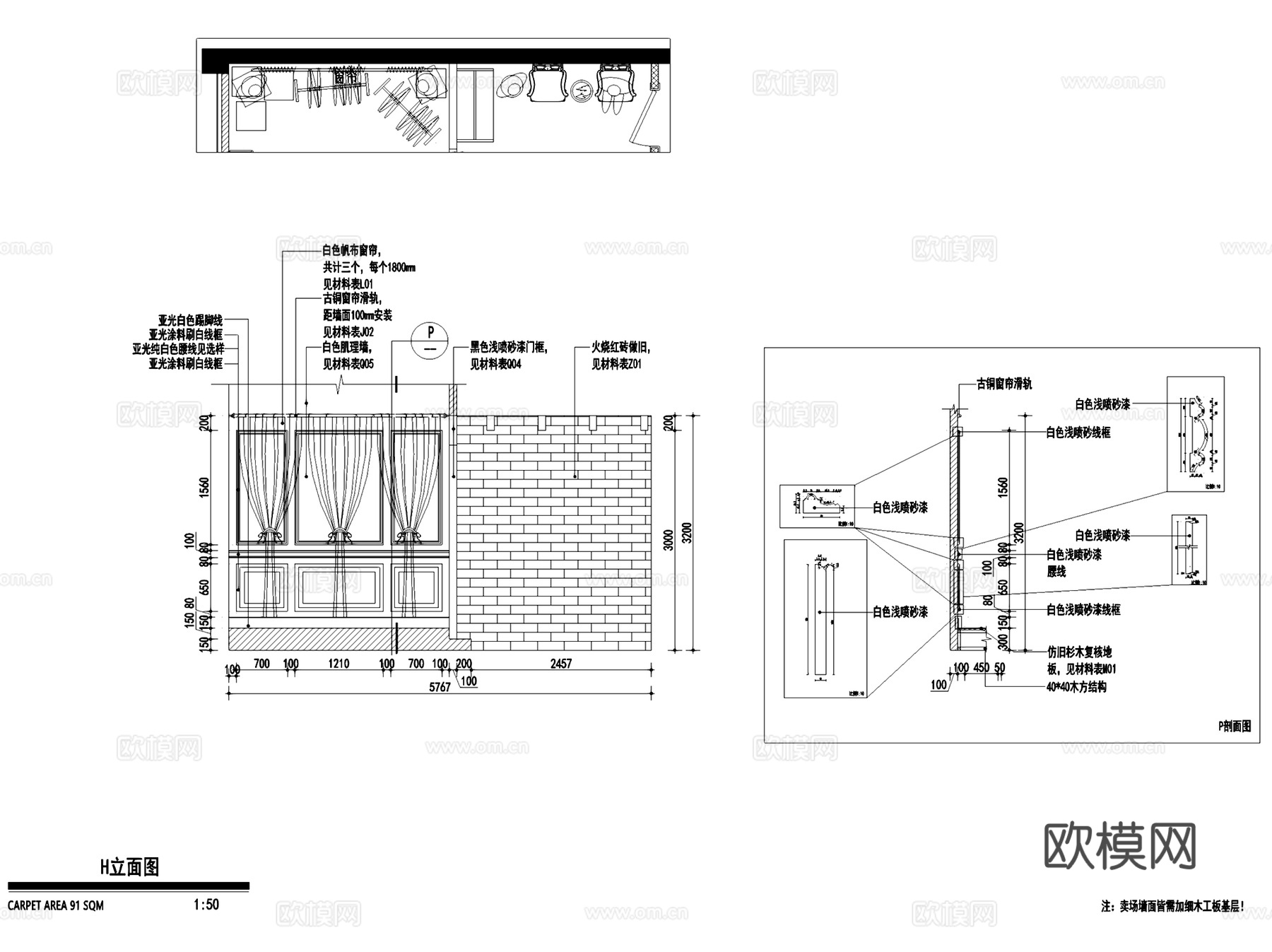
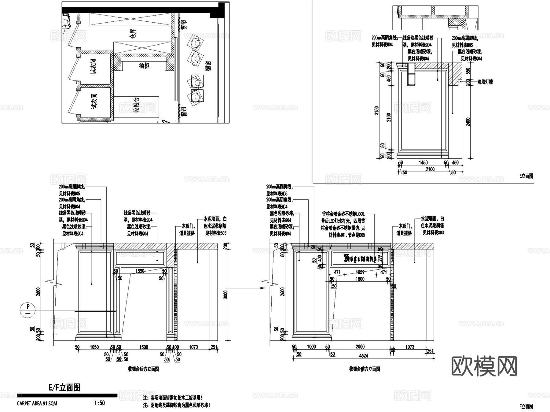
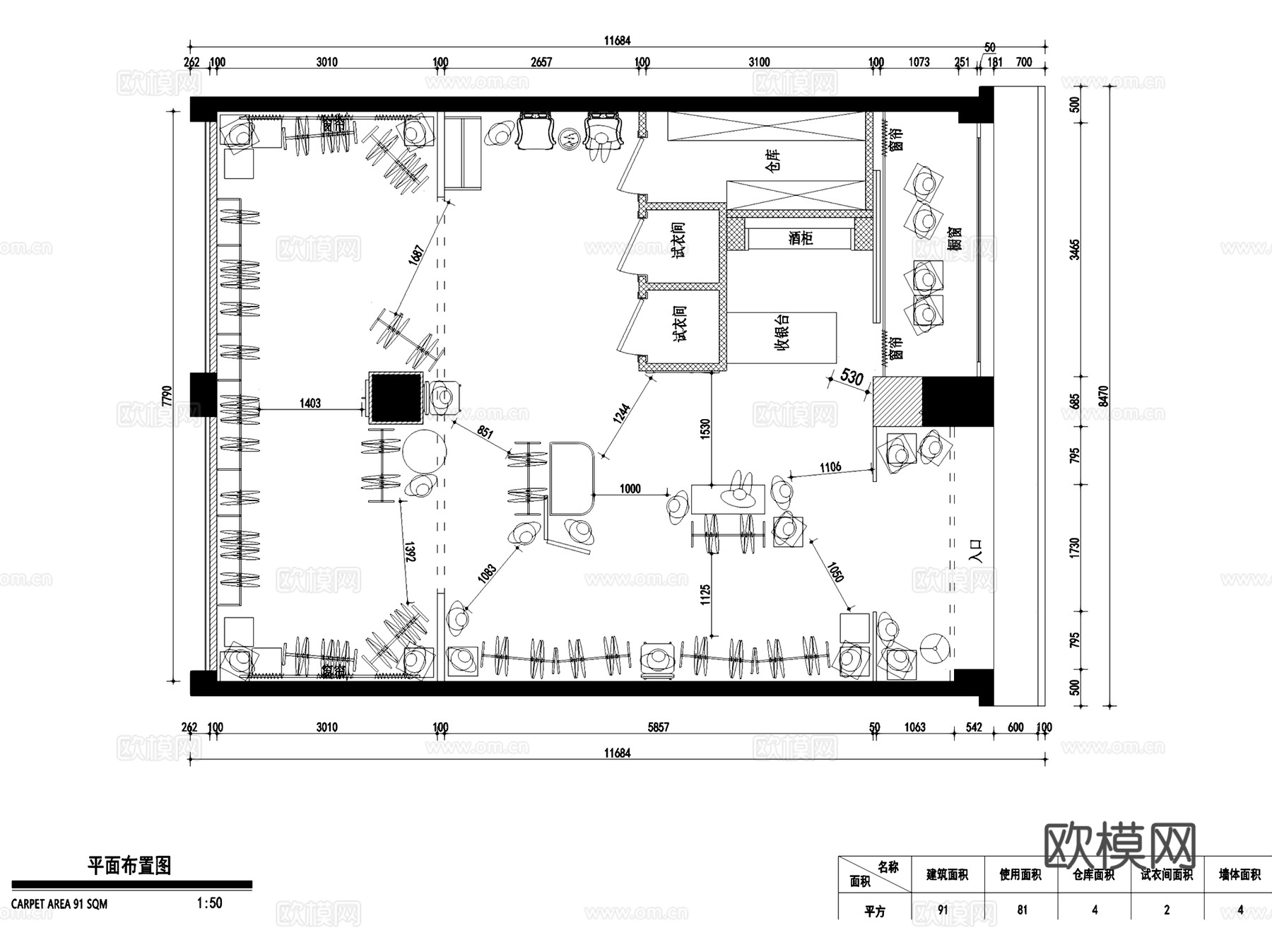
苏州永康路步行街潮流服装店室内工装CAD施工图cad施工图
ID:
5199918
苏州永康路步行街潮流服装店室内工装CAD施工图cad施工图 ID-5199918
所需欧币:
36
发布时间:
2025-12-01
下载请使用电脑登录欧模网,建议先收藏
收藏
分享
皮肤干燥
关注
为您推荐
苏州博物馆新馆室内工装CAD施工图cad施工图
苏州汉庭快捷酒店室内工装CAD施工图cad施工图
MIEN STUNNING服装店室内工装CAD施工图cad施工图
苏州澳华集团中式办公楼室内工装CAD施工图整套cad施工图
SAKURA HOUSE樱舍服装店室内工装CAD施工图cad施工图
60㎡魅惑衣族服装店室内工装CAD施工图cad施工图
IZOLA上海漫游城服装店室内工装CAD施工图cad施工图
Sheng Gen生根时尚服装店室内工装CAD施工图cad施工图
现代59㎡幸会服装店室内工装CAD施工图cad施工图
70㎡AnKoo二层服装店室内工装CAD施工图cad施工图
包头TBALLER潮牌服装店室内工装CAD施工图cad施工图cad施工图
Boutique新乡韩文店服装店室内工装CAD施工图整套cad施工图
南京MINI MOOK句容店服装店室内工装CAD施工图整套cad施工图
武汉广场IMM尹默服装店室内工装CAD施工图整套cad施工图
DIESEL意大利时尚品牌服装店室内工装CAD施工图cad施工图
PASQUIER柏诗姬专柜服装店室内工装CAD施工图cad施工图
威海华联3F-A16服装店室内工装CAD施工图cad施工图
苏州景兴路黑色化景观道路改造CAD施工图全套cad施工图
93℃凤林路奶油风咖啡厅室内工装CAD施工图整套+SUcad施工图
GANGA永恒之河服装店室内工装部分CAD施工图+SU模型cad施工图
点击加载更多
分享到
复制链接
保存海报
取消
请选择收藏夹
+新增收藏夹
新增收藏夹
取消
确认
退出查看