模型详情
1/3
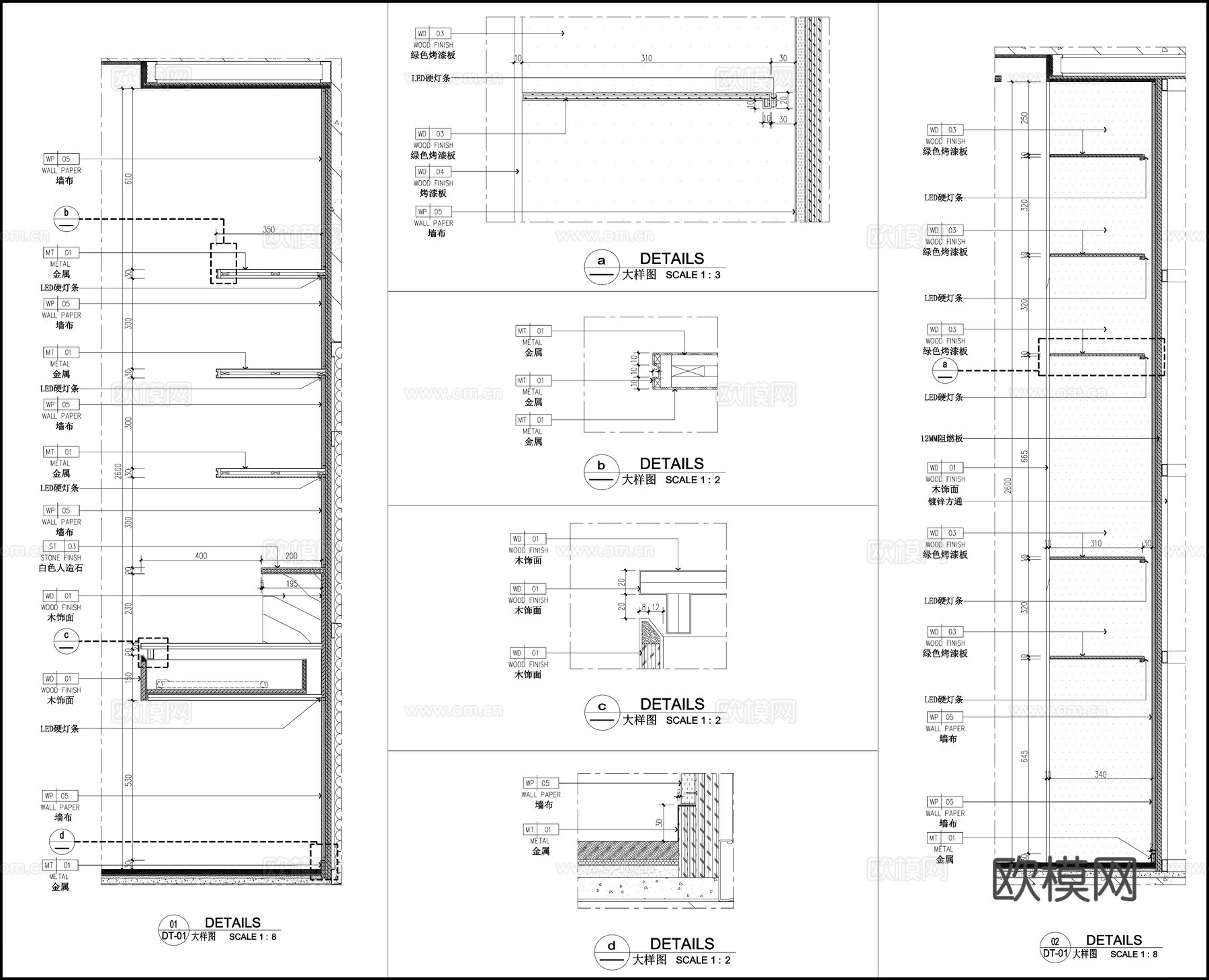
书房墙面节点 书桌柜子节点 墙面立面平面图 节点图cad施工图
ID:
5206888
书房墙面节点 书桌柜子节点 墙面立面平面图 节点图cad施工图 ID-5206888
所需欧币:
36
发布时间:
2025-12-03
下载请使用电脑登录欧模网,建议先收藏
收藏
分享
妮子1973
关注
为您推荐
卫浴节点 卫浴柜子节点 卫生间立面图 墙面节点cad施工图
墙面端景节点 墙面节点 墙面装饰品 节点图cad施工图
石材墙面 卫浴立面图 卫浴节点图 墙面节点图cad施工图
影视厅墙面节点 影视厅平立面图 墙面布局 墙面节点cad施工图
厨房平立面图 现代厨房 厨房布局节点 墙面节点cad施工图
墙面节点 墙面凿洞节点 儿童室内墙面装饰cad施工图
铝板墙面CAD节点cad施工图
欧式卧室立面图 墙面布局图 墙面节点 立面图cad施工图
公卫平面布局 卫浴节点 卫生间立面图 墙面节点cad施工图
欧式茶室 茶室立面图 墙面布局 墙面节点cad施工图
厨房墙面布局 墙面节点 厨房平立面图 现代厨房cad施工图
儿童游乐区墙面 墙面立面图 墙面节点 护墙板cad施工图
书房墙面布局图 书房背景墙 墙面剖面图节点图cad施工图
厨房墙面布局 现代厨房 中厨立面图 墙面节点图cad施工图
地下车库立面图 墙面装饰柜子 柜子节点图cad施工图
卫生间立面图 墙面节点 卫生间平面布局 卫浴节点cad施工图
背景墙 装饰墙面 客厅墙面 墙面节点图cad施工图
墙面立面图 主卫墙面布局图 卫浴柜子镜子 节点图剖面图cad施工图
厨房移门节点 玻璃移门 门立面平面图 门节点图cad施工图
现代卫生间 卫生间立面图 墙面布局图 墙面节点cad施工图
点击加载更多
分享到
复制链接
保存海报
取消
请选择收藏夹
+新增收藏夹
新增收藏夹
取消
确认
退出查看