模型详情
1/8
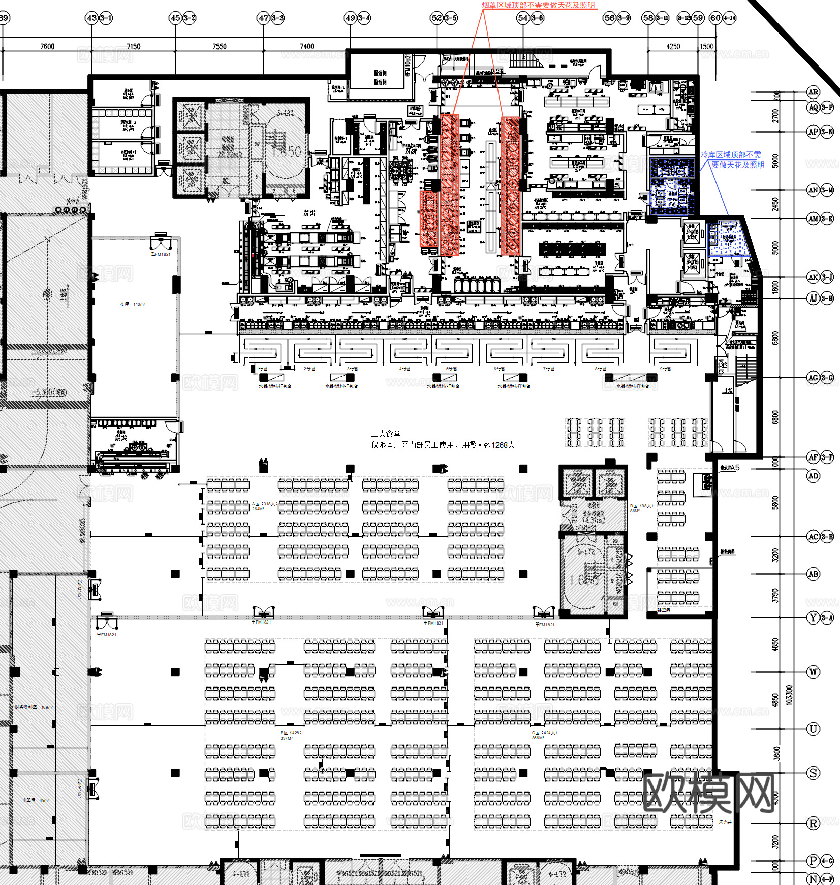
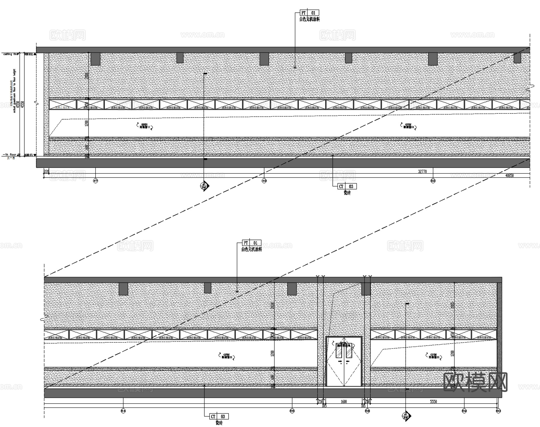
企业员工餐厅食堂施工图cad施工图
ID:
5220469
企业员工餐厅食堂施工图cad施工图 ID-5220469
所需欧币:
56
发布时间:
2025-12-12
下载请使用电脑登录欧模网,建议先收藏
收藏
分享
室内设计大哥大
关注
为您推荐
企业员工食堂餐厅施工图cad施工图
企业学校员工餐厅学生食堂建筑CAD施工图集 25套cad施工图
员工餐厅取餐窗口、员工食堂取餐窗口、取餐窗口剖面详图、快餐厅cad施工图
员工卡座办公桌CAD图库cad施工图cad施工图
最新8套 食堂 KFC 中餐厅 施工图合集cad施工图
食堂休息室cad施工图
食堂餐具回收标识、收银台标识、餐厅食堂标识设计cad施工图
最新16套 食堂 酒店餐厅 中餐厅 施工图合集cad施工图
最新7套 食堂 料理店 中餐厅 施工图合集cad施工图
大学食堂水电暖施工图cad施工图
最新6套 食堂 咖啡店 施工图合集cad施工图
最新8套 食堂 咖啡店 施工图合集cad施工图
最新5套 企业展厅 玩具展厅 施工图合集cad施工图cad施工图
最新7套 食堂 鱼庄 火锅店 中餐厅 施工图合集cad施工图
餐厅休息室办公室食堂平面图cad施工图
现代中餐厅 400㎡景观餐厅 施工图cad施工图cad施工图
某学校食堂平面图cad施工图
食堂 餐厅家具 美食城 快餐店 粥铺 后厨cad施工图
新中式旅游酒店后勤综合楼员工宿舍建筑平面CAD施工图cad施工图
最新全套 海鲜餐厅 施工图合集cad施工图
点击加载更多
分享到
复制链接
保存海报
取消
请选择收藏夹
+新增收藏夹
新增收藏夹
取消
确认
退出查看