模型详情
1/8
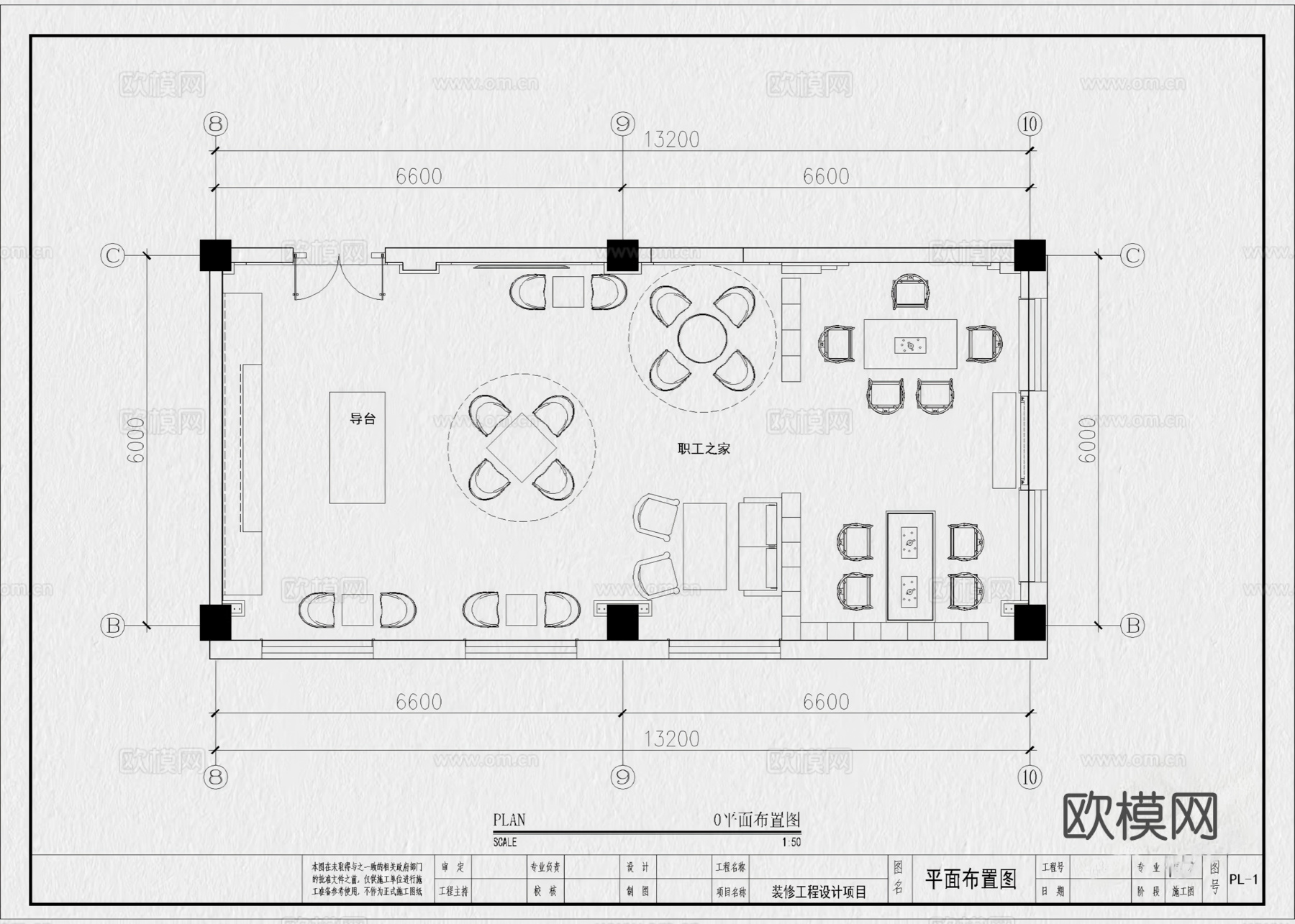
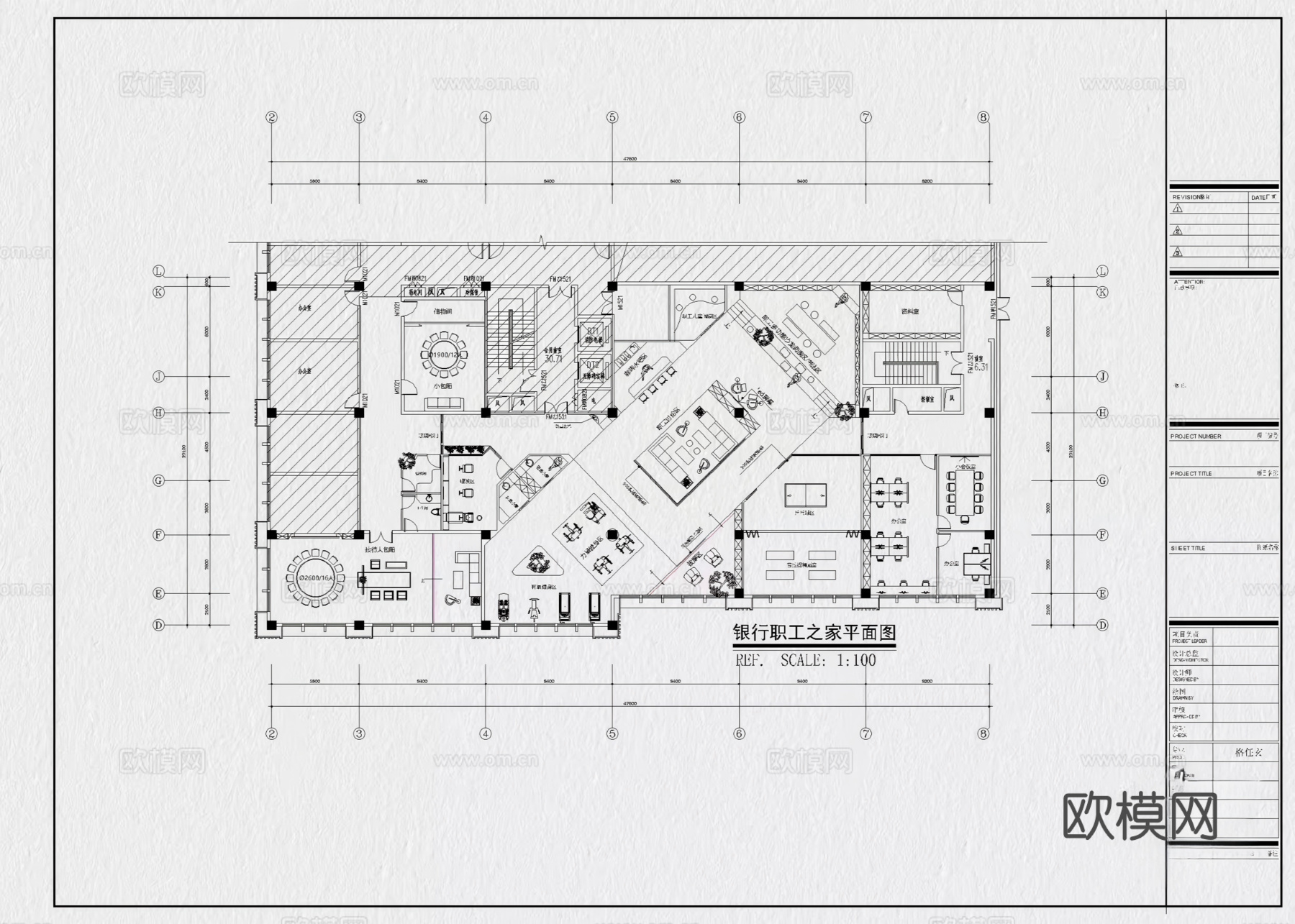
15套职工之家员工之家员工活动中心CAD施工图cad施工图
ID:
5340640
15套职工之家员工之家员工活动中心CAD施工图cad施工图 ID-5340640
所需欧币:
86
发布时间:
2026-01-26
下载请使用电脑登录欧模网,建议先收藏
收藏
分享
雅俗共赏
关注
为您推荐
二层职工餐厅建筑 员工餐厅食堂cad施工图
职工活动中心建筑CAD施工图cad施工图
员工宿舍 最新全套施工图合集cad施工图
后厨平面图 员工食堂餐厅cad施工图cad施工图
椰之家饮品炸鸡汉堡奶茶店室内工装CAD施工图cad施工图
后厨 平面图 员工食堂餐厅饭堂 厨房cad施工图
公司员工餐厅 最新全套施工图 效果图设计cad施工图
员工餐厅活动室平面图深圳餐厅饭堂cad施工图
后厨 厨房 设备布局平面图 员工食堂餐厅饭堂cad施工图
后厨 厨房 设备布局平面图 员工食堂餐厅饭堂cad施工图
西餐厅 员工餐厅 最新全套施工图 效果图合集cad施工图
餐厅学校职工食堂厨房后厨CAD素材图库cad施工图
餐厅学校职工食堂厨房后厨CAD素材图库cad施工图
养老院敬老院老年活动中心建筑CAD施工图集 35套cad施工图
社区党群服务活动中心室内工装CAD施工图cad施工图
办公家具接待前台员工桌椅餐桌床运动器材餐饮设备素材CAD图库cad施工图
乡村游客村民接待活动中心建筑CAD平面+展板+SUcad施工图
欧式商住建筑CAD施工图集cad施工图cad施工图
铝板墙做法CAD施工图cad施工图cad施工图
木平桥详图CAD施工图cad施工图cad施工图
点击加载更多
分享到
复制链接
保存海报
取消
请选择收藏夹
+新增收藏夹
新增收藏夹
取消
确认
退出查看