模型详情
1/6
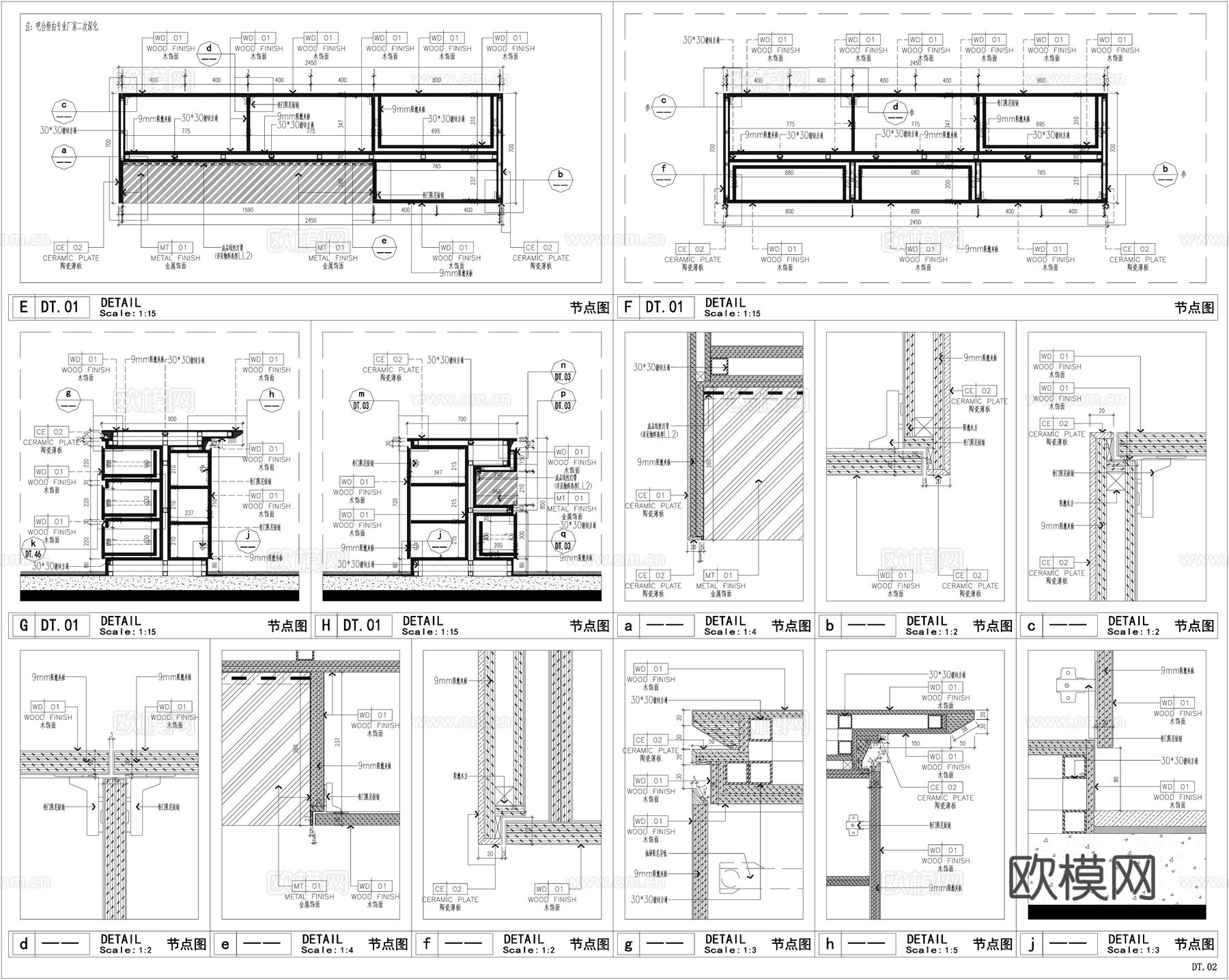
厨房吧台 实木吧台 吧台节点cad施工图
ID:
5262875
厨房吧台 实木吧台 吧台节点cad施工图 ID-5262875
所需欧币:
36
发布时间:
2025-12-23
下载请使用电脑登录欧模网,建议先收藏
收藏
分享
妮子1973
关注
为您推荐
水吧台 石材吧台 酒吧吧台 吧台柜子 吧台节点cad施工图
吧柜 石材吧台 水吧台 吧台平面立面图 吧台节点cad施工图cad施工图
休息区水吧台 长方形吧台 石材吧台 吧台节点cad施工图
高脚吧台 吧台柜台 高吧台 立式吧台 柜台吧台cad施工图
吧台cad施工图
样板间吧台平面立面节点.cad施工图
咖啡吧台节点大样图cad施工图
别墅品酒区水吧台、吧台玻璃柜节点、吧台内嵌红酒柜、复古轻奢吧cad施工图
前台节点 接待台 吧台 服务台 CAD施工图cad施工图
吧台节点 前台接待台服务台 咨询台cad施工图
前台节点吧台服务台接待台工作台cad施工图
园林景观户外吧台CAD施工详图集cad施工图
23套前台接待台吧台CAD节点大样施工图最新整理合集cad施工图
酒柜迷你吧台红酒柜剖面详图节点大样CAD素材图库cad施工图
室内吧台茶桌厨房中岛台图块图库详图CAD施工图集 6套cad施工图
吧台区层板柜、水吧置物架、吧台背景墙柜子、开放式层板酒柜cad施工图
厨房平立面图 现代厨房 厨房布局节点 墙面节点cad施工图
迷你吧台盆柜自助餐台接待台洗手台剖面详图节点大样CAD素材图cad施工图
酒柜酒架吧台室内家具柜体详图CAD施工图集 49套cad施工图
露营酒吧 平面图 餐厅帐篷烧烤吧台 酒馆清吧cad施工图
点击加载更多
分享到
复制链接
保存海报
取消
请选择收藏夹
+新增收藏夹
新增收藏夹
取消
确认
退出查看