模型详情
1/2
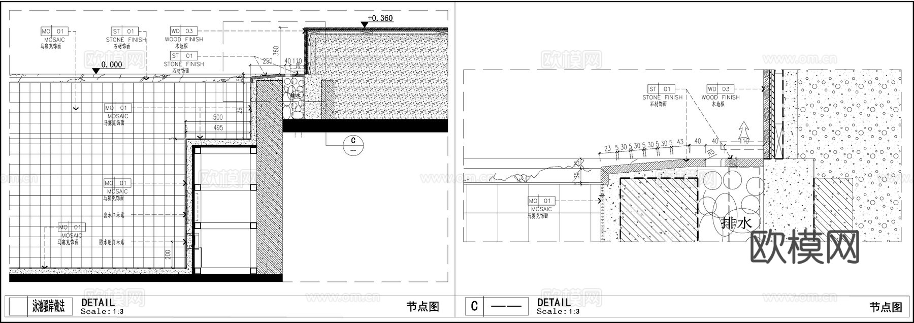
泳池石材铺装 游泳池驳岸做法 泳池排水 泳池地面节点cad施工图
ID:
5291861
泳池石材铺装 游泳池驳岸做法 泳池排水 泳池地面节点cad施工图 ID-5291861
所需欧币:
36
发布时间:
2025-12-31
下载请使用电脑登录欧模网,建议先收藏
收藏
分享
妮子1973
关注
为您推荐
室内泳池地面节点、游泳池排水沟做法、会所游泳池边节点cad施工图
豪华泳池 高档泳池 奢华泳池 高端游泳池 精装游泳池cad施工图
游泳池CAD施工图cad施工图
游泳池节点大样景观详图CAD施工图cad施工图
20套游泳池CAD图纸2026最新整理合集cad施工图
展厅泳池吊顶 蜂窝铝板吊顶 无主灯吊顶 吊顶节点cad施工图
景观道路铺装地面工艺做法节点大样详图CAD施工图cad施工图
景观园路铺装挡土墙驳岸节点CAD施工图cad施工图
35套景观园林道路地面铺装标准做法节点详图CAD施工图cad施工图
铺装通用做法花池挡墙节点CAD施工图cad施工图
砾石地面铺装收边节点CAD施工图cad施工图
井盖节点 铺装地面隐蔽式 装饰井盖 盖板 排水口CAD施工图cad施工图cad施工图
瓦片立铺收边做法景观节点CAD施工图cad施工图
公寓式酒店客房平面图 大床房 套房 健身房 游泳池cad施工图
9套庭院花园鱼池剖面游泳池池边收口CAD图纸最新整理合集cad施工图
生态度假村酒店中庭泳池景观平面图CAD施工图cad施工图
瓦片分隔节点景观地面铺装收边交接详图CAD施工图cad施工图
排水沟节点座凳花池边做法CAD施工图cad施工图
2026年最新道路铺装地面铺装地面拼花CAD图库cad施工图
景观池沿驳岸排水沟护岸节点CAD施工详图集 18套cad施工图
点击加载更多
分享到
复制链接
保存海报
取消
请选择收藏夹
+新增收藏夹
新增收藏夹
取消
确认
退出查看