模型详情
1/8
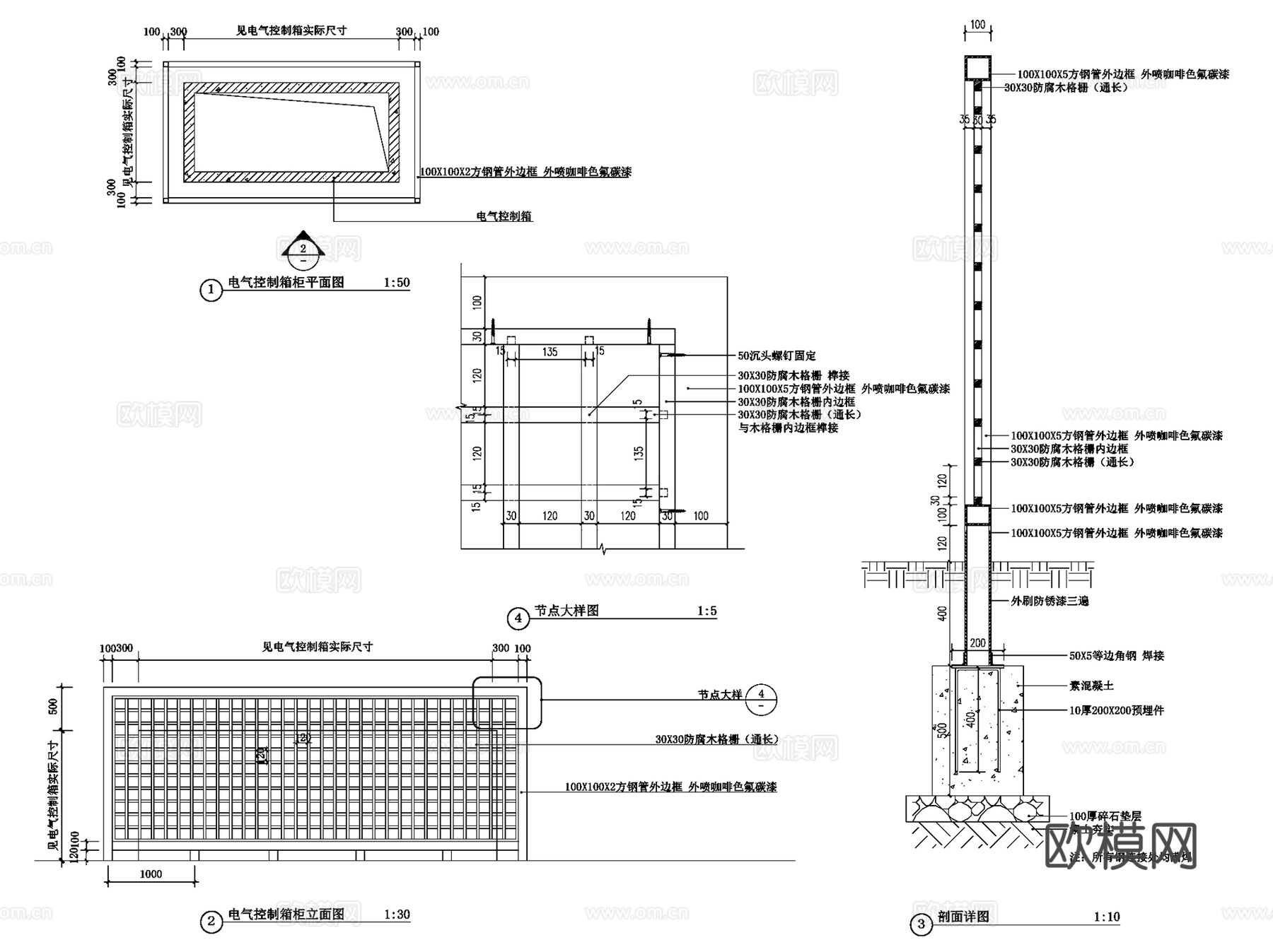
菜圃菜地护栏篱笆格栅木桩栏杆景观CAD施工图详图集 11套cad施工图
ID:
5361474
菜圃菜地护栏篱笆格栅木桩栏杆景观CAD施工图详图集 11套cad施工图 ID-5361474
所需欧币:
36
发布时间:
2026-01-31
下载请使用电脑登录欧模网,建议先收藏
收藏
分享
皮肤干燥
关注
为您推荐
菜园菜地菜圃景观CAD施工图cad施工图
菜地菜园菜圃标准段景观CAD施工图cad施工图
菜地菜园围挡篱笆栅栏景观节点大样CAD施工图集 9套cad施工图
田园菜地篱笆CAD施工图cad施工图
菜园菜地菜圃平面图块CAD施工图cad施工图
波形梁护栏栏杆构造CAD施工图集cad施工图
菜园圆木桩篱笆围栏围挡栏杆CAD施工图cad施工图
菜地仿竹篱笆CAD施工图cad施工图
新中式休闲景观亭凉亭格栅CAD施工图集cad施工图
菜地杉木桩围边CAD施工图cad施工图
标准木栈道栏杆景观节点CAD施工图集cad施工图
瞭望景观区CAD施工图集cad施工图
铁艺栏杆围墙围栏景观节点CAD施工图集 16套cad施工图
仿竹纹篱笆菜地菜园围栏围挡CAD施工图cad施工图
园林景观围墙栏杆大样详图CAD施工图集 40套cad施工图
景观节点图集cadcad施工图
太阳湖公园景观CAD施工图集cad施工图
木栈桥平台景观CAD施工图集cad施工图
小庭院景观CAD施工图集cad施工图
竹篱笆围栏围挡栏杆CAD施工图cad施工图
点击加载更多
分享到
复制链接
保存海报
取消
请选择收藏夹
+新增收藏夹
新增收藏夹
取消
确认
退出查看