模型详情
1/8
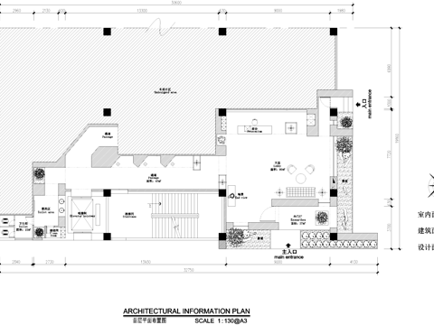
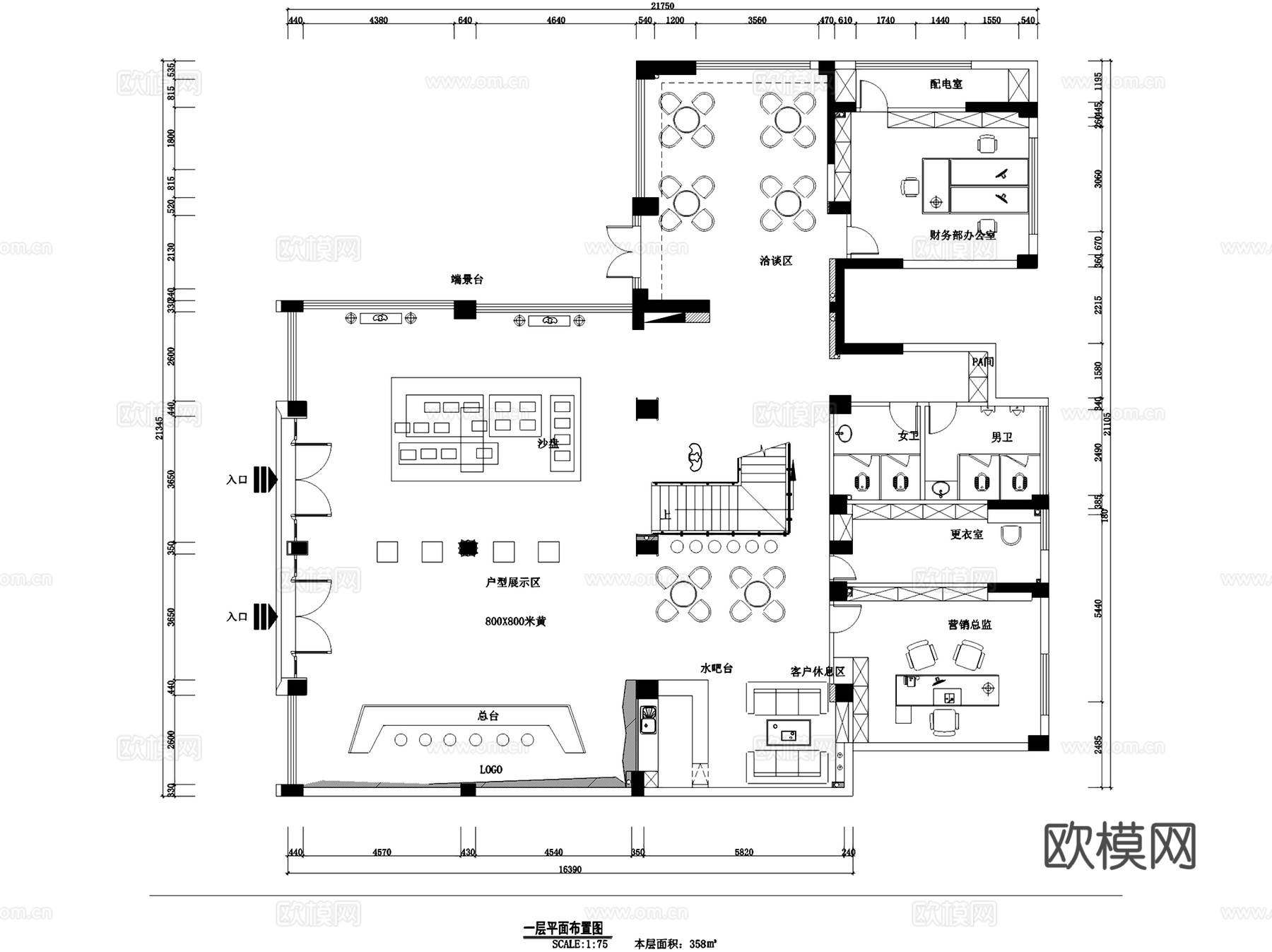
福建长乐万业地产总部办公室售楼处室内工装CAD施工图cad施工图
ID:
5361986
福建长乐万业地产总部办公室售楼处室内工装CAD施工图cad施工图 ID-5361986
所需欧币:
36
发布时间:
2026-01-31
下载请使用电脑登录欧模网,建议先收藏
收藏
分享
皮肤干燥
关注
为您推荐
长乐中茂地产岱湖城营销中心售楼处办公楼室内工装CAD施工图cad施工图
长乐空港之夜音乐会所KTV室内工装CAD施工图cad施工图
安溪万城一号售楼处室内工装CAD施工图整套cad施工图
星光巨业家具灯饰展厅室内工装CAD施工图cad施工图
时代地产市桥南健身会所室内工装CAD施工图cad施工图
北京玺萌地产会所室内工装平面系统图CAD施工图cad施工图
欧式售楼处前厅节点室内工装CAD施工图cad施工图
香山合苑售楼处室内工装CAD施工图cad施工图
新乡翡翠城售楼处室内工装CAD施工图cad施工图
售楼处空间室内工装图块CAD图库cad施工图
金义天鸽办公室室内工装CAD施工图cad施工图
办公室室内工装平面布局CAD施工图集 10套cad施工图
照明有限公司办公室室内工装CAD施工图cad施工图
成都中洲锦城湖岸售楼处室内工装CAD施工图cad施工图
常州大名城欧式售楼处室内工装CAD施工图cad施工图
小型书吧室内工装CAD施工图cad施工图
综合工装室内CAD图库cad施工图
室内工装综合CAD图库cad施工图
玉雕文化展厅室内工装CAD施工图cad施工图cad施工图
新疆特色餐厅万达店室内工装平面系统图CAD施工图cad施工图
点击加载更多
分享到
复制链接
保存海报
取消
请选择收藏夹
+新增收藏夹
新增收藏夹
取消
确认
退出查看