模型详情
1/8
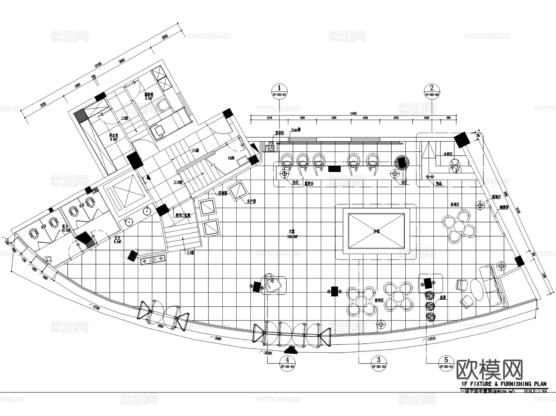
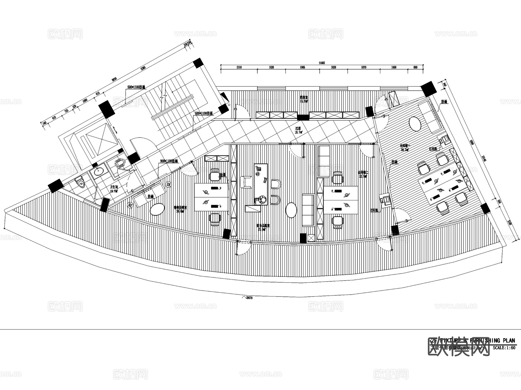
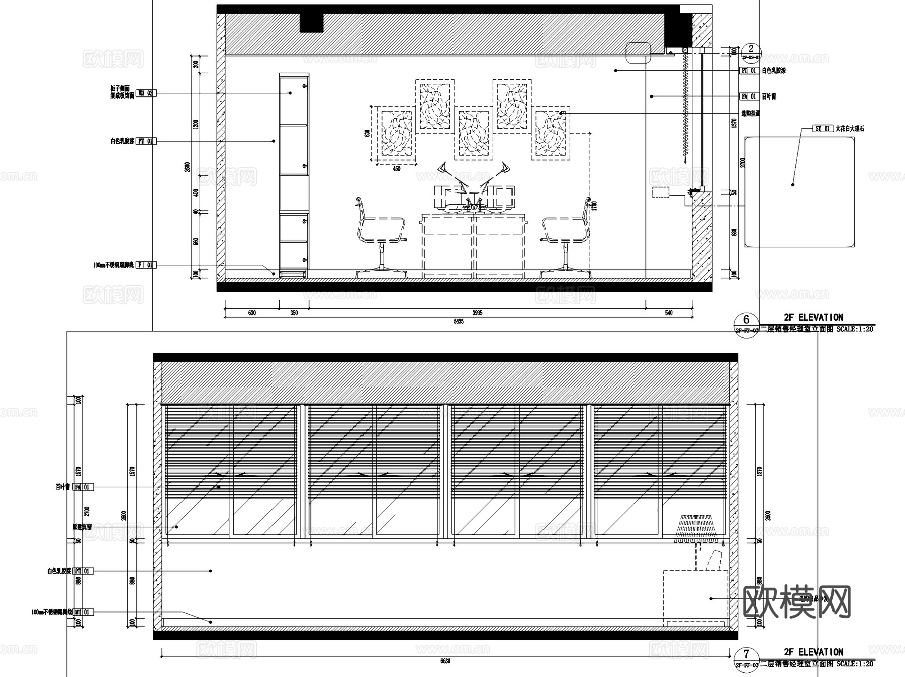
长乐中茂地产岱湖城营销中心售楼处办公楼室内工装CAD施工图cad施工图
ID:
5362110
长乐中茂地产岱湖城营销中心售楼处办公楼室内工装CAD施工图cad施工图 ID-5362110
所需欧币:
36
发布时间:
2026-01-31
下载请使用电脑登录欧模网,建议先收藏
收藏
分享
皮肤干燥
关注
为您推荐
福建长乐万业地产总部办公室售楼处室内工装CAD施工图cad施工图
中茵上城美域售楼处室内工装CAD施工图整套cad施工图
中建汤逊湖壹号售楼处室内工装CAD施工图整套cad施工图
新乡翡翠城售楼处室内工装CAD施工图cad施工图
长乐空港之夜音乐会所KTV室内工装CAD施工图cad施工图
福州名城国际营销中心售楼处室内工装CAD施工图cad施工图
湘湖壹号会所室内工装CAD施工图cad施工图
中融碧玉蓝天办公楼总裁会所室内工装CAD施工图cad施工图
香悦四季城售楼处室内工装CAD施工图cad施工图
乐清市瑞城御园售楼处室内工装CAD施工图cad施工图
安溪万城一号售楼处室内工装CAD施工图整套cad施工图
醉城都火锅店室内工装CAD施工图cad施工图
星巴克咖啡杭州阿里猫茂店室内工装CAD施工图cad施工图
时代地产市桥南健身会所室内工装CAD施工图cad施工图
中骏蓝湾半岛会所KTV室内工装CAD施工图cad施工图cad施工图
美食广场小吃城室内工装平面系统图CAD施工图cad施工图
美食广场小吃城室内工装平面系统图CAD施工图cad施工图
鸿茂源大酒楼餐厅饭店室内工装CAD施工图cad施工图
三峡风情火锅城室内工装CAD施工图cad施工图
北京玺萌地产会所室内工装平面系统图CAD施工图cad施工图
点击加载更多
分享到
复制链接
保存海报
取消
请选择收藏夹
+新增收藏夹
新增收藏夹
取消
确认
退出查看