模型详情
1/4
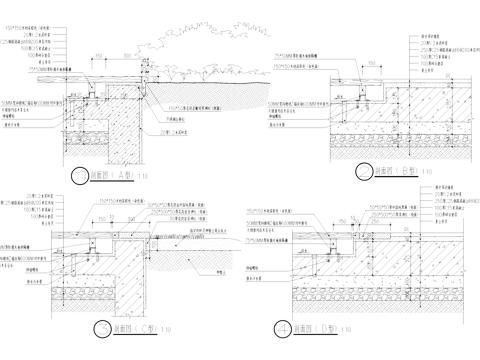
地面收口铺装交接收边瓦片铺装砾石线停车场铺装节点大样CAD图cad施工图
ID:
5363592
地面收口铺装交接收边瓦片铺装砾石线停车场铺装节点大样CAD图cad施工图 ID-5363592
所需欧币:
36
发布时间:
2026-02-02
下载请使用电脑登录欧模网,建议先收藏
收藏
分享
158****5924
关注
为您推荐
砾石地面铺装收边节点CAD施工图cad施工图
瓦片分隔节点景观地面铺装收边交接详图CAD施工图cad施工图
2026年最新道路铺装地面铺装地面拼花CAD图库cad施工图
地毯铺装CAD施工图cad施工图
铺装通用节点大样详图CAD施工图cad施工图
青瓦砾石铺装景观节点详图CAD施工图cad施工图
景观道路铺装节点大样详图CAD施工图cad施工图
景观道路铺装地面工艺做法节点大样详图CAD施工图cad施工图
人行道铺装地面拼花节点大样CAD施工图cad施工图
青瓦铺装收边交接景观节点详图CAD施工图cad施工图cad施工图
广场铺装 嵌草铺装 青石板卵石路 园路 铺地 CAD施工图cad施工图
铺装井盖草地井盖盖板CAD施工图cad施工图
道路广场园路铺装铺地铺砖地面景观CAD施工详图集 60套cad施工图
小广场 景观铺装平面图cad施工图
小广场 景观铺装平面图cad施工图
木平台 接铺装接绿地 CAD施工图cad施工图
景观园路道路铺装节点CAD施工图cad施工图
瓦片收边地面回填卫生间铺装室内外节点大样图CAD素材图库cad施工图cad施工图
景观沙池汀步铺装节点大样CAD施工详图cad施工图
线性排水沟 铺装伸缩缝 铺装交接处理 盖板cad施工图
点击加载更多
分享到
复制链接
保存海报
取消
请选择收藏夹
+新增收藏夹
新增收藏夹
取消
确认
退出查看