模型详情
1/8
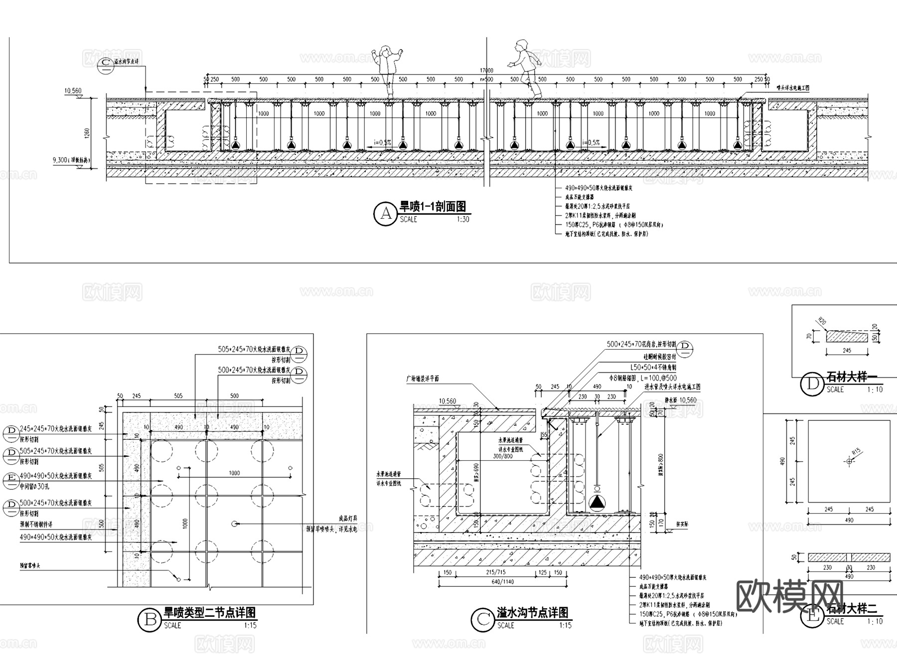
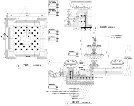
旱喷水景喷泉水池景观节点CAD施工图集 15套cad施工图
ID:
5367138
旱喷水景喷泉水池景观节点CAD施工图集 15套cad施工图 ID-5367138
所需欧币:
36
发布时间:
2026-02-02
下载请使用电脑登录欧模网,建议先收藏
收藏
分享
皮肤干燥
关注
为您推荐
喷泉水池 旱喷盖板 篦子 井盖节点景观CAD施工图cad施工图
旱喷池水景景观结构CAD施工图cad施工图
景观喷泉涌泉水池水景节点详图CAD施工图集 20套cad施工图
景观雾喷CAD施工详图集cad施工图
水池跌水叠水喷泉景观水景节点大样CAD施工图集 60套cad施工图
园林景观喷泉水池水景节点大样详图CAD施工图集 80套cad施工图
景观节点图集cadcad施工图
景观水景水池池壁池底节点大样CAD施工图集 9套cad施工图
码头景观节点详图CAD施工图集cad施工图
溪涧景观节点大样CAD施工图集cad施工图
点式景观绿化节点CAD施工图集cad施工图
景观给排水入口水景 喷泉 雾喷 镜面水景 CAD施工图cad施工图cad施工图
会议中心景观绿化平面及节点CAD施工图集cad施工图
居住区景观节点大样CAD施工图集cad施工图
喷泉跌水 水钵雕塑 水池 景观水景小品 CAD施工图cad施工图
标准木栈道栏杆景观节点CAD施工图集cad施工图
瞭望景观区CAD施工图集cad施工图
园林景观局部节点平面图块图库CAD施工图集cad施工图cad施工图
金螳螂欧式线条节点CAD施工图集cad施工图
水池池底景观水景剖面CAD施工图cad施工图
点击加载更多
分享到
复制链接
保存海报
取消
请选择收藏夹
+新增收藏夹
新增收藏夹
取消
确认
退出查看