模型详情
1/8
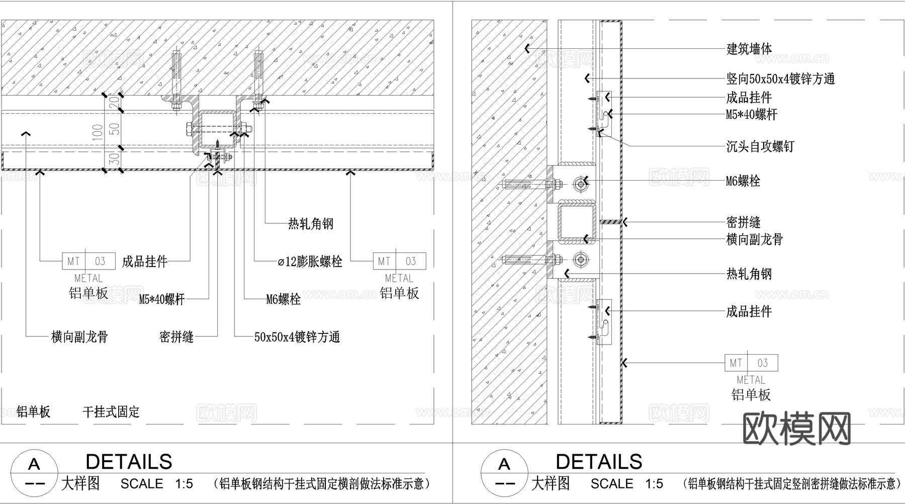
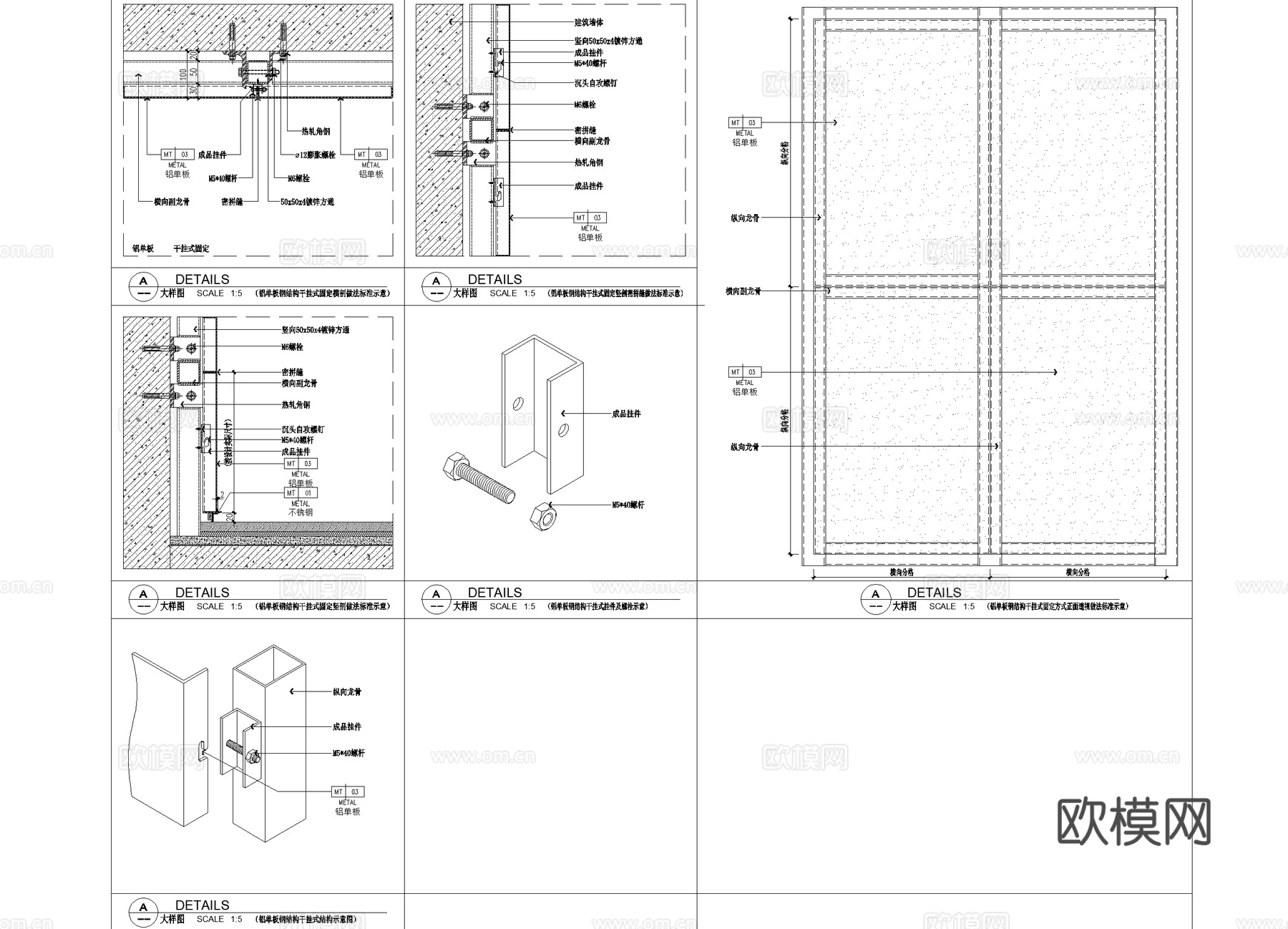
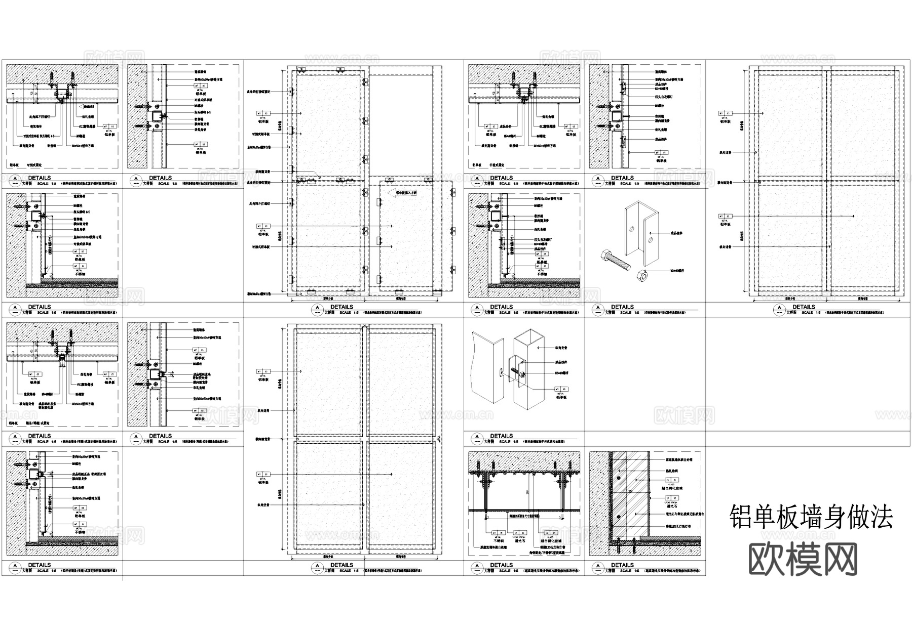
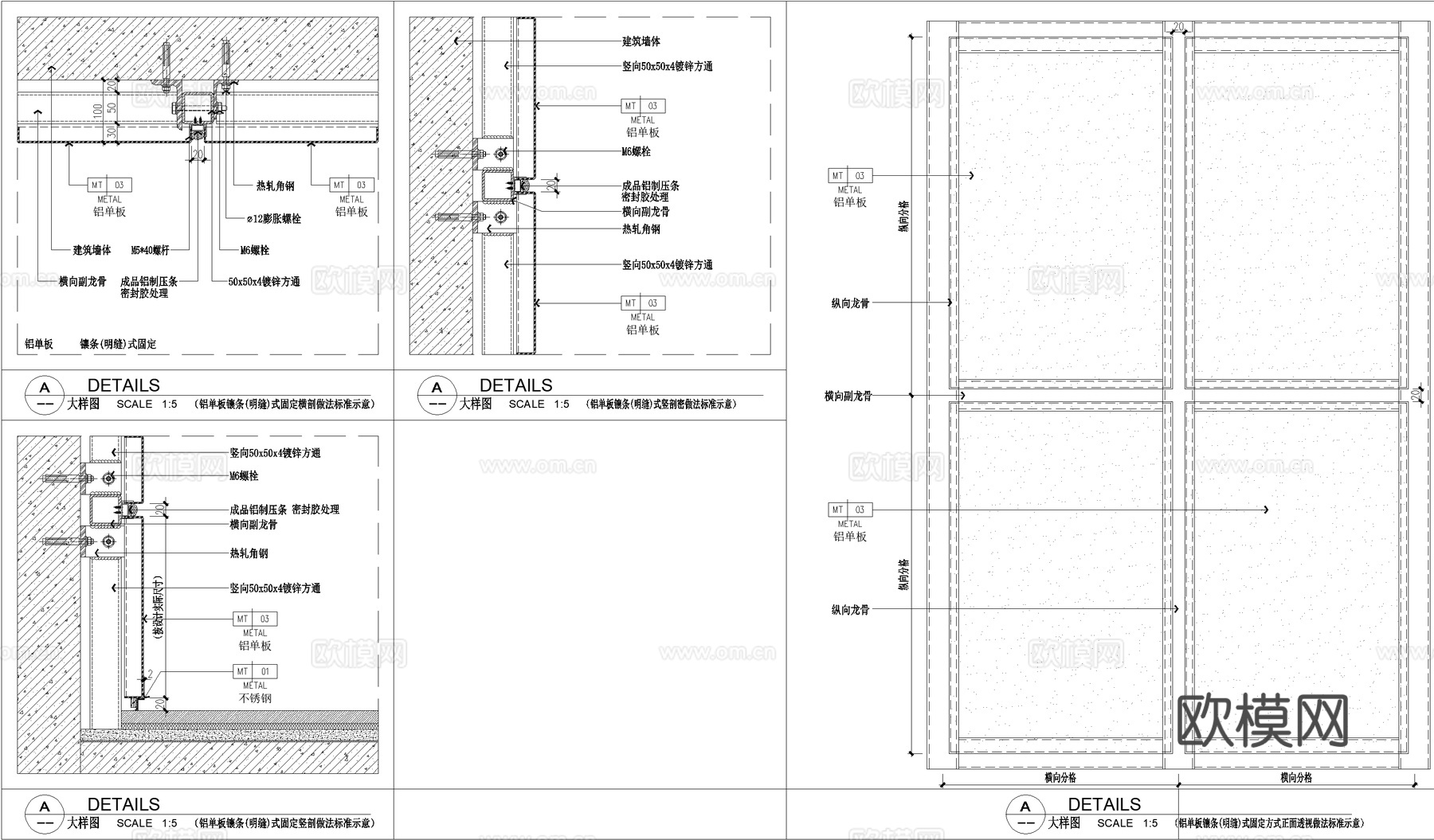
铝单板墙身墙面节点CAD施工图cad施工图
ID:
5368067
铝单板墙身墙面节点CAD施工图cad施工图 ID-5368067
所需欧币:
16
发布时间:
2026-02-02
下载请使用电脑登录欧模网,建议先收藏
收藏
分享
皮肤干燥
关注
为您推荐
铝单板发光墙面节点CAD施工图cad施工图
发光铝单板包柱节点CAD施工图cad施工图
隔音墙玻璃墙铝单板墙铝蜂窝墙干挂包柱铝格栅墙面节点CAD素材cad施工图
铝蜂窝墙板节点CAD施工图cad施工图
铝板墙面节点CAD施工图cad施工图
建筑墙身节点大样CAD施工详图cad施工图
窗台墙身剖面构造节点详图CAD施工图集cad施工图
各材料标准墙面工艺节点CAD施工图集cad施工图
涂料铝木隐形门暗门节点大样详图CAD施工图集cad施工图
墙面节点大样CAD施工详图cad施工图
硬包节点 墙面硬包节点cad施工图
铝镁锰屋顶CAD详图cad施工图
墙体墙身大样CAD施工详图集cad施工图
工装节点大样图地面墙面墙身软包剖面详图节点工艺图CAD素材图cad施工图
墙面节点 墙面凿洞节点 儿童室内墙面装饰cad施工图
花箱节点CAD施工图cad施工图
铝板幕墙节点CAD施工图cad施工图
铝方通软膜吊顶节点大样图cad施工图
墙面铝方通格栅、铝格栅干挂安装、木纹铝格栅安装cad施工图
吊顶天花投影仪墙面节点CAD施工图cad施工图
点击加载更多
分享到
复制链接
保存海报
取消
请选择收藏夹
+新增收藏夹
新增收藏夹
取消
确认
退出查看