模型详情
1/2
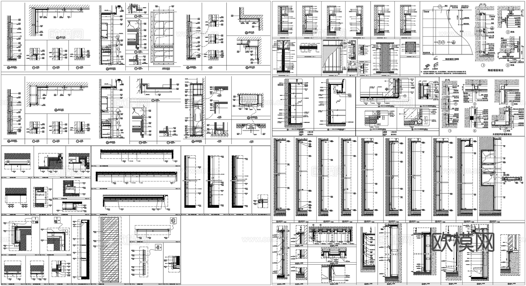
隔音墙玻璃墙铝单板墙铝蜂窝墙干挂包柱铝格栅墙面节点CAD素材cad施工图
ID:
5358686
隔音墙玻璃墙铝单板墙铝蜂窝墙干挂包柱铝格栅墙面节点CAD素材cad施工图 ID-5358686
所需欧币:
36
发布时间:
2026-01-30
下载请使用电脑登录欧模网,建议先收藏
收藏
分享
158****5924
关注
为您推荐
铝单板包柱子详图、干挂铝板包柱子、矩形圆角包柱子、铝单板涂料cad施工图
铝通隔断屏风节点、木纹铝方通屏风、铝方通镜子屏风、格栅屏风隔cad施工图
2026年最新吊顶曲面吊顶顶棚管道铝格栅曲线天花CAD图库cad施工图
酒吧隔音墙工艺、KTV隔音做法、录音棚隔音墙节点、音乐室隔音cad施工图
隔音墙面CADcad施工图
石材干挂包柱标准做法cad施工图
格栅景墙 山水格栅景墙 格栅背景墙 云纹景墙 特色格栅 屏风cad施工图
格栅景墙 山水格栅景墙 格栅背景墙 云纹景墙 特色格栅 屏风cad施工图
背景墙 装饰墙面 客厅墙面 墙面节点图cad施工图
电视背景墙 异形墙面 现代背景墙 墙面节点cad施工图
卧室背景墙 床头背景墙 墙面装饰 墙面节点图cad施工图cad施工图
背景墙节点 电视背景墙 石材背景墙 格栅背景墙cad施工图
床头背景墙 卧室背景墙 墙面节点图 墙面cad施工图
玄关装饰墙 室内景观墙 石材墙面 墙面节点cad施工图
床头背景墙 轻奢背景墙 墙面节点图cad施工图
石材背景墙 背景墙 电视背景墙 墙面节点cad施工图
石材背景墙 酒店大堂背景墙 墙面节点cad施工图
电视背景墙 现代墙面 扪皮墙面 墙面节点cad施工图
电视背景墙 客厅背景墙 石材墙面 墙面节点图cad施工图
背景墙立面图 石材背景墙 客厅背景墙 墙面节点cad施工图
点击加载更多
分享到
复制链接
保存海报
取消
请选择收藏夹
+新增收藏夹
新增收藏夹
取消
确认
退出查看