模型详情
1/6
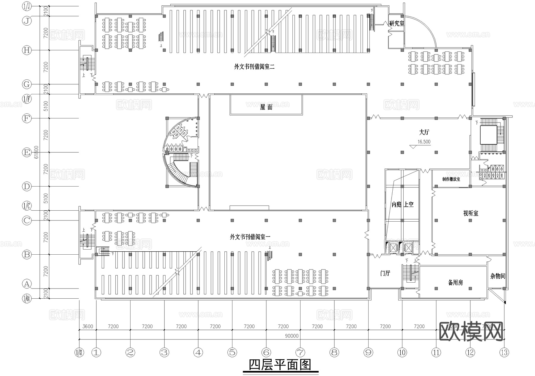
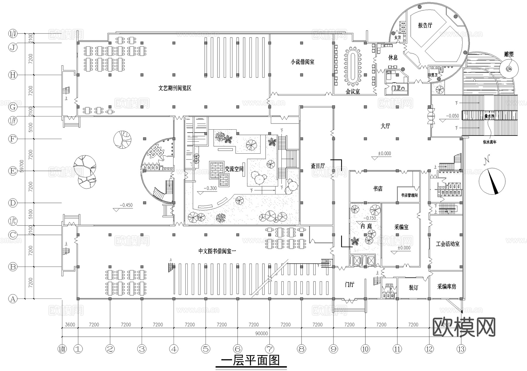
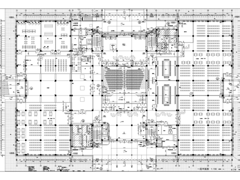
四层大学图书馆建筑平面图cad施工图
ID:
5376580
四层大学图书馆建筑平面图cad施工图 ID-5376580
所需欧币:
16
发布时间:
2026-02-03
下载请使用电脑登录欧模网,建议先收藏
收藏
分享
皮肤干燥
关注
为您推荐
五层大学图书馆建筑平面图吊顶图cad施工图
酒店建筑平面图CAD施工图cad施工图
多层办公楼建筑平面图cad施工图
居住小区住宅建筑平面图CAD施工图+SU模型cad施工图
四层办公楼建筑平面图cad施工图
五层生产车间工业建筑平面图CAD施工图cad施工图
安徽医科大学教学楼建筑平面图CAD施工图cad施工图
三层欧式办公楼建筑平面图cad施工图
三层养老院敬老院建筑平面图cad施工图
养老院敬老院疗养院建筑平面图 老年大学康复中心cad施工图
六层养老院敬老院 老年公寓康复中心 建筑平面图cad施工图
平层户型图 建筑平面图 三室两厅四室两厅 一梯两户cad施工图cad施工图
建筑平面图 户型图 四室两厅两卫 一梯两户cad施工图
单身公寓户型图 建筑平面图 一室两室一厅一卫cad施工图
欧式商住建筑CAD施工图集cad施工图cad施工图
铝板墙做法CAD施工图cad施工图cad施工图
木平桥详图CAD施工图cad施工图cad施工图
木平台 钉固定 CAD施工图cad施工图cad施工图
三梯两户建筑平面图 大平层 户型图 四室两厅两卫一厨cad施工图
古建牌坊CAD施工图cad施工图
点击加载更多
分享到
复制链接
保存海报
取消
请选择收藏夹
+新增收藏夹
新增收藏夹
取消
确认
退出查看