模型详情
1/8
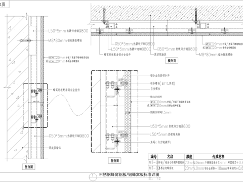
铝板墙做法CAD施工图cad施工图cad施工图
ID:
5384068
铝板墙做法CAD施工图cad施工图cad施工图 ID-5384068
所需欧币:
36
发布时间:
2026-02-05
下载请使用电脑登录欧模网,建议先收藏
收藏
分享
六六
关注
为您推荐
铝板幕墙节点CAD施工图cad施工图
铝板墙面节点CAD施工图cad施工图
铝板格栅幕墙CAD施工图cad施工图
墙地相接工艺做法CAD详图集cad施工图
铝板吊顶节点大样CAD施工图cad施工图
墙面通用做法CADcad施工图
瓦片立铺收边做法景观节点CAD施工图cad施工图
天花吊顶反支撑做法节点详图CAD施工图cad施工图
墙面干挂不锈钢蜂窝铝板CAD施工图cad施工图
钢板收边做法止草带景观节点CAD施工图cad施工图
欧式商住建筑CAD施工图集cad施工图cad施工图
堆肥场车间厂房工业建筑做法CAD施工图集cad施工图
人造草足球场做法CAD施工图集cad施工图
铺装通用做法花池挡墙节点CAD施工图cad施工图
田园乡村景观墙CAD施工图集cad施工图
110各类隔墙做法节点墙体CAD施工图最新整理合集cad施工图
墙面与顶面材质相接工艺做法CAD详图集cad施工图
木平桥详图CAD施工图cad施工图cad施工图
木平台 钉固定 CAD施工图cad施工图cad施工图
景墙cad施工图
点击加载更多
分享到
复制链接
保存海报
取消
请选择收藏夹
+新增收藏夹
新增收藏夹
取消
确认
退出查看