模型详情
1/5
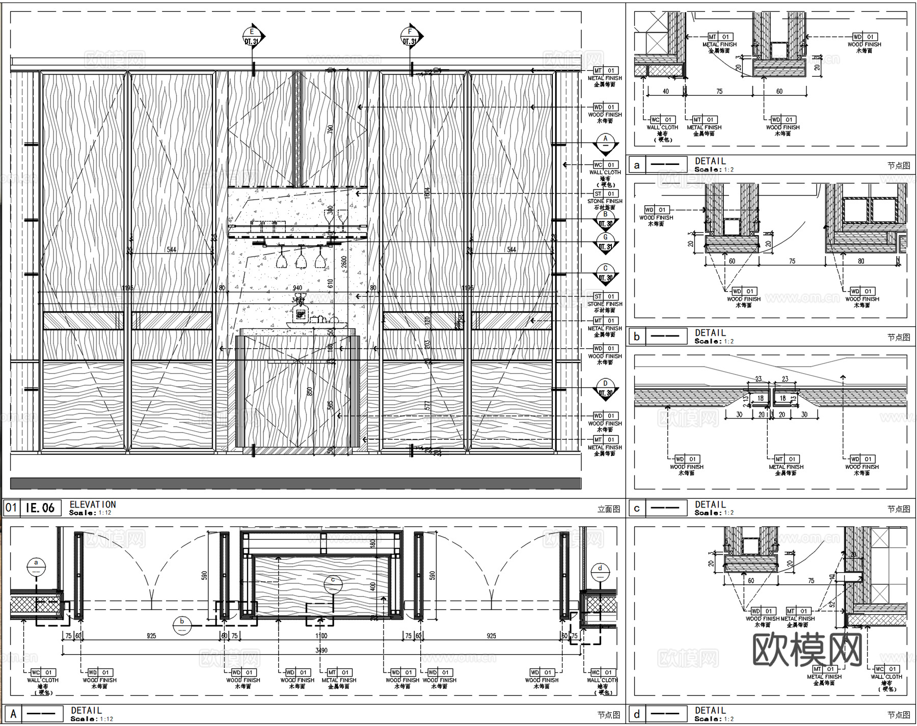
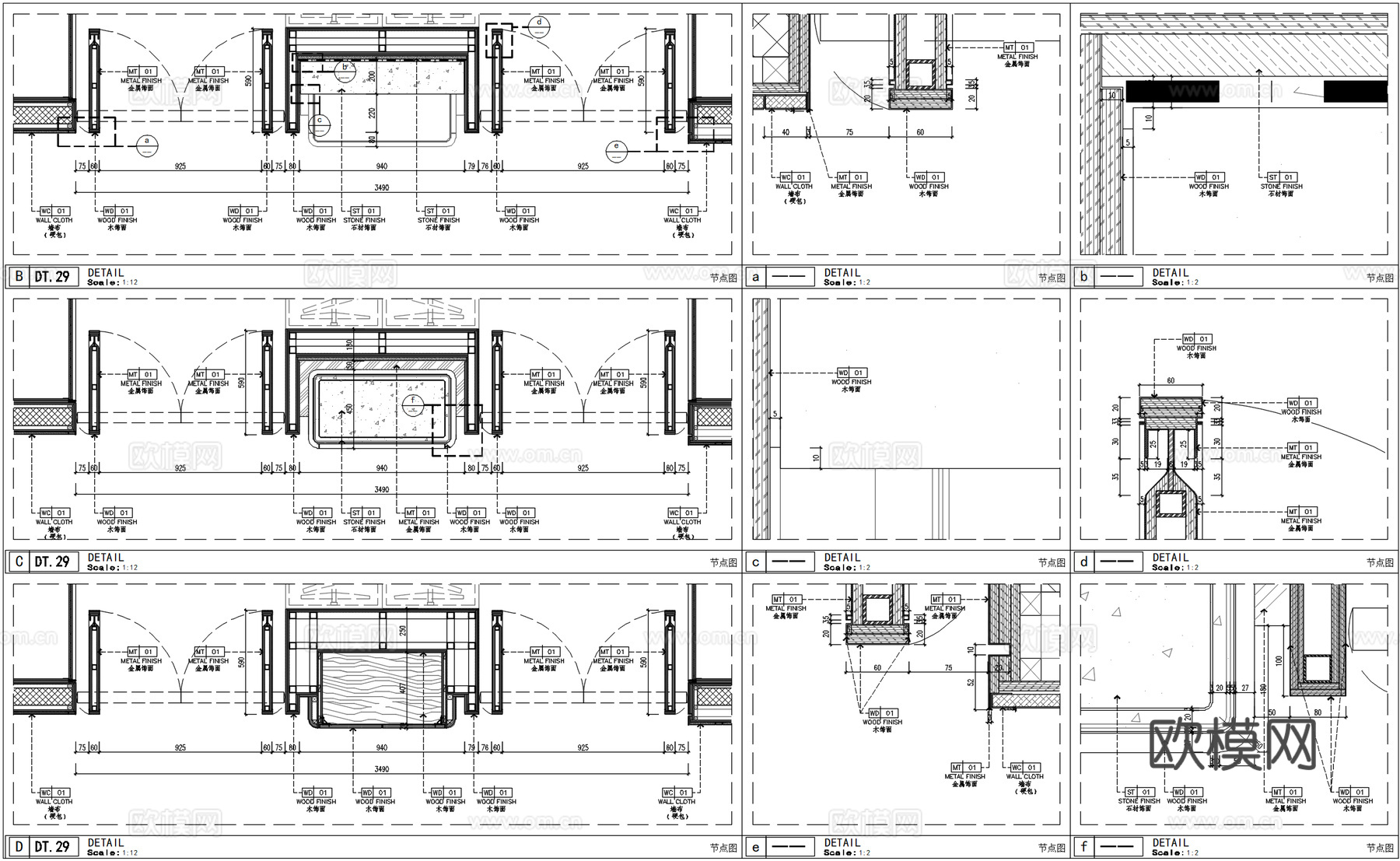
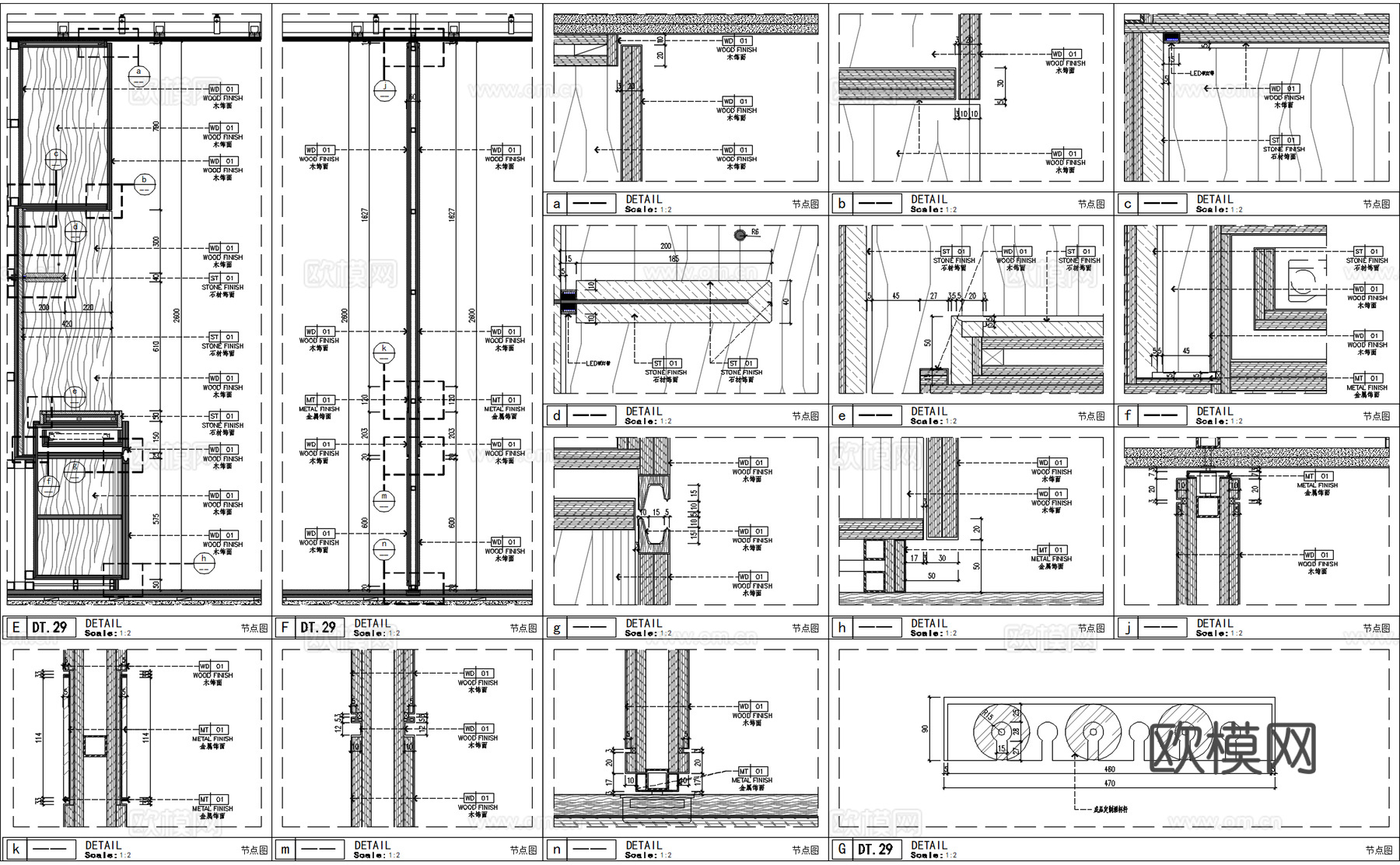
内嵌小型酒吧柜、mini吧柜详图、卧室迷你酒吧柜子、天地轴门cad施工图
ID:
5383284
内嵌小型酒吧柜、mini吧柜详图、卧室迷你酒吧柜子、天地轴门cad施工图 ID-5383284
所需欧币:
36
发布时间:
2026-02-05
下载请使用电脑登录欧模网,建议先收藏
收藏
分享
设计爱好姐
关注
为您推荐
MINIBAR、家庭迷你吧、酒店式迷你吧、卧室迷你吧cad施工图
双开门玻璃柜子 玻璃书柜 内嵌式柜子 柜子节点cad施工图
敞开式柜子隔板 简易壁柜 内嵌式柜子 柜子节点cad施工图
小型酒吧室内装饰CAD施工图集cad施工图
水吧台 石材吧台 酒吧吧台 吧台柜子 吧台节点cad施工图
柜子节点 储藏柜 柜子类 现代柜子cad施工图
餐边柜大样图、内嵌端景柜造型、嵌入式餐边柜详图、墙布柜门工艺cad施工图
门柜子动态图块CADcad施工图
衣柜节点 层板柜 玻璃衣柜 卧室柜子cad施工图
柜子平面立面图 储物间柜子 简易柜子 柜子节点cad施工图
柜子节点cad施工图
酒柜迷你吧台红酒柜剖面详图节点大样CAD素材图库cad施工图
层板柜 鞋柜 柜子节点 木饰面柜子cad施工图
酒吧平面图cad施工图
定制柜 柜子节点 现代健身房柜子 储物柜cad施工图
柜子节点 简易柜子 敞开式衣柜 储物柜cad施工图
烤漆板柜子节点图、办公室资料柜详图、办公区收纳柜、办公室柜子cad施工图
全屋定制图纸柜子衣柜装饰柜房门剖面详图节点大样图CAD素材图cad施工图
酒吧 最新全套施工图设计cad施工图
最新酒吧平面施工图设计cad施工图
点击加载更多
分享到
复制链接
保存海报
取消
请选择收藏夹
+新增收藏夹
新增收藏夹
取消
确认
退出查看