模型详情
1/8
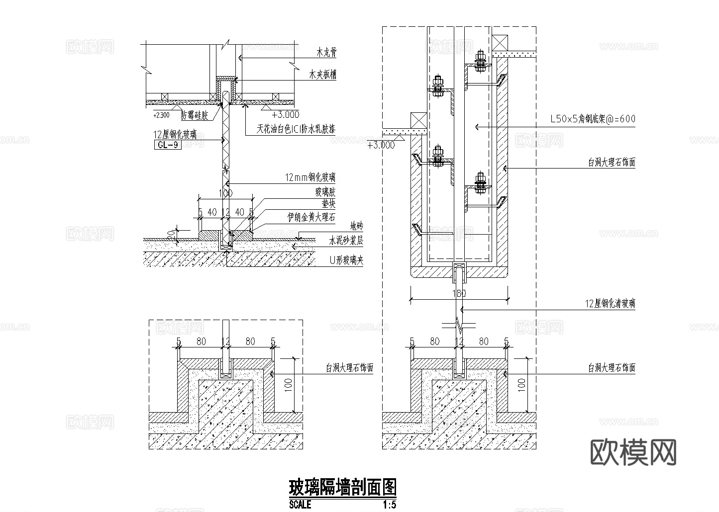
110各类隔墙做法节点墙体CAD施工图最新整理合集cad施工图
ID:
5420561
110各类隔墙做法节点墙体CAD施工图最新整理合集cad施工图 ID-5420561
所需欧币:
86
发布时间:
2026-03-02
下载请使用电脑登录欧模网,建议先收藏
收藏
分享
大可
关注
为您推荐
180个地面CAD节点图最新整理合集cad施工图
20套玻璃类隔断CAD节点详图最新整理合集cad施工图
10套金属铝板CAD节点图最新整理合集cad施工图
65款护栏栏杆扶手CAD节点图最新整理合集cad施工图
200个石材节点大样CAD施工图最新整理合集cad施工图
11套玻璃护栏节点图2026最新整理合集cad施工图
17款窗帘盒节点CAD图纸最新整理合集cad施工图cad施工图
100套门窗节点大样CAD图纸最新整理合集cad施工图
23套前台接待台吧台CAD节点大样施工图最新整理合集cad施工图
32款现代风格暗门隐形门CAD节点图最新整理合集cad施工图
10套文创商店CAD施工图最新整理合集cad施工图
18套食堂建筑cad图纸2026最新整理合集cad施工图
46套卫浴节点图洗手盆淋浴隔断等卫浴CAD节点图最新整理合集cad施工图
20套游泳池CAD图纸2026最新整理合集cad施工图
15套乡村矮墙景墙cad图纸最新整理合集cad施工图
45展示展厅CAD平面设计方案最新整理合集cad施工图
11套KTV娱乐空间室内CAD施工图最新整理合集cad施工图
9套超市商超卖场生鲜店CAD施工图最新整理合集cad施工图
150套自建房别墅CAD图纸2026最新整理合集cad施工图
660套现代风格吊顶节点大样图最新整理合集cad施工图
点击加载更多
分享到
复制链接
保存海报
取消
请选择收藏夹
+新增收藏夹
新增收藏夹
取消
确认
退出查看