模型详情
1/1
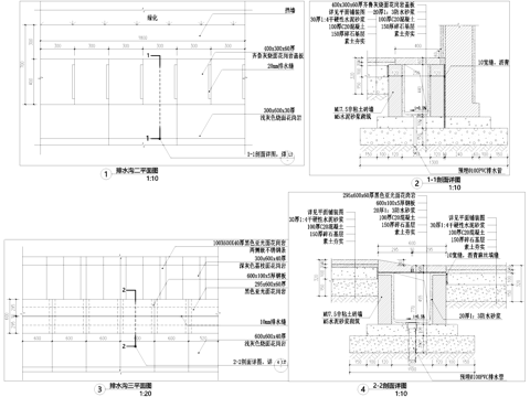
管道开挖断面图 给排水节点cad施工图
ID:
5384219
管道开挖断面图 给排水节点cad施工图 ID-5384219
所需欧币:
16
发布时间:
2026-02-06
下载请使用电脑登录欧模网,建议先收藏
收藏
分享
皮肤干燥
关注
为您推荐
给排水节点详图 给水管道开挖回填 给水管沟开挖回填 排水管网cad施工图
排水沟节点 篦子 给排水节点详图cad施工图
管沟开挖回填管道沟槽图绿化取水器排水口雨水口详图CAD素材cad施工图
排水沟节点 排水暗沟 CAD施工图cad施工图
排水沟节点 篦子 排水盖板 CAD施工图cad施工图
排水沟节点 盖板 井盖节点 CAD施工图cad施工图
排水沟节点CAD施工图cad施工图
排水沟节点CAD施工图cad施工图
排水沟节点 地坪排水导沟 CAD施工图cad施工图
井盖节点 篦子 沟盖板 给排水节点详图cad施工图
沥青道路断面图cad施工图
排水沟节点 排水口盖板CAD施工图cad施工图
排水沟节点盖板CAD施工图cad施工图
排水沟节点盖板CAD施工图cad施工图
HDPE管道 检查井连接节点cad施工图
沟盖板 排水盖板 井盖节点 CAD施工图cad施工图
排水井 盖板 井盖节点 CAD施工图cad施工图
给排水通用节点大样详图CAD施工图cad施工图
给排水节点详图 排水井 线性排水沟cad施工图
篦子 排水沟节点cad施工图
点击加载更多
分享到
复制链接
保存海报
取消
请选择收藏夹
+新增收藏夹
新增收藏夹
取消
确认
退出查看