模型详情
1/3
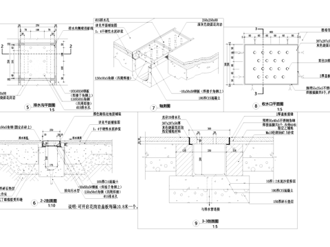
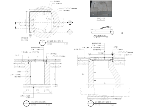
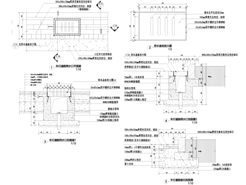
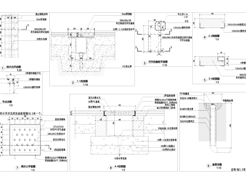
管沟开挖回填管道沟槽图绿化取水器排水口雨水口详图CAD素材cad施工图
ID:
5419457
管沟开挖回填管道沟槽图绿化取水器排水口雨水口详图CAD素材cad施工图 ID-5419457
所需欧币:
36
发布时间:
2026-02-27
下载请使用电脑登录欧模网,建议先收藏
收藏
分享
158****5924
关注
为您推荐
管沟管道包管涵管雨污水管管线埋管开挖回填CAD施工图集 9套cad施工图
给排水节点详图 给水管道开挖回填 给水管沟开挖回填 排水管网cad施工图
排水沟节点 排水口盖板CAD施工图cad施工图
排水沟 排水管 篦子 排水口灌溉取水口 种植槽溢水排水cad施工图
快速取水阀排水口井盖给排水节点CAD施工图集 11套cad施工图
管道开挖断面图 给排水节点cad施工图
雨水口节点盲管CAD施工图cad施工图
道路景观绿化CAD施工图详图集cad施工图
管卡 管夹 管箍 管束 管道固定夹cad施工图
雨水口排水沟节点CAD施工图cad施工图
雨水口节点 绿化边沿 镀锌钢板雨水口 CAD施工图cad施工图
排水沟节点收水口盖板CAD施工图cad施工图
屋面透水盲管布置 排水盲沟 泄水口 排水管节点 建筑给排水cad施工图cad施工图
快速取水器取水阀安装大样给排水节点cad施工图
排水沟节点收水口篦子盖板CAD施工图cad施工图
雨水口排水沟节点盖板篦子CAD施工图cad施工图
雨水口给排水节点详图cad施工图
天花吊顶平面剖面节点详图CAD素材图库cad施工图cad施工图
排水沟收水口收水缝盖板CAD施工图cad施工图
井盖节点 铺装地面隐蔽式 装饰井盖 盖板 排水口CAD施工图cad施工图cad施工图
点击加载更多
分享到
复制链接
保存海报
取消
请选择收藏夹
+新增收藏夹
新增收藏夹
取消
确认
退出查看