模型详情
1/4
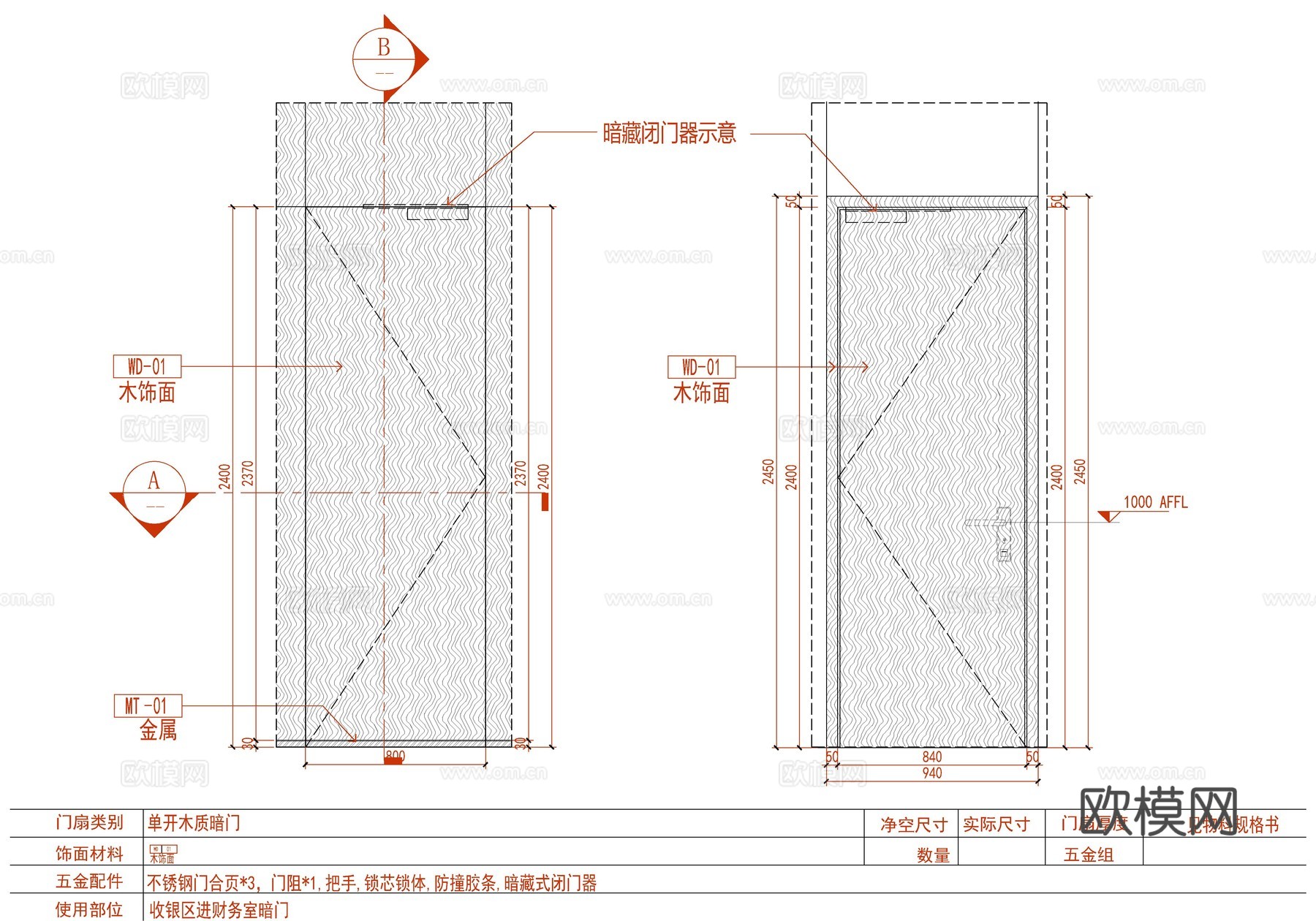
木饰面隐形门施工大样详图 木饰面暗门 门表图 木饰面门大样cad施工图
ID:
5385938
木饰面隐形门施工大样详图 木饰面暗门 门表图 木饰面门大样cad施工图 ID-5385938
所需欧币:
36
发布时间:
2026-02-09
下载请使用电脑登录欧模网,建议先收藏
收藏
分享
追风筝的人
关注
为您推荐
木饰面双开隐形门施工大样详图 木饰面暗门 对开门门表图 木cad施工图
石材隐形门施工大样详图 石材暗门 门表图 木饰面门大样详图cad施工图
木饰面套装门施工大样详图 门表图门大样 门带门套套装门cad施工图
卫生间暗门 卧室暗门 木皮饰面暗门 门节点cad施工图
门大样图 卧室门 单开门 木饰面平开门cad施工图
空心木饰面门节点 CAD施工图cad施工图
涂料铝木隐形门暗门节点大样详图CAD施工图集cad施工图
单开门平开门 木饰面门 门大样图 卫生间门cad施工图
木饰面单开门 现代门 卫生间门 门节点cad施工图
意大利餐厅门表门节点大样详图CAD施工图cad施工图
别墅家装门表门节点大样详图CAD施工图cad施工图
吊顶节点 木饰面天花节点cad施工图
中餐厅门表门节点大样详图CAD施工图cad施工图
中餐厅门表门节点大样详图CAD施工图cad施工图
酒店门表门节点石材暗门大样CAD施工图cad施工图
石材木饰面微水泥脱缝大样 墙面阴角阳角大样图cad施工图
门节点大样详图CAD施工图cad施工图
酒店门表门节点大样CAD施工图cad施工图
隐形门节点 石材暗门 防火门 CAD施工图cad施工图
实木单双开门节点大样详图CAD施工图cad施工图
点击加载更多
分享到
复制链接
保存海报
取消
请选择收藏夹
+新增收藏夹
新增收藏夹
取消
确认
退出查看