模型详情
1/6
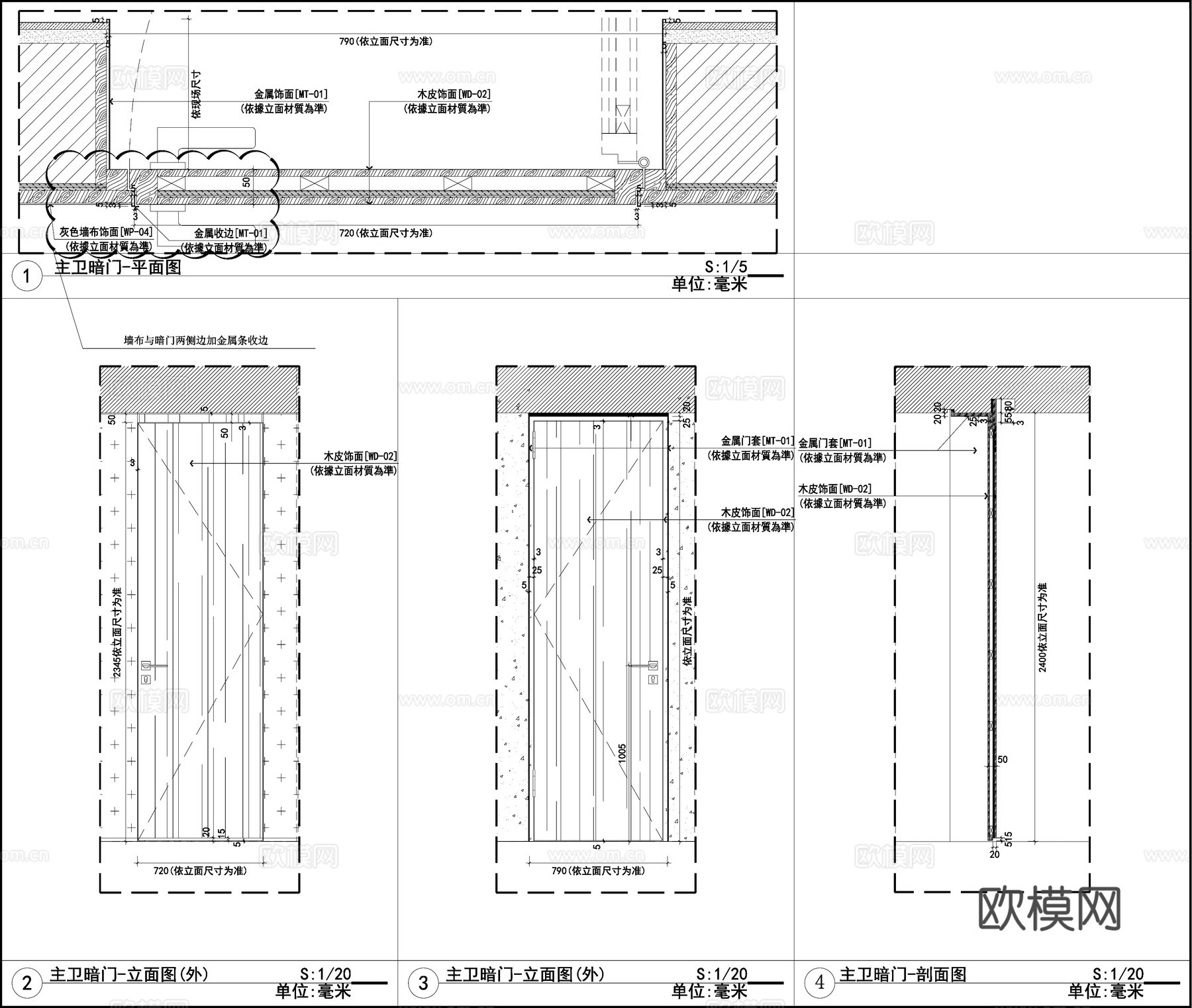
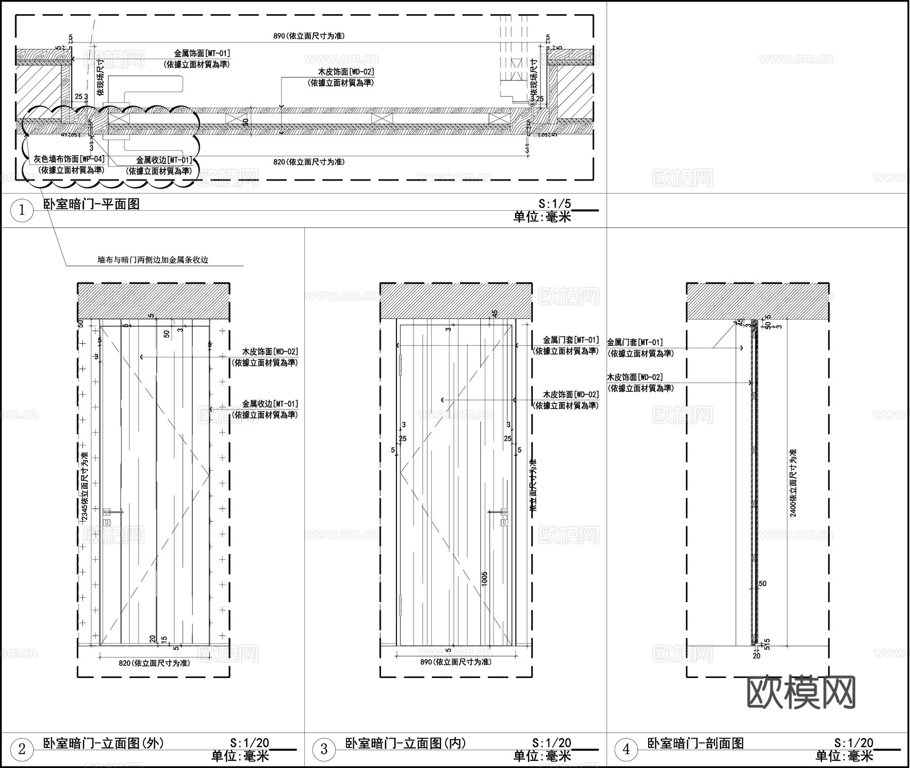
卫生间暗门 卧室暗门 木皮饰面暗门 门节点cad施工图
ID:
5252255
卫生间暗门 卧室暗门 木皮饰面暗门 门节点cad施工图 ID-5252255
所需欧币:
36
发布时间:
2025-12-19
下载请使用电脑登录欧模网,建议先收藏
收藏
分享
妮子1973
关注
为您推荐
石材暗门节点cad施工图
木饰面隐形门施工大样详图 木饰面暗门 门表图 木饰面门大样cad施工图
隐形门节点洗手间暗门钢化玻璃门CADcad施工图
涂料铝木隐形门暗门节点大样详图CAD施工图集cad施工图
木饰面双开隐形门施工大样详图 木饰面暗门 对开门门表图 木cad施工图
隐形门节点 石材暗门 防火门 CAD施工图cad施工图
32款现代风格暗门隐形门CAD节点图最新整理合集cad施工图
酒店门表门节点石材暗门大样CAD施工图cad施工图
石材隐形门施工大样详图 石材暗门 门表图 木饰面门大样详图cad施工图
远控排烟阀(口)操作装置暗门立面详图cad施工图
家装暗门隐形门房门单开门剖面做法工艺详图节点CAD素材图库cad施工图
暗门详图超高超重门做法地弹簧玻璃门移门剖面详图节点CAD素材cad施工图
房门大门玻璃门暗门防火门推拉门自动门卫生间门详图节点CAD素cad施工图
墙面涂料做法石材铺设天花消防栓石材暗门节点CAD素材图库cad施工图
空心木饰面门节点 CAD施工图cad施工图
木饰面单开门 现代门 卫生间门 门节点cad施工图
吊顶节点 木饰面天花节点cad施工图
石材大样图干挂石材暗门石材踢脚线墙面剖面详图节点大样CAD素cad施工图
样板间卧室门节点 木门节点 房间门节点cad施工图
卧室卫生间过门石节点cad施工图
点击加载更多
分享到
复制链接
保存海报
取消
请选择收藏夹
+新增收藏夹
新增收藏夹
取消
确认
退出查看