模型详情
1/8
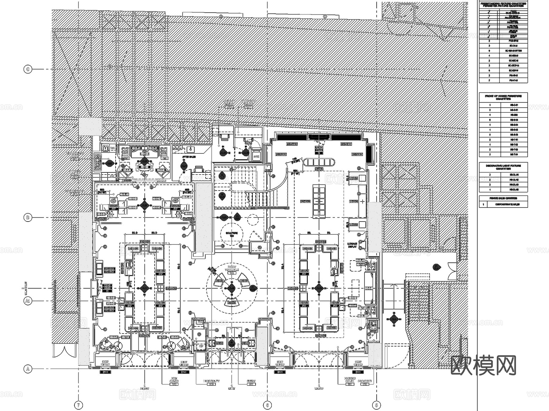
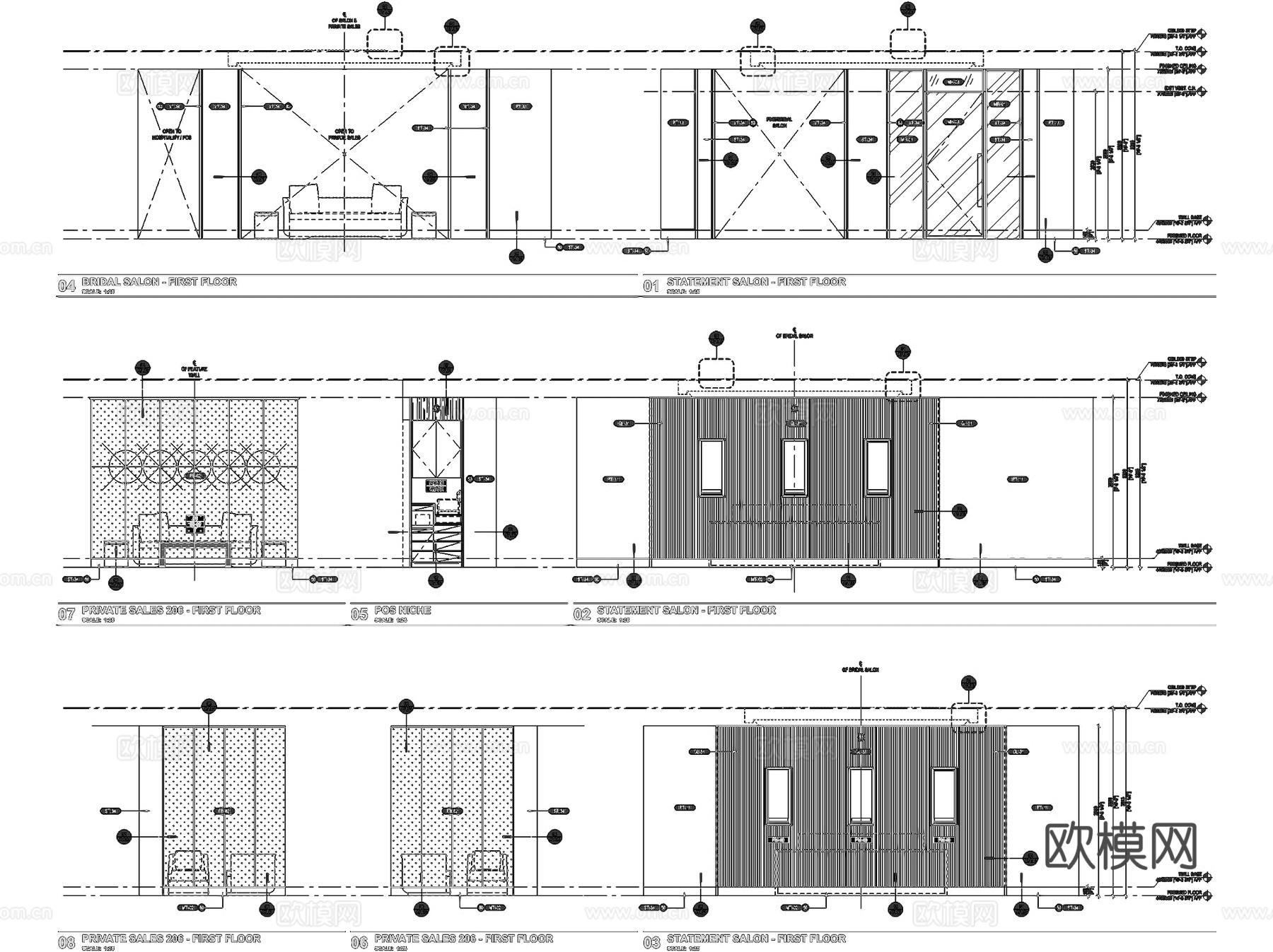
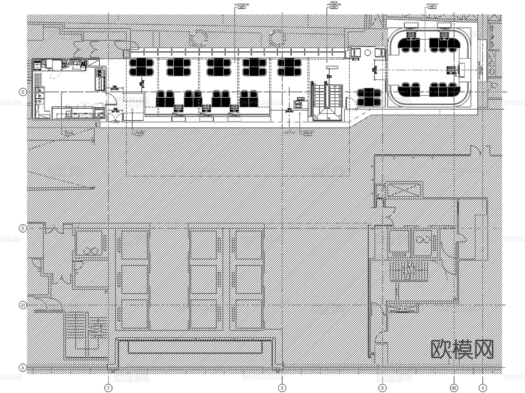
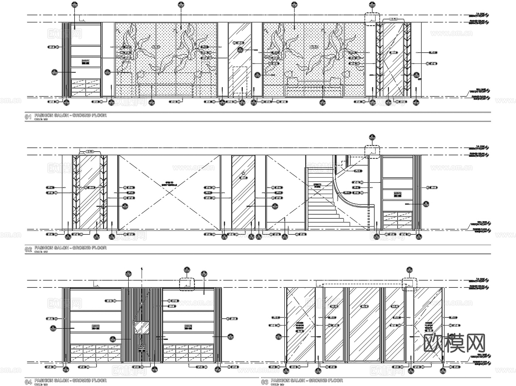
TIFFANY&CO.蒂芙尼珠宝店室内工装CAD施工图cad施工图
ID:
5389633
TIFFANY&CO.蒂芙尼珠宝店室内工装CAD施工图cad施工图 ID-5389633
所需欧币:
36
发布时间:
2026-02-09
下载请使用电脑登录欧模网,建议先收藏
收藏
分享
皮肤干燥
关注
为您推荐
上海Cartier珠宝店室内工装CAD施工图cad施工图
信得安珠宝店室内工装CAD施工图cad施工图
六桂福珠宝店室内工装CAD施工图cad施工图
大家赢金服珠宝店室内工装CAD施工图cad施工图
Tera Star钻之韵珠宝店室内工装CAD施工图cad施工图
珍石轩金石玉器珠宝店室内工装CAD施工图cad施工图
小型书吧室内工装CAD施工图cad施工图
综合工装室内CAD图库cad施工图
室内工装综合CAD图库cad施工图
玉雕文化展厅室内工装CAD施工图cad施工图cad施工图
室内建筑景观工装综合CAD图库cad施工图cad施工图
民宿酒店室内工装CAD施工图cad施工图
西餐厅室内工装CAD施工图cad施工图
民宿酒店室内工装CAD施工图cad施工图
咖啡厅室内工装CAD施工图cad施工图
桑拿休息大厅室内工装CAD施工图cad施工图
现代度假风民宿室内工装CAD施工图cad施工图
茶文化展厅室内工装CAD施工图cad施工图
西餐厅室内工装CAD施工图cad施工图
广州南沙餐厅室内工装CAD施工图cad施工图
点击加载更多
分享到
复制链接
保存海报
取消
请选择收藏夹
+新增收藏夹
新增收藏夹
取消
确认
退出查看