模型详情
1/8
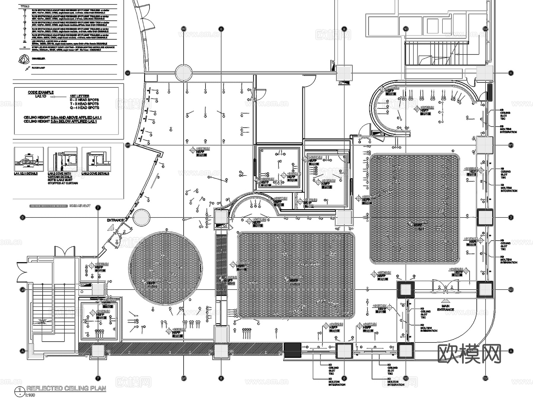
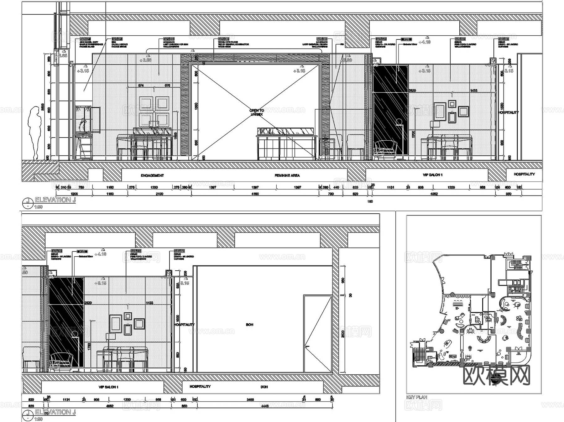
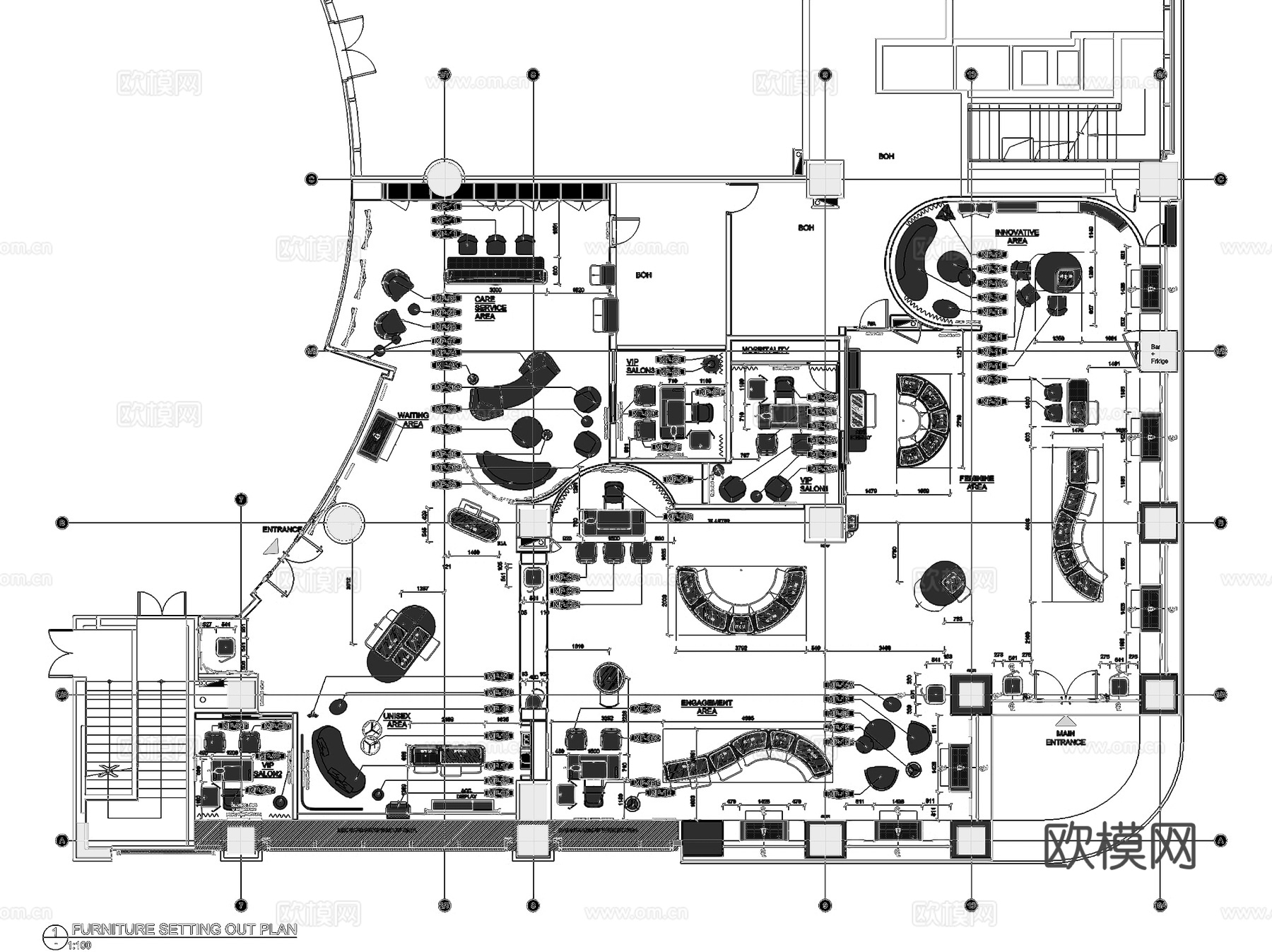
上海Cartier珠宝店室内工装CAD施工图cad施工图
ID:
5389661
上海Cartier珠宝店室内工装CAD施工图cad施工图 ID-5389661
所需欧币:
36
发布时间:
2026-02-09
下载请使用电脑登录欧模网,建议先收藏
收藏
分享
皮肤干燥
关注
为您推荐
信得安珠宝店室内工装CAD施工图cad施工图
六桂福珠宝店室内工装CAD施工图cad施工图
上海肯德基曼克顿店室内工装CAD施工图cad施工图
上海玛尚诺披萨店室内工装CAD施工图cad施工图
大家赢金服珠宝店室内工装CAD施工图cad施工图
Tera Star钻之韵珠宝店室内工装CAD施工图cad施工图
上海嘉昱大厦图书馆室内工装CAD施工图cad施工图
珍石轩金石玉器珠宝店室内工装CAD施工图cad施工图
TIFFANY&CO.蒂芙尼珠宝店室内工装CAD施工图cad施工图
小型书吧室内工装CAD施工图cad施工图
综合工装室内CAD图库cad施工图
室内工装综合CAD图库cad施工图
玉雕文化展厅室内工装CAD施工图cad施工图cad施工图
上海万科云方亭图书馆室内工装CAD施工图cad施工图
室内建筑景观工装综合CAD图库cad施工图cad施工图
民宿酒店室内工装CAD施工图cad施工图
西餐厅室内工装CAD施工图cad施工图
民宿酒店室内工装CAD施工图cad施工图
咖啡厅室内工装CAD施工图cad施工图
桑拿休息大厅室内工装CAD施工图cad施工图
点击加载更多
分享到
复制链接
保存海报
取消
请选择收藏夹
+新增收藏夹
新增收藏夹
取消
确认
退出查看