模型详情
1/8
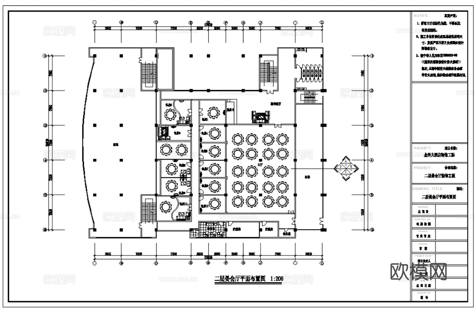
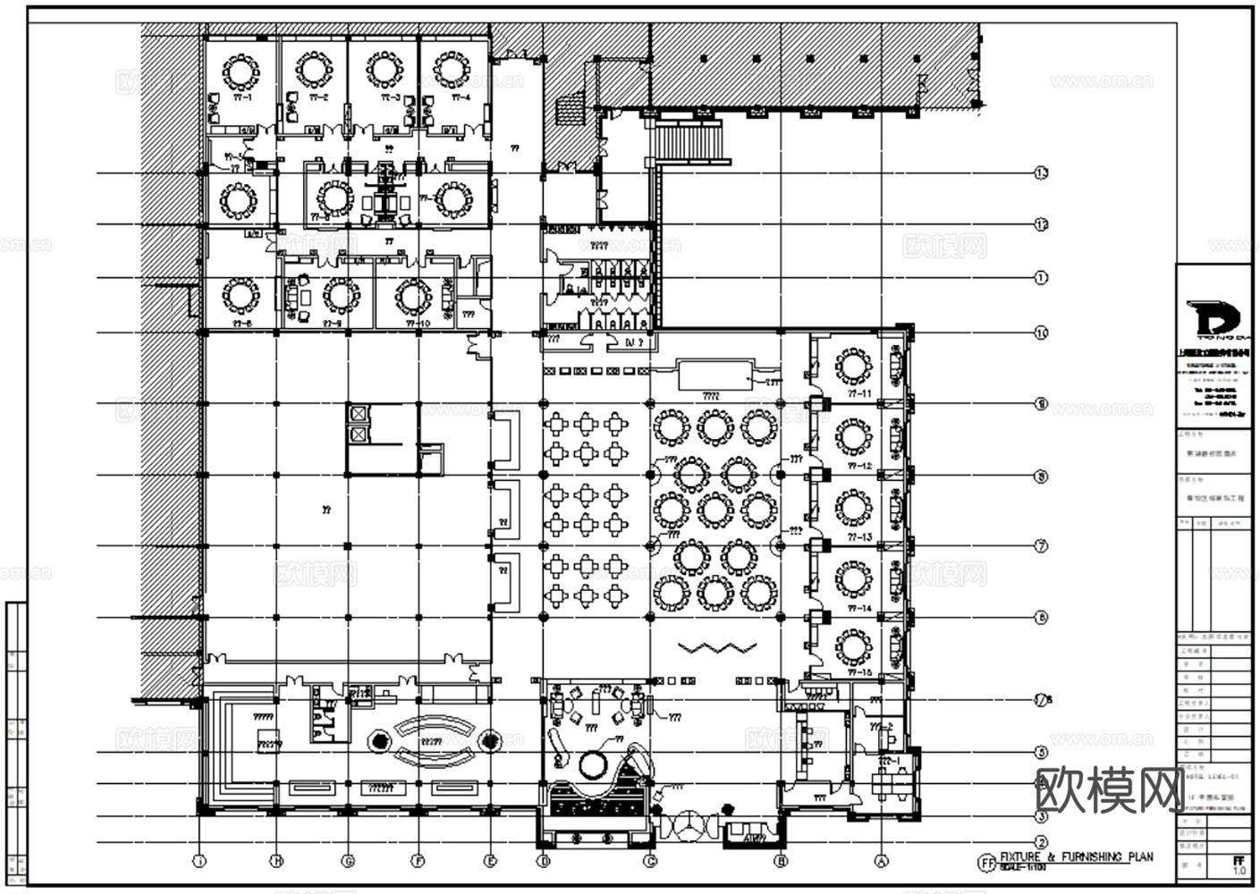
23套酒店餐厅全日餐厅自助餐厅CAD施工图最新整理合集cad施工图
ID:
5391137
23套酒店餐厅全日餐厅自助餐厅CAD施工图最新整理合集cad施工图 ID-5391137
所需欧币:
86
发布时间:
2026-02-09
下载请使用电脑登录欧模网,建议先收藏
收藏
分享
大可
关注
为您推荐
西餐厅 自助餐厅 最新全套施工图合集cad施工图
730平自助餐厅 最新全套施工图合集cad施工图
29套餐厅酒店包房CAD详图2026最新整理合集cad施工图
9套自助餐厅室内CAD施工图最近整理合集cad施工图
450平西餐厅 自助餐厅 最新全套施工图合集cad施工图
10套自助餐厅室内装饰CAD施工图效果图最新整理合集cad施工图
500平西餐厅 自助餐厅 最新平面施工图合集cad施工图
28套餐厅平面CAD设计方案图纸最新整理合集cad施工图
酒店中餐厅 最新全套施工图合集cad施工图
35套餐厅快餐厅平面CAD设计方案图纸最新整理合集cad施工图
180个地面CAD节点图最新整理合集cad施工图
2026最新自助餐厅餐台CAD图库cad施工图
自助餐厅 最新全套施工图设计cad施工图
10套文创商店CAD施工图最新整理合集cad施工图
18套食堂建筑cad图纸2026最新整理合集cad施工图
高档餐厅会所 最新全套施工图合集cad施工图
特色餐厅 最新平面施工图合集cad施工图
高档餐厅会所 最新全套施工图合集cad施工图
110各类隔墙做法节点墙体CAD施工图最新整理合集cad施工图
2026年最新自助餐厅餐台CAD图库cad施工图
点击加载更多
分享到
复制链接
保存海报
取消
请选择收藏夹
+新增收藏夹
新增收藏夹
取消
确认
退出查看