模型详情
1/8
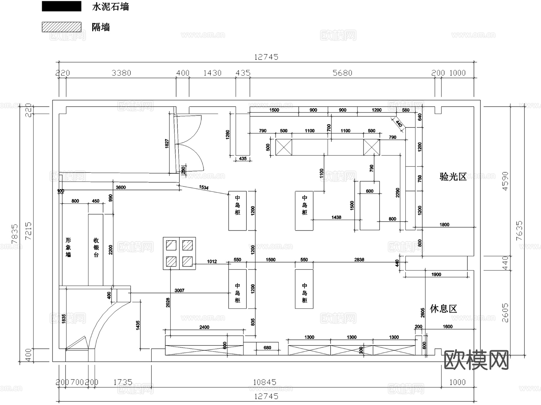
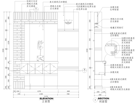
眼镜店平立面及柜子节点CAD施工图cad施工图
ID:
5394017
眼镜店平立面及柜子节点CAD施工图cad施工图 ID-5394017
所需欧币:
16
发布时间:
2026-02-09
下载请使用电脑登录欧模网,建议先收藏
收藏
分享
皮肤干燥
关注
为您推荐
柜子节点cad施工图
乐器CAD平立面图库cad施工图
衣柜 柜体节点 柜子立面图 CAD施工图cad施工图
酒店平立面建筑CAD施工图集cad施工图
某村镇规划平立面CAD施工图cad施工图
200套家装柜子CAD立面施工图cad施工图
玫瑰苑别墅建筑平立面CAD施工图cad施工图
门窗平立面CAD图库cad施工图
CAD手绘风平立面图库cad施工图
车辆平立面CAD图库cad施工图
厨房平立面图 现代厨房 厨房布局节点 墙面节点cad施工图
入口伸缩大门平立面大样CAD施工图cad施工图
人物平立面CAD施工图图例合集cad施工图
玄关隔断节点 柜子cad施工图
玄关隔断节点 柜子cad施工图
柜子平面立面图 储物间柜子 简易柜子 柜子节点cad施工图
假山跌水CAD平立面图块cad施工图
各类车辆平立面CAD图库cad施工图
行李箱衣服鞋帽CAD平立面cad施工图
儿童游乐设施滑梯平立面CAD图库cad施工图
点击加载更多
分享到
复制链接
保存海报
取消
请选择收藏夹
+新增收藏夹
新增收藏夹
取消
确认
退出查看