模型详情
1/8
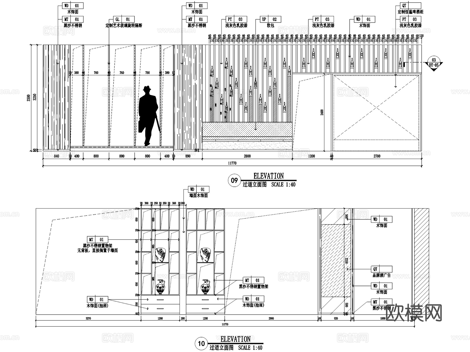
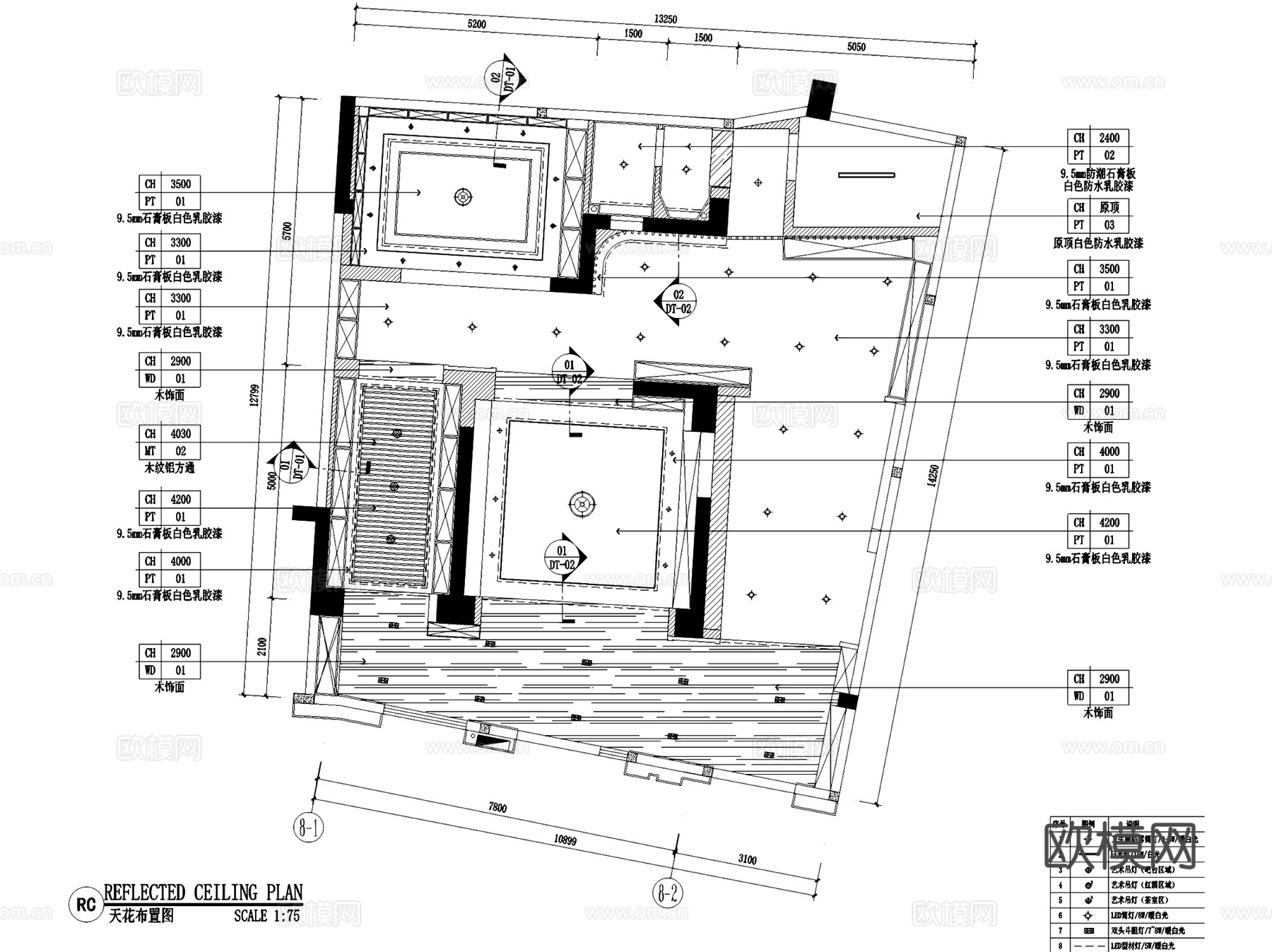
珈兰上品茅台酱香酒体验中心室内工装CAD施工图cad施工图
ID:
5394030
珈兰上品茅台酱香酒体验中心室内工装CAD施工图cad施工图 ID-5394030
所需欧币:
36
发布时间:
2026-02-09
下载请使用电脑登录欧模网,建议先收藏
收藏
分享
皮肤干燥
关注
为您推荐
兰光大厦36楼会所室内工装CAD施工图cad施工图
购物中心麒麟阁餐厅室内工装CAD施工图cad施工图
东兰路奶油风美甲店室内工装CAD施工图cad施工图
社区党群服务活动中心室内工装CAD施工图cad施工图
永川兰乔圣菲26栋会所室内工装CAD施工图cad施工图
酱板鸭施工图cad施工图
4s店汽车展厅维修体验服务中心室内工装cad施工图cad施工图
影帝天池之星宾馆洗浴中心室内工装CAD施工图cad施工图
西安绿地中心A座办公楼室内工装CAD施工图cad施工图
红岩党群服务中心室内工装CAD施工图cad施工图
小型书吧室内工装CAD施工图cad施工图
综合工装室内CAD图库cad施工图
室内工装综合CAD图库cad施工图
玉雕文化展厅室内工装CAD施工图cad施工图cad施工图
二层社区党群服务中心展厅室内工装CAD施工图cad施工图
同和文化休闲中心B栋会所室内工装CAD施工图cad施工图
岳阳锦绣华城售楼中心室内工装CAD施工图整套cad施工图
室内建筑景观工装综合CAD图库cad施工图cad施工图
民宿酒店室内工装CAD施工图cad施工图
西餐厅室内工装CAD施工图cad施工图
点击加载更多
分享到
复制链接
保存海报
取消
请选择收藏夹
+新增收藏夹
新增收藏夹
取消
确认
退出查看