模型详情
1/4
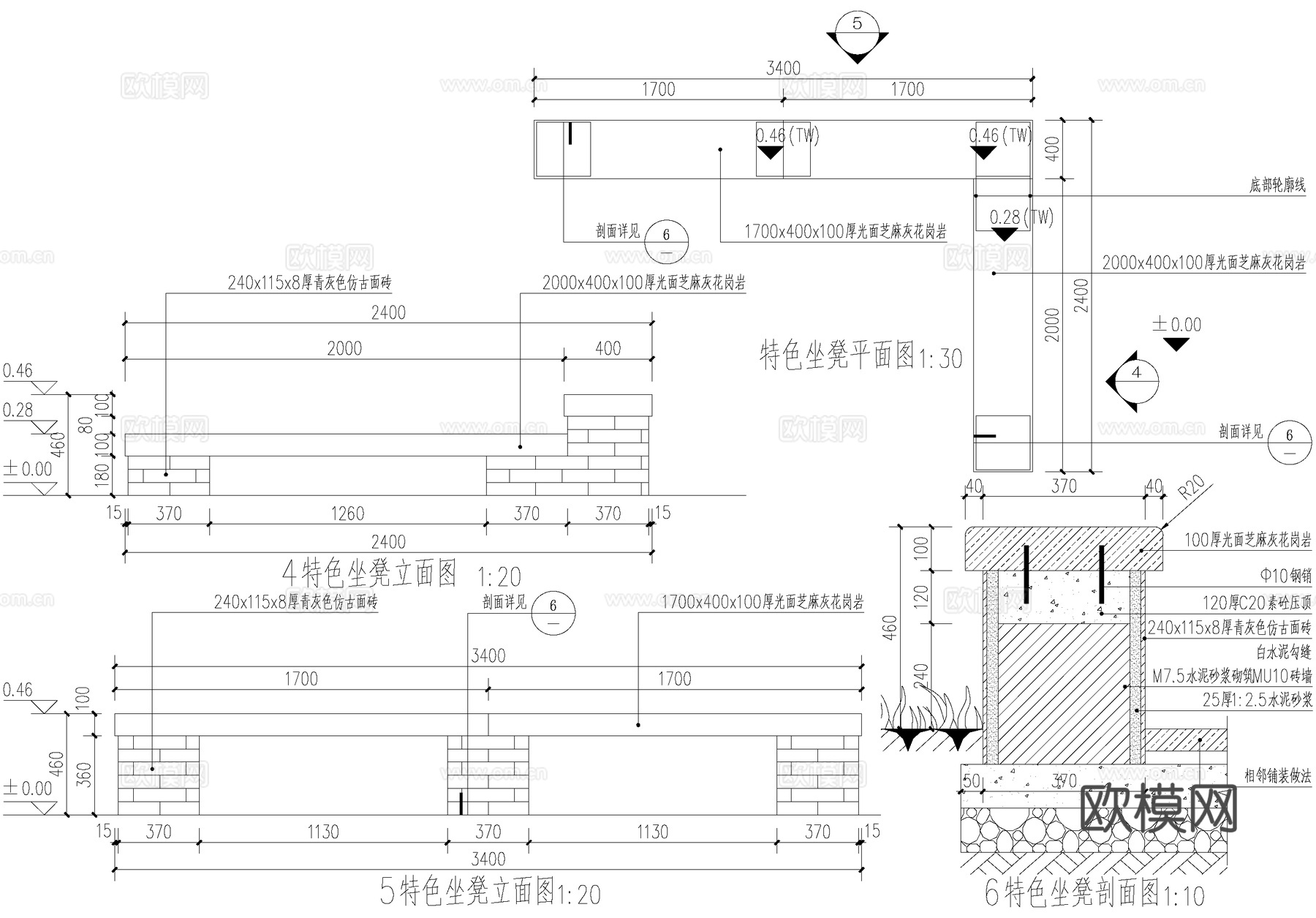
新中式青砖花岗岩景观坐凳cad施工图
ID:
5394636
新中式青砖花岗岩景观坐凳cad施工图 ID-5394636
所需欧币:
16
发布时间:
2026-02-09
下载请使用电脑登录欧模网,建议先收藏
收藏
分享
皮肤干燥
关注
为您推荐
景观坐凳详图CAD施工图cad施工图
景观坐凳 石凳 花岗岩座凳cad施工图
景观坐凳 石凳 花岗岩座凳cad施工图
新中式防腐木坐凳景观座凳cad施工图
新中式景观坐凳 石桌凳 花岗岩座凳cad施工图
异型休闲廊架坐凳景观节点CAD施工图+SU模型cad施工图
新中式景观坐凳 石桌凳 棋盘桌cad施工图
乡村青砖矮墙景观围墙cad施工图
乡村菜园青砖矮墙景观围墙cad施工图
单臂钢结构休闲廊架坐凳景观节点详图CAD施工图cad施工图
景观台阶铺装坐凳小品亭子CAD节点施工图合集cad施工图
新中式景观坐凳 工艺石桌凳 棋盘桌座凳cad施工图
木平台 钢结构平台 景观木坐凳座凳 观景台cad施工图
树池坐凳平面CADcad施工图
广场剖面图灯带挡土墙树池坐凳景观CAD施工图cad施工图
梯级坐凳节点大样图cad施工图
新中式休闲景观亭凉亭格栅CAD施工图集cad施工图
景观桥CAD施工图cad施工图
木栈道 防腐木坐凳 三角形景观座凳cad施工图
景观雕塑CAD施工图cad施工图
点击加载更多
分享到
复制链接
保存海报
取消
请选择收藏夹
+新增收藏夹
新增收藏夹
取消
确认
退出查看