模型详情
1/8
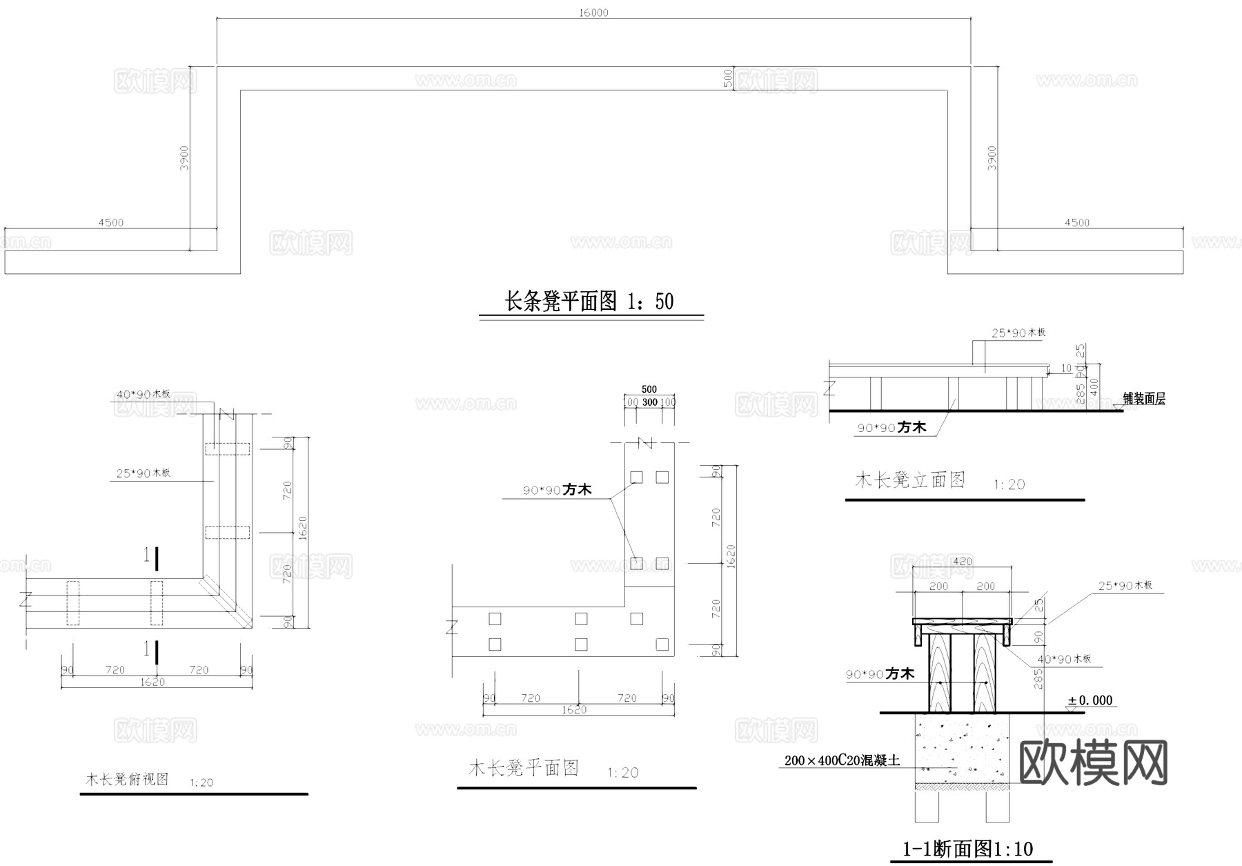
景观台阶铺装坐凳小品亭子CAD节点施工图合集cad施工图
ID:
5410798
景观台阶铺装坐凳小品亭子CAD节点施工图合集cad施工图 ID-5410798
所需欧币:
16
发布时间:
2026-02-24
下载请使用电脑登录欧模网,建议先收藏
收藏
分享
皮肤干燥
关注
为您推荐
景观园路道路铺装节点CAD施工图cad施工图
景观道路铺装节点大样详图CAD施工图cad施工图
叠落式台阶道路景观节点CAD施工图cad施工图
青瓦铺装收边交接景观节点详图CAD施工图cad施工图cad施工图
青瓦砾石铺装景观节点详图CAD施工图cad施工图
景观园路铺装挡土墙驳岸节点CAD施工图cad施工图
异型休闲廊架坐凳景观节点CAD施工图+SU模型cad施工图
景观坐凳详图CAD施工图cad施工图
铺装通用节点大样详图CAD施工图cad施工图
瓦片分隔节点景观地面铺装收边交接详图CAD施工图cad施工图
景观道路铺装地面工艺做法节点大样详图CAD施工图cad施工图
台阶踏步剖面节点大样CAD施工图cad施工图
铺装 景观台阶石材开槽内嵌灯带cad施工图cad施工图
砾石地面铺装收边节点CAD施工图cad施工图
单臂钢结构休闲廊架坐凳景观节点详图CAD施工图cad施工图
景观小品节点大样汇总CAD施工图cad施工图
景观道路铺装木平台标准节点大样详图CAD施工图cad施工图
地毯铺装CAD施工图cad施工图
景观沙池汀步铺装节点大样CAD施工详图cad施工图
35套景观园林道路地面铺装标准做法节点详图CAD施工图cad施工图
点击加载更多
分享到
复制链接
保存海报
取消
请选择收藏夹
+新增收藏夹
新增收藏夹
取消
确认
退出查看