模型详情
1/8
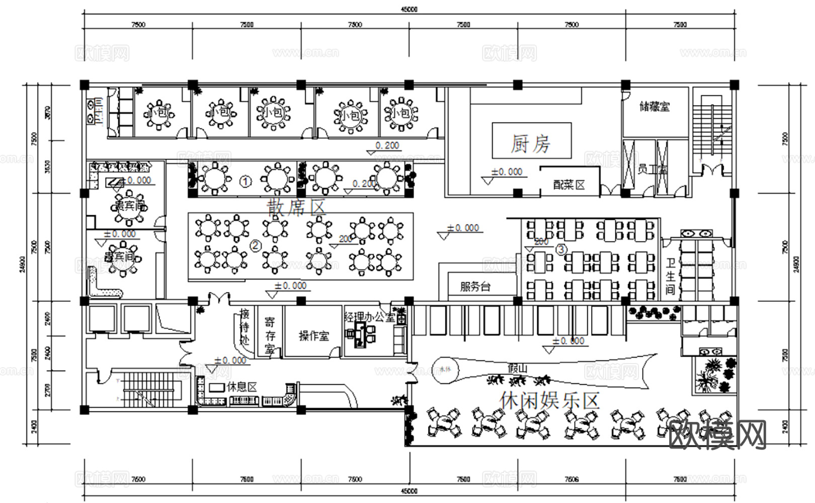
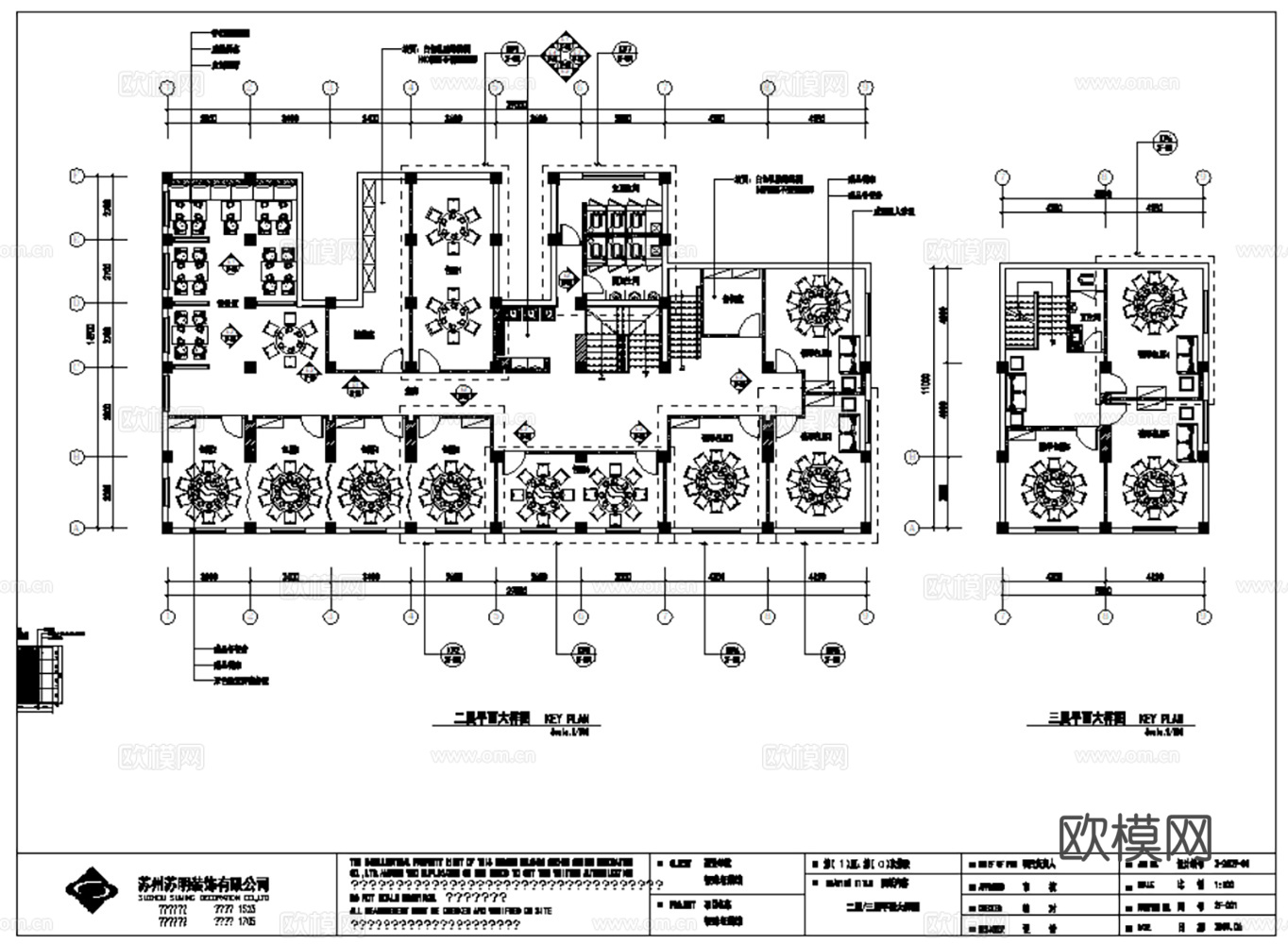
31套中餐厅餐饮空间室内装饰装修CAD施工图最新整理合集cad施工图
ID:
5396855
31套中餐厅餐饮空间室内装饰装修CAD施工图最新整理合集cad施工图 ID-5396855
所需欧币:
86
发布时间:
2026-02-09
下载请使用电脑登录欧模网,建议先收藏
收藏
分享
大可
关注
为您推荐
20套餐饮空间CAD平面设计方案最新整理合集cad施工图
20套现代中式中餐厅室内装饰CAD施工图最新整理合集cad施工图
工装空间图库整理合集cad施工图
工装空间图库整理合集cad施工图
工装空间图库整理合集cad施工图
11套KTV娱乐空间室内CAD施工图最新整理合集cad施工图
15套快餐店室内装饰装修CAD施工图效果图最新整理合集cad施工图
180个地面CAD节点图最新整理合集cad施工图
10套现代火锅店室内装饰CAD施工图最新整理合集cad施工图
10套文创商店CAD施工图最新整理合集cad施工图
10套现代火锅店室内装饰CAD施工图最新整理合集cad施工图
中餐厅 最新全套施工图合集cad施工图
18套食堂建筑cad图纸2026最新整理合集cad施工图
110各类隔墙做法节点墙体CAD施工图最新整理合集cad施工图
10套高档电梯轿厢装修施工2026最新整理合集cad施工图
4套酒店室内装饰CAD施工图效果图最新整理合集cad施工图
特色中餐厅 最新全套施工图合集cad施工图
高档中餐厅 最新全套施工图合集cad施工图
20套游泳池CAD图纸2026最新整理合集cad施工图
700㎡餐饮会所 最新平面施工图合集cad施工图
点击加载更多
分享到
复制链接
保存海报
取消
请选择收藏夹
+新增收藏夹
新增收藏夹
取消
确认
退出查看