模型详情
1/8
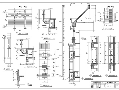
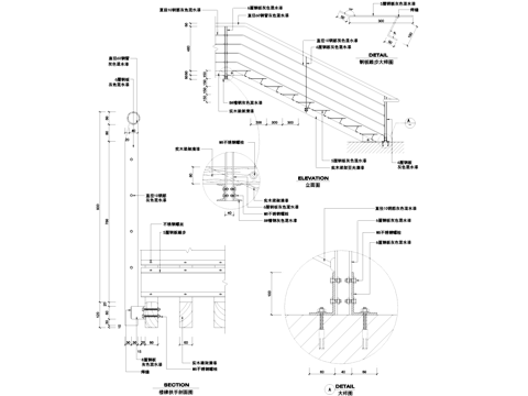
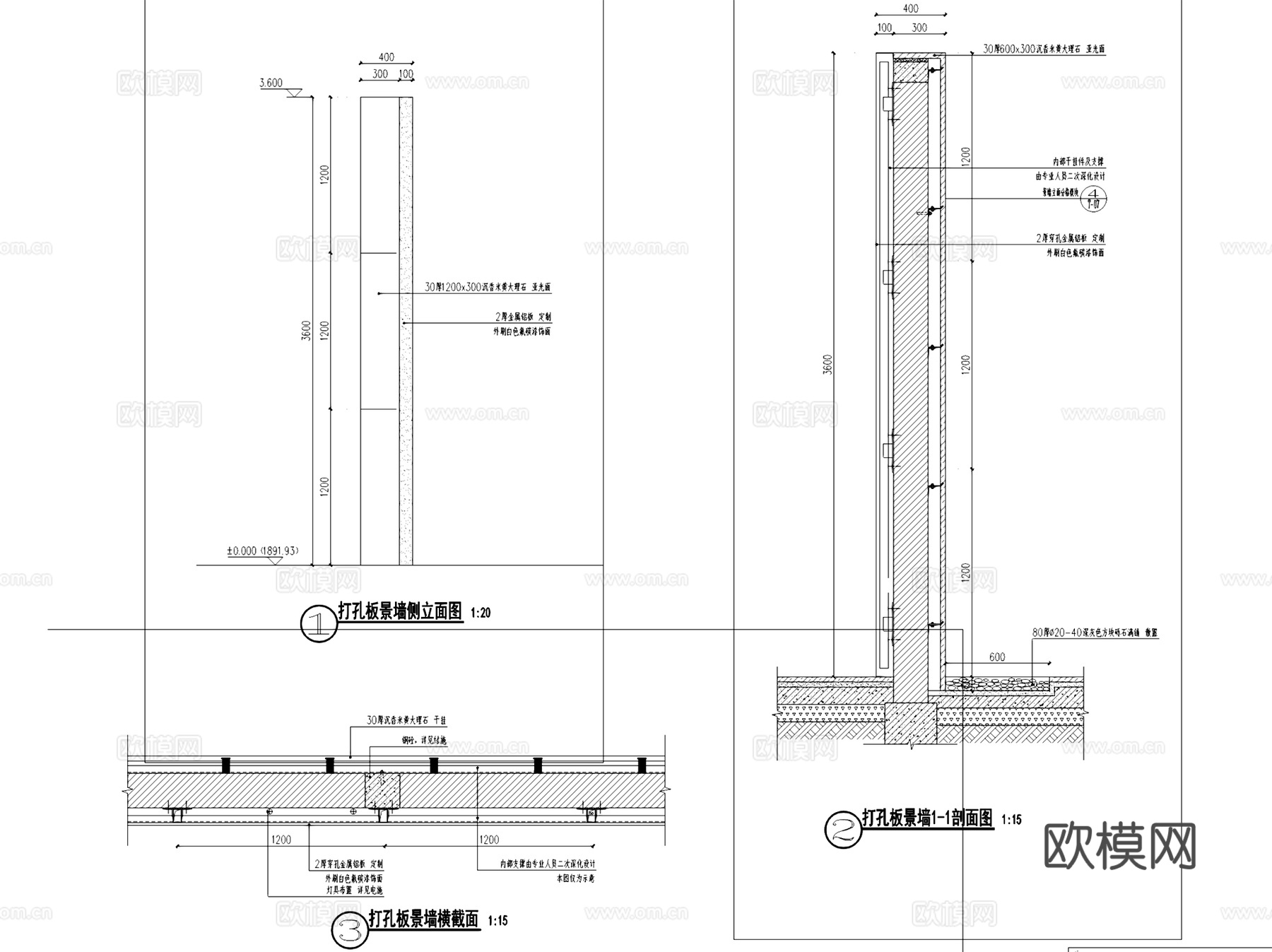
穿孔板冲孔板铝板节点大样详图CAD施工图集cad施工图
ID:
5401883
穿孔板冲孔板铝板节点大样详图CAD施工图集cad施工图 ID-5401883
所需欧币:
36
发布时间:
2026-02-10
下载请使用电脑登录欧模网,建议先收藏
收藏
分享
皮肤干燥
关注
为您推荐
门工艺节点大样CAD施工详图集cad施工图
墙面工艺节点大样CAD施工详图集cad施工图
楼梯节点大样详图CAD施工图集cad施工图
吊顶工艺做法节点大样CAD施工详图集cad施工图
地平做法工艺节点大样CAD施工详图集cad施工图
欧式门窗节点大样详图CAD施工图集cad施工图
室内家装节点大样详图CAD施工图集cad施工图
干挂石材节点大样CAD施工详图集cad施工图
钢梯及平台栏杆节点大样CAD施工详图集cad施工图
景观雾喷CAD施工详图集cad施工图
墙体墙身大样CAD施工详图集cad施工图
室内装修标准设计节点大样详图CAD施工图集cad施工图
楼梯踏步台阶阶梯节点大样详图CAD施工图集cad施工图
运动健身器材节点大样CAD详图集cad施工图
码头景观节点详图CAD施工图集cad施工图
景观汀步CAD施工图详图集cad施工图
道路景观绿化CAD施工图详图集cad施工图
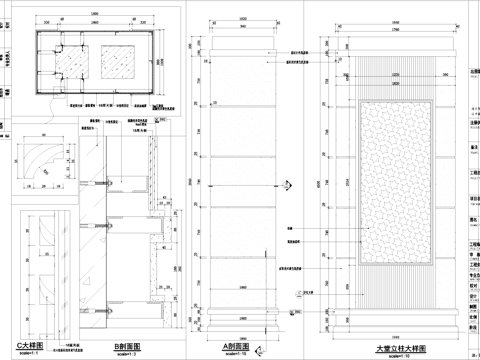
大堂立柱装饰柱联体柱节点大样CAD施工详图集cad施工图
窗帘盒节点大样详图CAD施工图集 7套cad施工图
室内壁炉悬浮柜火焰节点大样详图CAD施工图集cad施工图
点击加载更多
分享到
复制链接
保存海报
取消
请选择收藏夹
+新增收藏夹
新增收藏夹
取消
确认
退出查看