模型详情
1/8
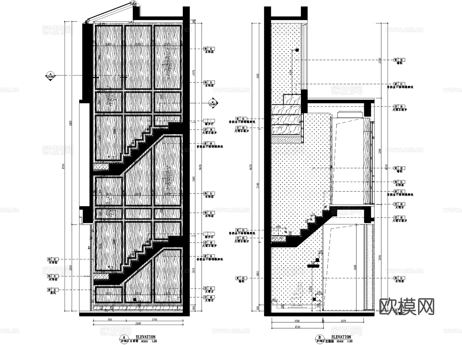
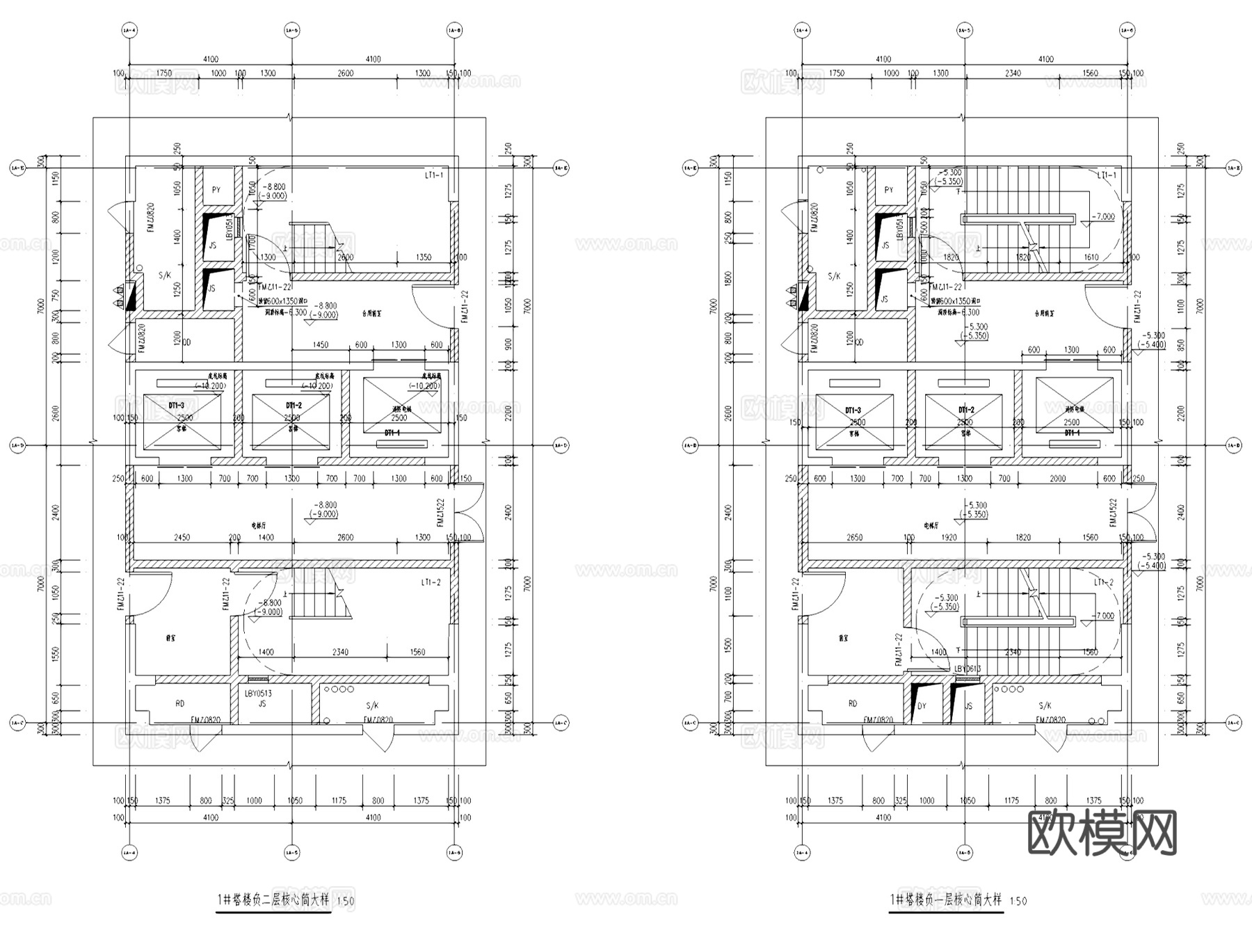
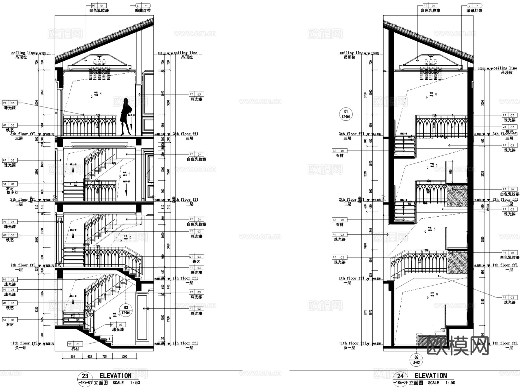
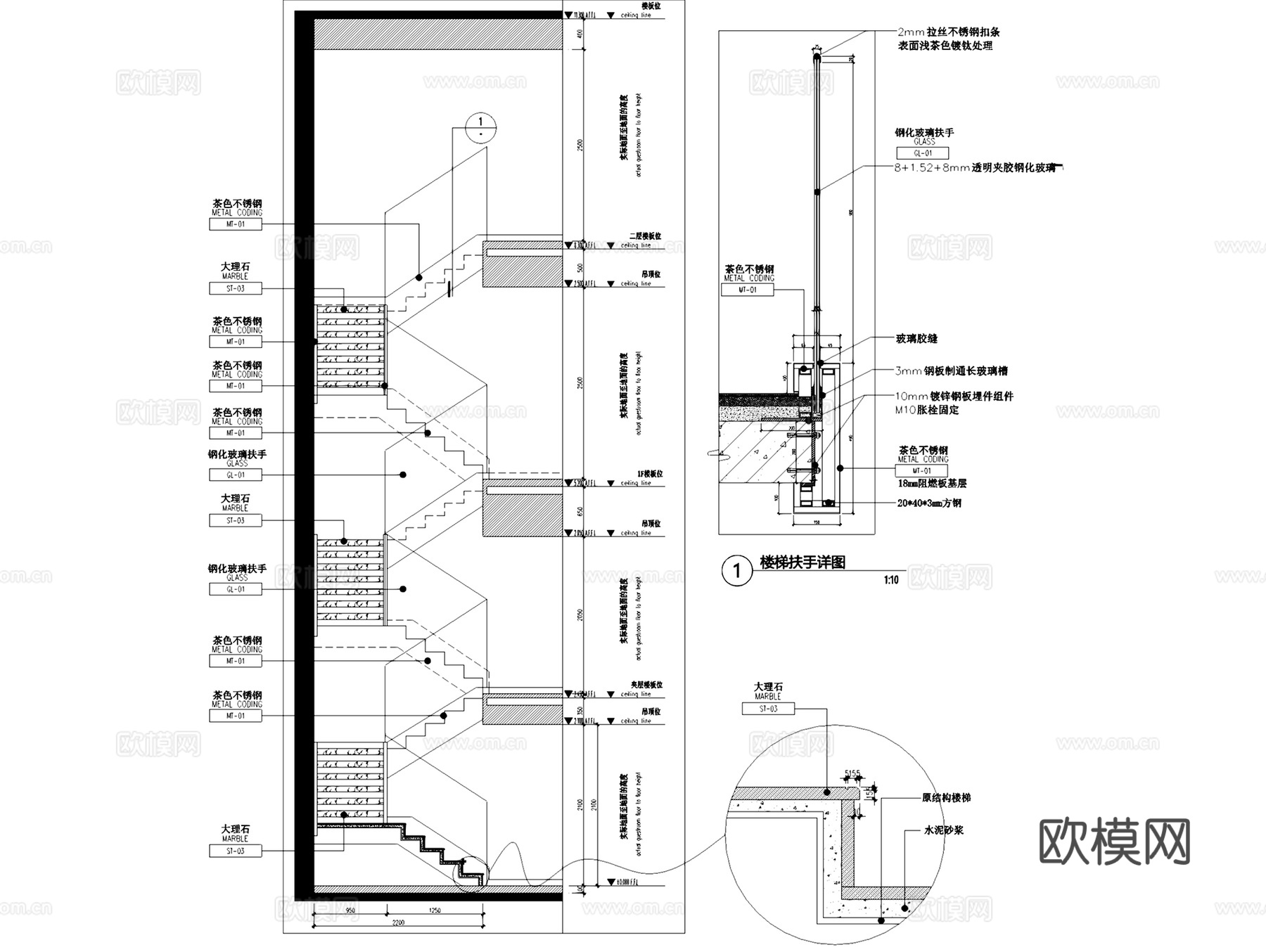
住宅楼电梯楼梯间核心筒爬梯节点CAD施工图集 40套cad施工图
ID:
5401958
住宅楼电梯楼梯间核心筒爬梯节点CAD施工图集 40套cad施工图 ID-5401958
所需欧币:
36
发布时间:
2026-02-10
下载请使用电脑登录欧模网,建议先收藏
收藏
分享
皮肤干燥
关注
为您推荐
旋转楼梯核心筒节点cad施工图
超高标准层核心筒大堂 CAD施工图集 25套cad施工图
楼梯爬梯扶梯电梯节点大样详图CAD施工图集 48套cad施工图
酒店核心筒建筑平面CAD施工图cad施工图
景观节点图集cadcad施工图
码头景观节点详图CAD施工图集cad施工图
金螳螂欧式线条节点CAD施工图集cad施工图
溪涧景观节点大样CAD施工图集cad施工图
点式景观绿化节点CAD施工图集cad施工图
各材料标准墙面工艺节点CAD施工图集cad施工图
墙面工艺节点大样CAD施工详图集cad施工图
门工艺节点大样CAD施工详图集cad施工图
会议中心景观绿化平面及节点CAD施工图集cad施工图
楼梯节点大样详图CAD施工图集cad施工图
居住区景观节点大样CAD施工图集cad施工图
吊顶工艺做法节点大样CAD施工详图集cad施工图
地平做法工艺节点大样CAD施工详图集cad施工图
标准木栈道栏杆景观节点CAD施工图集cad施工图
小区住宅楼居住类建筑CAD施工图集 200套cad施工图
滨水观景平台节点大样CAD施工图集cad施工图
点击加载更多
分享到
复制链接
保存海报
取消
请选择收藏夹
+新增收藏夹
新增收藏夹
取消
确认
退出查看