模型详情
1/8
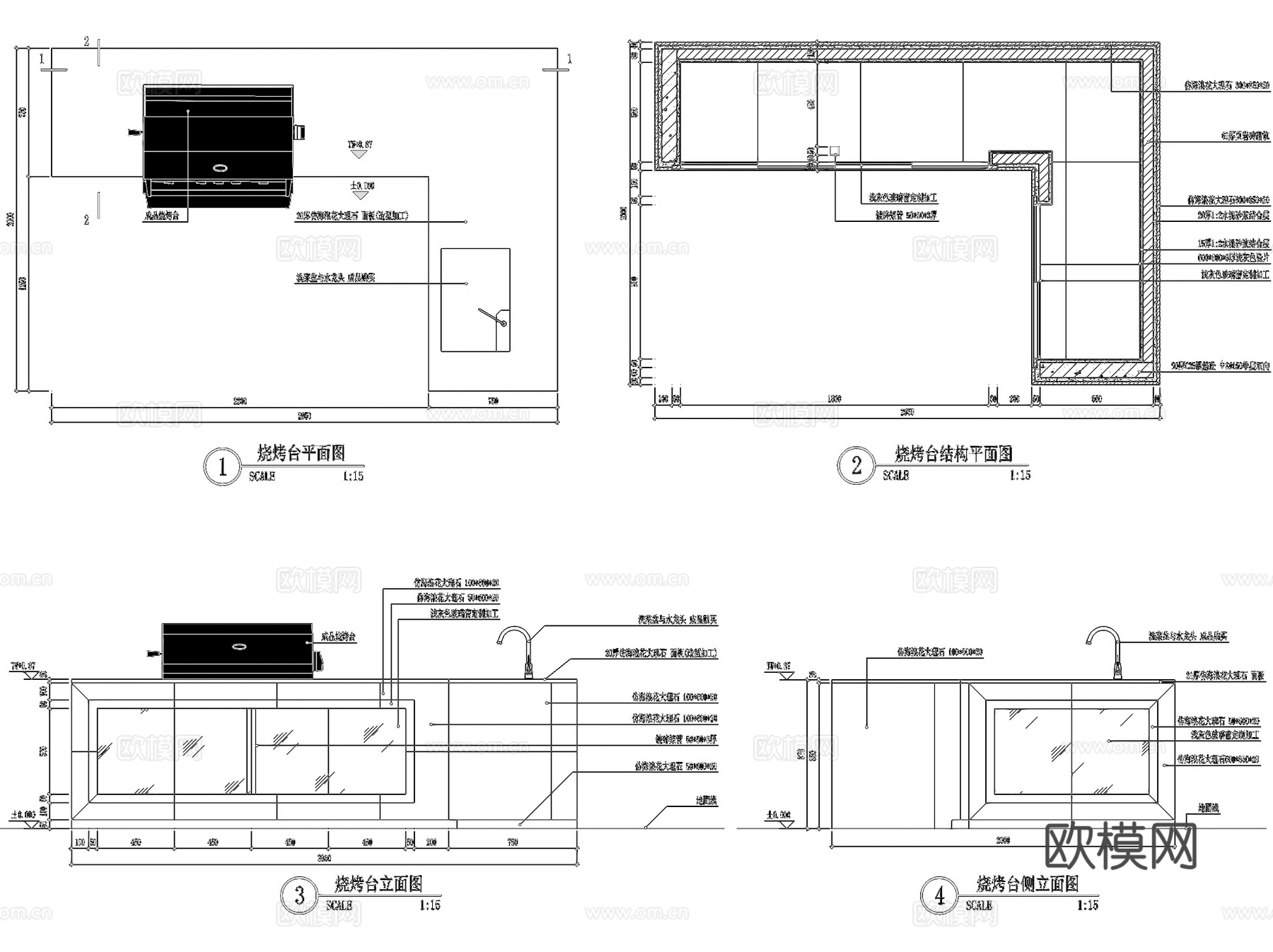
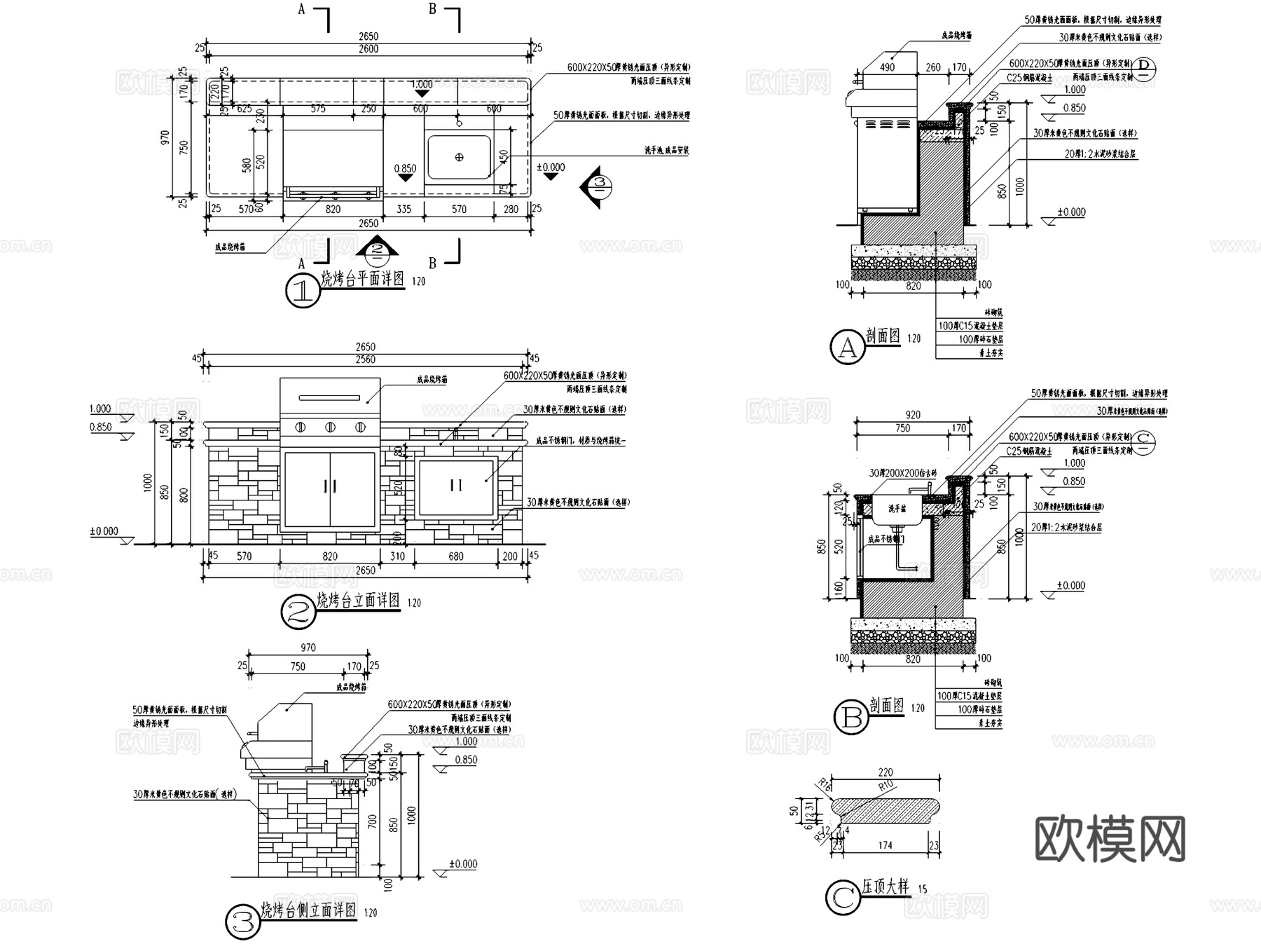
烧烤台操作台烤箱烧烤炉灶台节点CAD施工图集 8套cad施工图
ID:
5406214
烧烤台操作台烤箱烧烤炉灶台节点CAD施工图集 8套cad施工图 ID-5406214
所需欧币:
36
发布时间:
2026-02-12
下载请使用电脑登录欧模网,建议先收藏
收藏
分享
皮肤干燥
关注
为您推荐
烧烤箱烧烤炉CAD图块图库cad施工图
室外烧烤架烧烤炉烧烤台CAD图块图库cad施工图
烧烤架 户外烤炉 野外烧烤炉 庭院烧烤炉 便携烧烤炉cad施工图
景观节点图集cadcad施工图
窗台墙身剖面构造节点详图CAD施工图集cad施工图
码头景观节点详图CAD施工图集cad施工图
金螳螂欧式线条节点CAD施工图集cad施工图
溪涧景观节点大样CAD施工图集cad施工图
点式景观绿化节点CAD施工图集cad施工图
各材料标准墙面工艺节点CAD施工图集cad施工图
墙面工艺节点大样CAD施工详图集cad施工图
门工艺节点大样CAD施工详图集cad施工图
会议中心景观绿化平面及节点CAD施工图集cad施工图
楼梯节点大样详图CAD施工图集cad施工图
居住区景观节点大样CAD施工图集cad施工图
沙发背台节点 CAD施工图cad施工图
炭烤架 木炭烧烤炉 烧烤架 炭烧烤炉 户外炭烤架cad施工图
吊顶工艺做法节点大样CAD施工详图集cad施工图
地平做法工艺节点大样CAD施工详图集cad施工图
标准木栈道栏杆景观节点CAD施工图集cad施工图
点击加载更多
分享到
复制链接
保存海报
取消
请选择收藏夹
+新增收藏夹
新增收藏夹
取消
确认
退出查看