模型详情
1/1
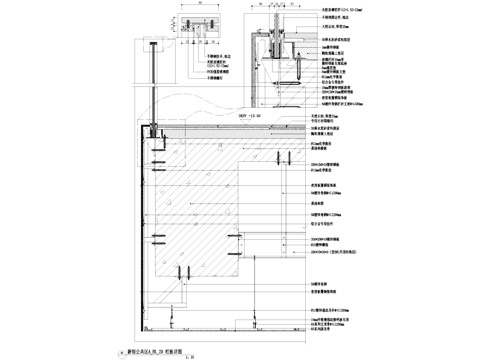
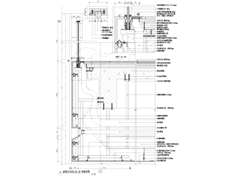
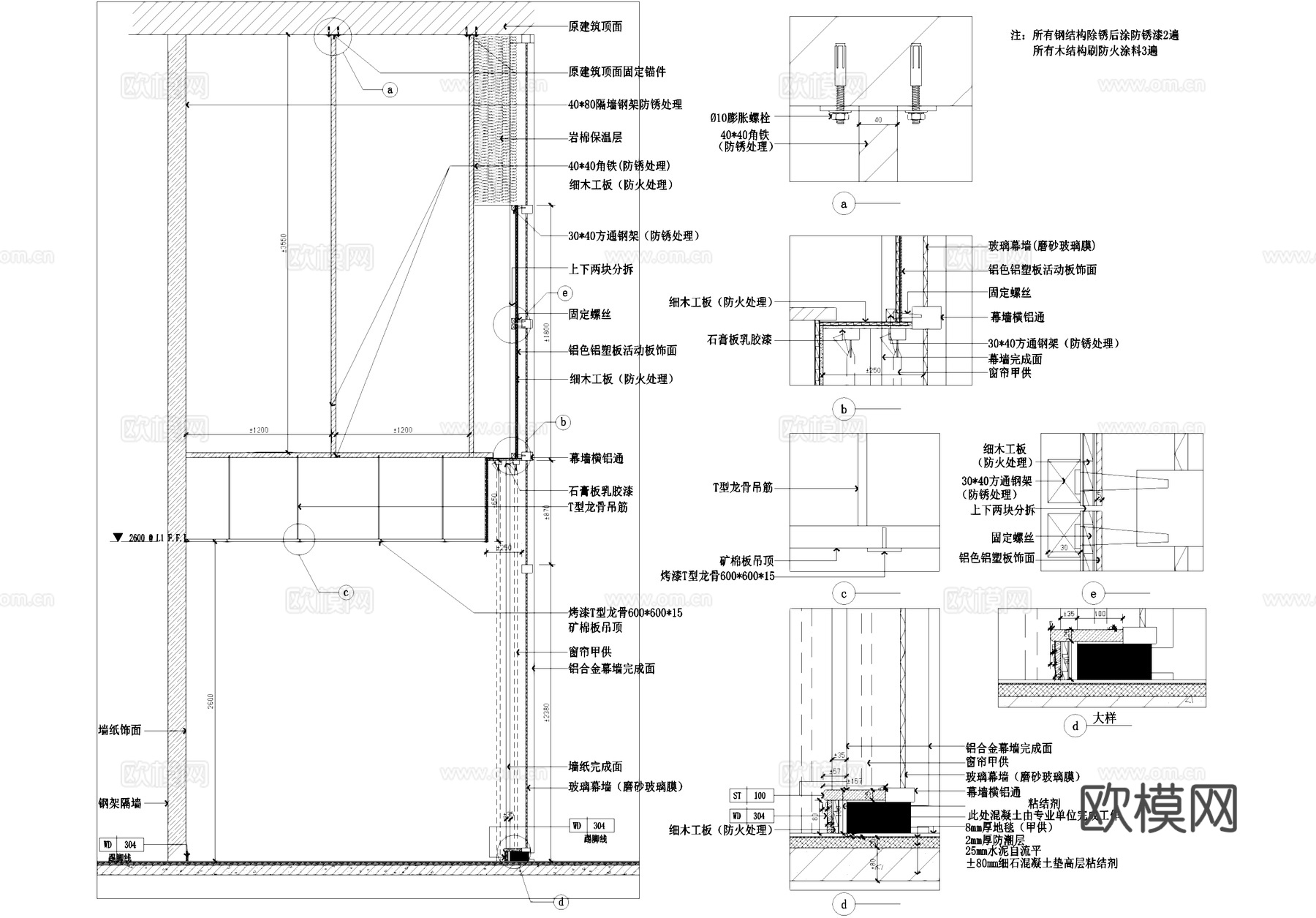
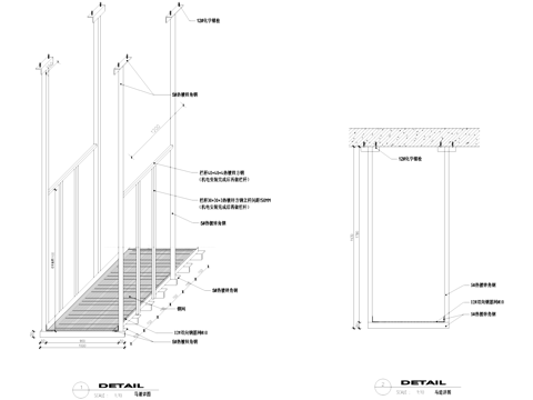
矿棉板吊顶钢结构天花转换层CAD施工图cad施工图
ID:
5406302
矿棉板吊顶钢结构天花转换层CAD施工图cad施工图 ID-5406302
所需欧币:
16
发布时间:
2026-02-12
下载请使用电脑登录欧模网,建议先收藏
收藏
分享
皮肤干燥
关注
为您推荐
吊顶天花钢架转换层CAD施工图cad施工图
吊顶天花钢架转换层CAD施工图cad施工图
双层石膏板吊顶天花钢架转换层节点CAD施工图cad施工图
背栓圆形风口吊顶天花钢架转换层栏板玻璃栏杆CAD施工图cad施工图
背栓圆形风口吊顶天花钢架转换层栏板玻璃栏杆CAD施工图cad施工图
背栓圆形风口吊顶天花钢架转换层栏板玻璃栏杆CAD施工图cad施工图
天花吊顶节点CAD施工图cad施工图
吊顶天花设备检修马道吊挂钢结构CAD施工图cad施工图
天花吊顶节点大样CAD施工图cad施工图
天花吊顶马道详图CAD施工图cad施工图
吊顶天花反向支撑节点CAD施工图cad施工图
天花吊顶 异形吊顶 吊顶节点 顶面节点cad施工图
天花吊顶平面剖面节点详图CAD素材图库cad施工图cad施工图
常用天花吊顶大样节点CAD施工图 100套cad施工图
天花吊顶反支撑做法节点详图CAD施工图cad施工图
吊顶天花钢架反支撑节点CAD施工图cad施工图
桑拿洗浴中心吊顶天花节点CAD施工图cad施工图
欧式顶棚吊顶天花平剖面CAD施工图cad施工图
弧形吊顶 天花吊顶 客厅吊顶 吊顶节点 顶面节点cad施工图
吊顶节点 软膜天花节点cad施工图
点击加载更多
分享到
复制链接
保存海报
取消
请选择收藏夹
+新增收藏夹
新增收藏夹
取消
确认
退出查看