模型详情
1/3
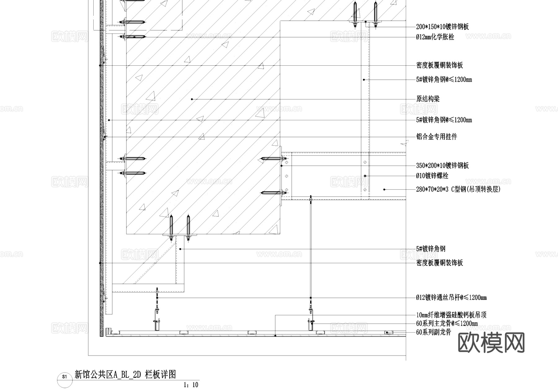
背栓圆形风口吊顶天花钢架转换层栏板玻璃栏杆CAD施工图cad施工图
ID:
5406315
背栓圆形风口吊顶天花钢架转换层栏板玻璃栏杆CAD施工图cad施工图 ID-5406315
所需欧币:
16
发布时间:
2026-02-12
下载请使用电脑登录欧模网,建议先收藏
收藏
分享
皮肤干燥
关注
为您推荐
背栓圆形风口吊顶天花钢架转换层栏板玻璃栏杆CAD施工图cad施工图
背栓圆形风口吊顶天花钢架转换层栏板玻璃栏杆CAD施工图cad施工图
栏板详图(C型钢转换层)背栓圆形风口cad施工图
吊顶天花钢架转换层CAD施工图cad施工图
吊顶天花钢架转换层CAD施工图cad施工图
双层石膏板吊顶天花钢架转换层节点CAD施工图cad施工图
矿棉板吊顶钢结构天花转换层CAD施工图cad施工图
吊顶天花钢架反支撑节点CAD施工图cad施工图
栏板 石栏杆 木栏杆 CAD施工图cad施工图
天花吊顶节点CAD施工图cad施工图
格栅吊顶 圆形金属格栅天花cad施工图cad施工图
圆顶天花风口叠级、圆形软膜天花吊顶、圆弧软膜天花、天空之眼cad施工图
天花吊顶节点大样CAD施工图cad施工图
悬浮吊顶 透光软膜吊顶 大厅天花吊顶 圆形吊顶 顶面节点cad施工图
玻璃栏杆大样CAD施工图cad施工图
玻璃栏杆cad施工图
天花吊顶马道详图CAD施工图cad施工图
吊顶天花反向支撑节点CAD施工图cad施工图
天花吊顶 异形吊顶 吊顶节点 顶面节点cad施工图
天花吊顶平面剖面节点详图CAD素材图库cad施工图cad施工图
点击加载更多
分享到
复制链接
保存海报
取消
请选择收藏夹
+新增收藏夹
新增收藏夹
取消
确认
退出查看