模型详情
1/8
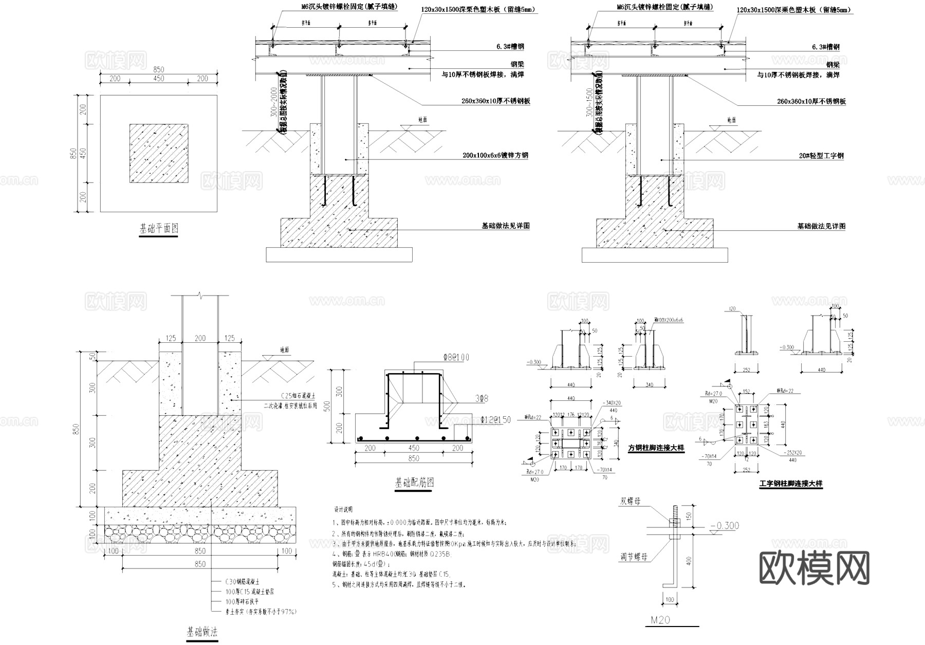
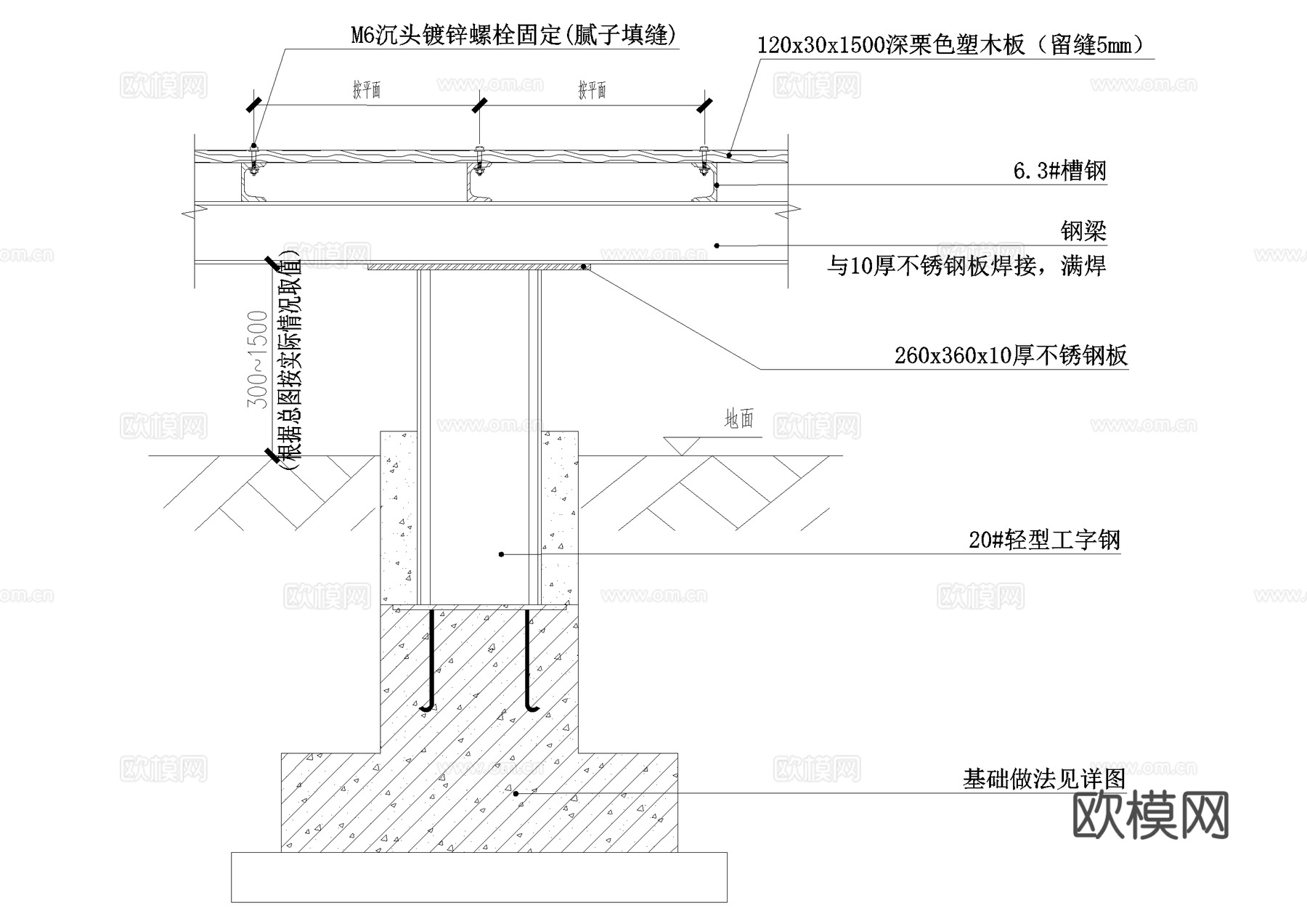
塑木平台 观景台 木栈道 CAD施工图cad施工图
ID:
5406320
塑木平台 观景台 木栈道 CAD施工图cad施工图 ID-5406320
所需欧币:
16
发布时间:
2026-02-12
下载请使用电脑登录欧模网,建议先收藏
收藏
分享
皮肤干燥
关注
为您推荐
塑木平台 观景台 CAD施工图cad施工图
塑木平台 观景台 露营台 木栏杆cad施工图
钓鱼台 木平台 亲水台 观景台 塑木平台 CAD施工图cad施工图
木平台 观景台 CAD施工图cad施工图
塑木平台 悬挑木平台cad施工图
石英塑地板平台 塑木平台 田间农田道路栈道cad施工图
防腐木平台 观景台 CAD施工图cad施工图
塑木平台 端头 台阶 CAD施工图cad施工图
23套塑木碳化木木栈道木平台详图节点图CADcad施工图
防腐木栈道 木平台 CAD施工图cad施工图
空心塑木平台 木平台 石材交接 塑木板拼接 CADcad施工图
木平台 亲水台 观景台cad施工图
木平台 观景台 玻璃栏杆cad施工图
木平台 观景台 玻璃栏杆cad施工图
木平台 亲水台 观景台cad施工图
木平台 亲水台 观景台 挑台cad施工图cad施工图
塑木平台 亲水台 观景台 石材坐凳座凳靠背cad施工图
观景台 木平台 钢结构平台 叶脉叶片观景台 栏杆护栏扶手cad施工图
木平台 钢结构平台 景观木坐凳座凳 观景台cad施工图
塑木平台 钓鱼台 仿木栏杆 亲水台 观景台cad施工图
点击加载更多
分享到
复制链接
保存海报
取消
请选择收藏夹
+新增收藏夹
新增收藏夹
取消
确认
退出查看