模型详情
1/2
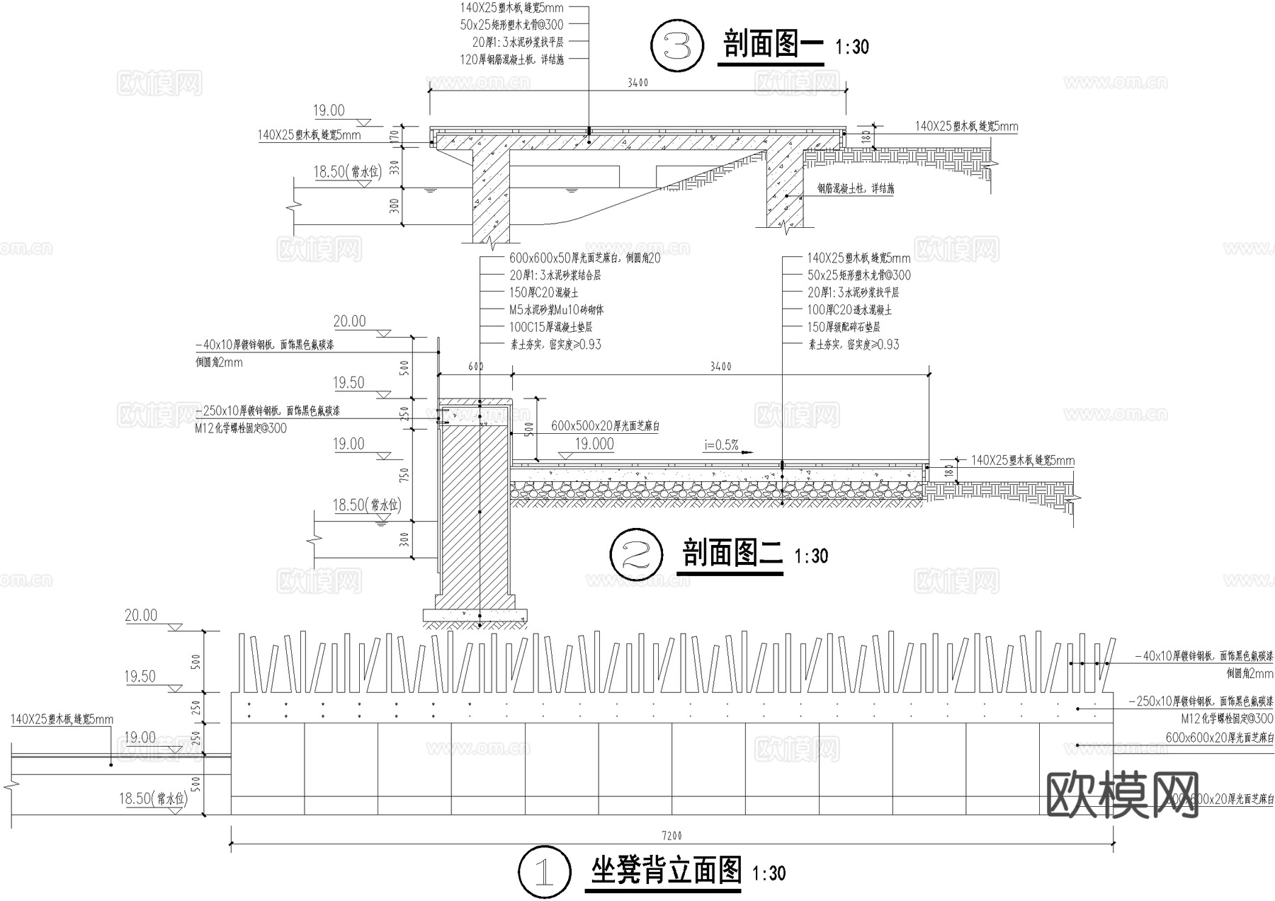
塑木平台 亲水台 观景台 石材坐凳座凳靠背cad施工图
ID:
5411303
塑木平台 亲水台 观景台 石材坐凳座凳靠背cad施工图 ID-5411303
所需欧币:
16
发布时间:
2026-02-24
下载请使用电脑登录欧模网,建议先收藏
收藏
分享
皮肤干燥
关注
为您推荐
木平台 亲水台 观景台cad施工图
钓鱼台 木平台 亲水台 观景台 塑木平台 CAD施工图cad施工图
木平台 亲水台 观景台cad施工图
木平台 钢结构平台 景观木坐凳座凳 观景台cad施工图
塑木平台 钓鱼台 仿木栏杆 亲水台 观景台cad施工图
木平台 亲水台 观景台 挑台cad施工图cad施工图
木平台 亲水台 观景台 钢结构平台 木栏杆扶手cad施工图
塑木平台 观景台 CAD施工图cad施工图
木平台 亲水台 观景台 钢结构平台 麻绳木栏杆cad施工图
塑木平台 观景台 露营台 木栏杆cad施工图
木平台 出挑悬挑平台立面 观景台 亲水台 木栏杆cad施工图
塑木平台 观景台 木栈道 CAD施工图cad施工图
空心塑木平台 木平台 石材交接 塑木板拼接 CADcad施工图
塑木平台 悬挑木平台cad施工图
木平台 观景台 CAD施工图cad施工图
亲水平台及栏杆大样CAD施工详图cad施工图
新中式防腐木坐凳景观座凳cad施工图
观景木平台亲水悬挑平台景观节点CAD施工图集 12套cad施工图
观景台 木平台 钢结构平台 叶脉叶片观景台 栏杆护栏扶手cad施工图
景观坐凳 石凳 花岗岩座凳cad施工图
点击加载更多
分享到
复制链接
保存海报
取消
请选择收藏夹
+新增收藏夹
新增收藏夹
取消
确认
退出查看