模型详情
1/8
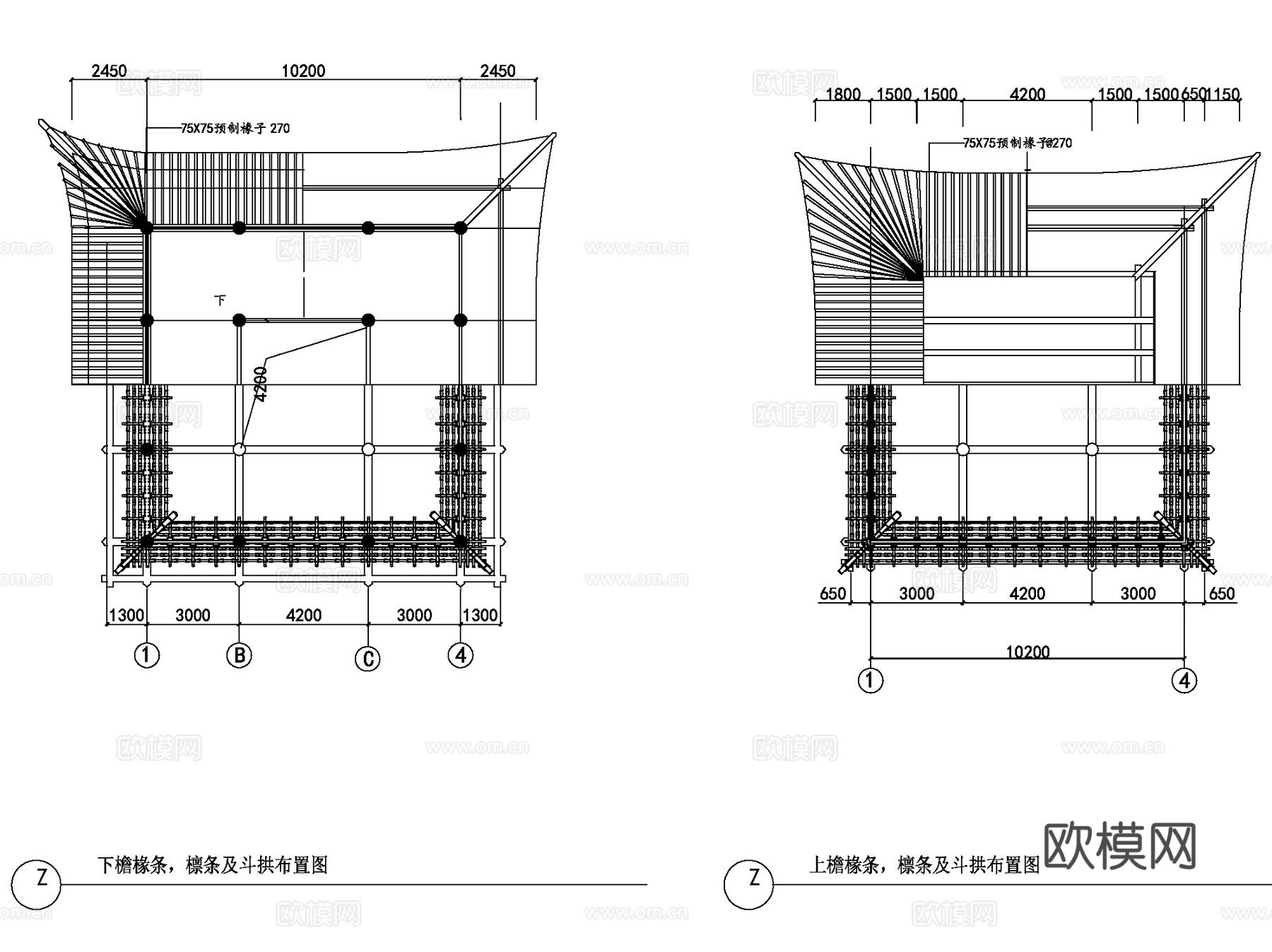
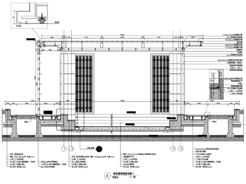
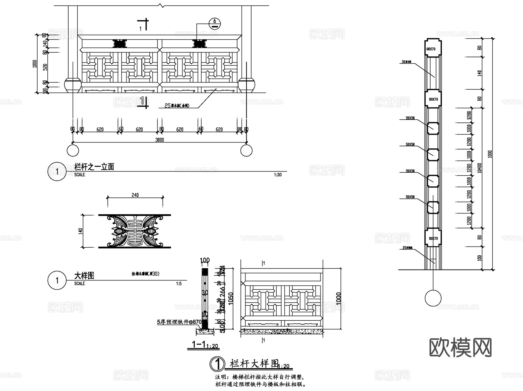
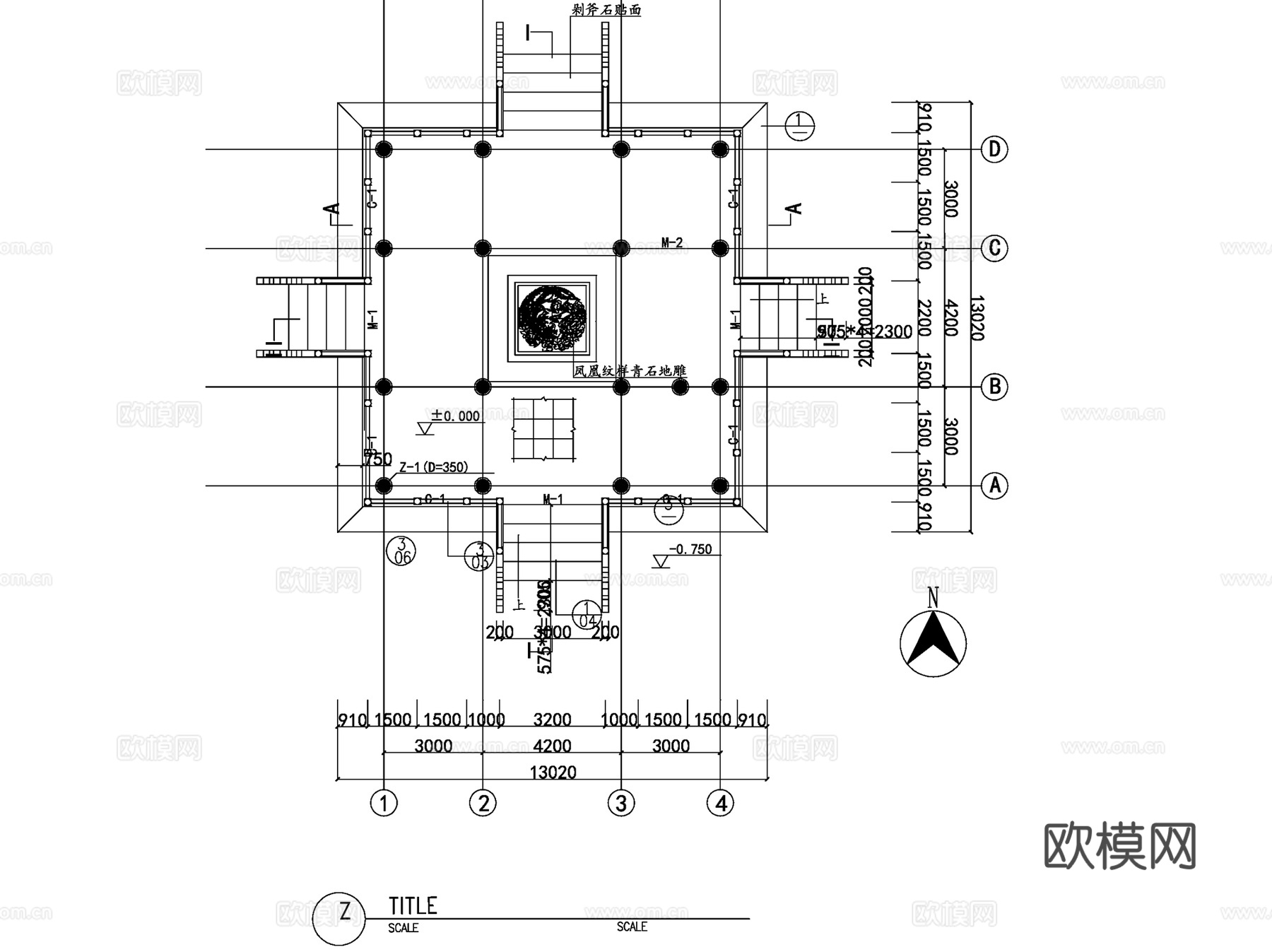
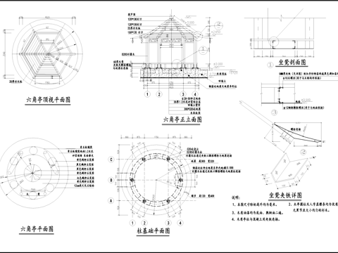
凤凰阁重檐歇山亭古建全套CAD施工图集cad施工图
ID:
5410824
凤凰阁重檐歇山亭古建全套CAD施工图集cad施工图 ID-5410824
所需欧币:
16
发布时间:
2026-02-24
下载请使用电脑登录欧模网,建议先收藏
收藏
分享
皮肤干燥
关注
为您推荐
寺庙 道观大殿仿古建筑 重檐歇山顶cad施工图cad施工图
寺庙 观音堂大殿 仿古建筑 重檐歇山顶cad施工图
汉代庄王阁古建筑CAD施工图集cad施工图
酒店建筑全套CAD施工图集cad施工图
玻璃亭景观大样CAD施工详图集cad施工图
园林中式景观亭茅草亭方亭节点CAD施工图集 24套cad施工图cad施工图
烟雨阁茶社屋顶装修工程CAD施工图集cad施工图
钟楼古建筑测绘CAD施工图集cad施工图
中式寺庙 大雄宝殿建筑结构 重檐歇山顶cad施工图
新中式休闲景观亭凉亭格栅CAD施工图集cad施工图
古建筑塔斗拱CAD施工详图集cad施工图
中式寺庙 大雄宝殿殿堂 重檐歇山顶塑像座cad施工图
园林欧式休闲景观亭大样CAD施工图集 35套cad施工图
园林休闲景观亭凉亭大样CAD施工图集 185套cad施工图
中式仿古建筑 阁楼亭子廊架连廊 三层重檐歇山顶cad施工图
狮子楼古建筑牌坊牌楼CAD施工图集cad施工图
鸿坤理想海岸三套景观亭CAD施工图集cad施工图
亭廊花架围墙景观构件节点CAD施工图集cad施工图
别墅建筑CAD施工图集cad施工图
公交车站候车亭CAD施工图集cad施工图
点击加载更多
分享到
复制链接
保存海报
取消
请选择收藏夹
+新增收藏夹
新增收藏夹
取消
确认
退出查看