模型详情
1/8
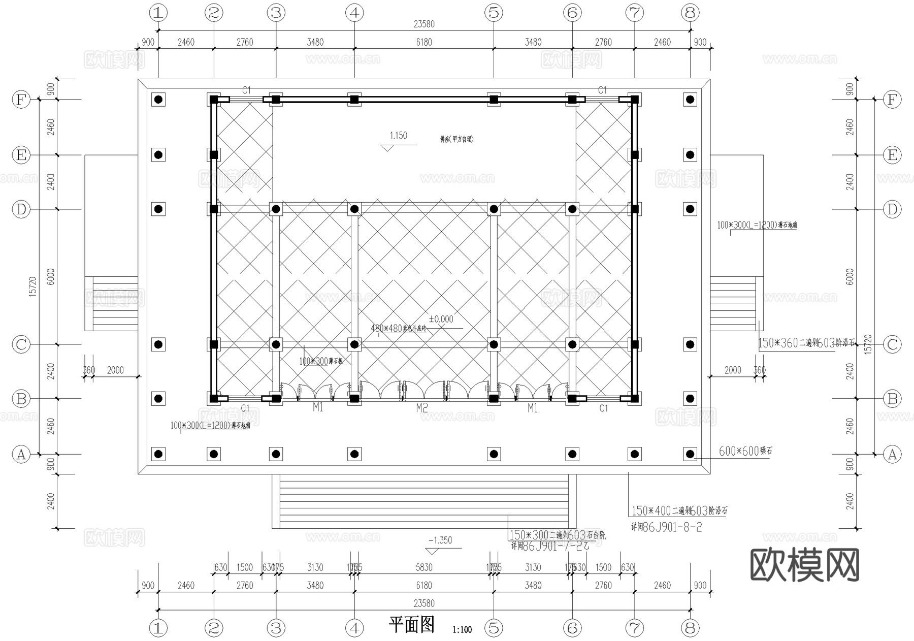
寺庙 道观大殿仿古建筑 重檐歇山顶cad施工图cad施工图
ID:
5412067
寺庙 道观大殿仿古建筑 重檐歇山顶cad施工图cad施工图 ID-5412067
所需欧币:
16
发布时间:
2026-02-24
下载请使用电脑登录欧模网,建议先收藏
收藏
分享
皮肤干燥
关注
为您推荐
寺庙 观音堂大殿 仿古建筑 重檐歇山顶cad施工图
中式寺庙 大雄宝殿建筑结构 重檐歇山顶cad施工图
中式寺庙 大雄宝殿殿堂 重檐歇山顶塑像座cad施工图
中式仿古建筑 阁楼亭子廊架连廊 三层重檐歇山顶cad施工图
中式寺庙 财神殿主殿厢房 三合院 歇山顶硬山顶cad施工图
仿古商业街建筑CAD施工图集cad施工图
商铺仿古商业建筑CAD施工图cad施工图
戏台戏楼仿古建筑CAD施工图cad施工图
凤凰阁重檐歇山亭古建全套CAD施工图集cad施工图
仿古牌坊平立剖面古建筑CAD施工图cad施工图
饭店商铺仿古建筑CAD施工图cad施工图
寺庙陵苑牌楼牌坊古建筑CAD施工详图cad施工图
寺庙 山地仿古建筑 总平面规划图 侧立面图cad施工图
别墅建筑CAD施工图集cad施工图
欧式商住建筑CAD施工图集cad施工图cad施工图
酒店建筑CAD施工图集cad施工图
工业厂房建筑CAD施工图cad施工图
民宿客栈建筑CAD施工图cad施工图
单层食堂建筑CAD施工图cad施工图
健身中心建筑CAD施工图集cad施工图
点击加载更多
分享到
复制链接
保存海报
取消
请选择收藏夹
+新增收藏夹
新增收藏夹
取消
确认
退出查看