模型详情
1/1
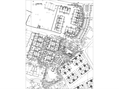
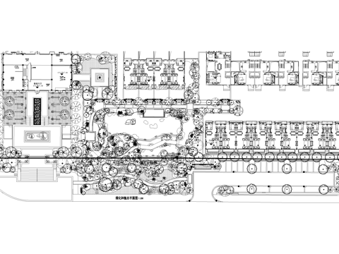
张唐东原惠南示范区展示区景观CAD总图cad施工图
ID:
5411488
张唐东原惠南示范区展示区景观CAD总图cad施工图 ID-5411488
所需欧币:
16
发布时间:
2026-02-24
下载请使用电脑登录欧模网,建议先收藏
收藏
分享
皮肤干燥
关注
为您推荐
样板房展示区示范区景观植物平面CAD施工图cad施工图
张拉膜亭景观结构CAD施工图cad施工图
张拉膜亭景观结构CAD施工图cad施工图
鑫唐佳苑小区景观植物绿化平面CAD施工图cad施工图
示范区景观植物种植绿化配置平立面图 展示区样板区cad施工图cad施工图
张拉膜亭曲桥景观结构节点CAD施工图cad施工图
示范区景观植物种植绿化配置平面图 展示区样板区cad施工图
示范区景观植物种植绿化配置平面图 展示区样板区cad施工图
示范区景观植物种植绿化配置总平面图 展示区样板区cad施工图
示范区景观植物种植绿化配置总平面图 展示区样板区cad施工图
张拉膜亭建筑结构CAD施工图cad施工图
南派古典牌坊牌楼古建筑CAD施工图cad施工图cad施工图
线稿风鸟瞰人物CAD(21张)cad施工图
展示区园建工程景观设计说明cad施工图
8套示范区景观住宅居住区景观CAD施工图附效果图cad施工图
归原衡山造物文创店室内工装CAD施工图cad施工图
景观桥CAD施工图cad施工图
零食惠零食店室内工装CAD施工图cad施工图
景观雕塑CAD施工图cad施工图
东兰路奶油风美甲店室内工装CAD施工图cad施工图
点击加载更多
分享到
复制链接
保存海报
取消
请选择收藏夹
+新增收藏夹
新增收藏夹
取消
确认
退出查看