模型详情
1/2
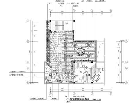
展示区园建工程景观设计说明cad施工图
ID:
5411611
展示区园建工程景观设计说明cad施工图 ID-5411611
所需欧币:
16
发布时间:
2026-02-24
下载请使用电脑登录欧模网,建议先收藏
收藏
分享
皮肤干燥
关注
为您推荐
景观植物绿化种植施工设计说明CAD施工图集cad施工图
住宅小区景观设计说明cad施工图
给排水设计说明 施工设计说明 景观设计说明 园林绿化给排水cad施工图
给排水景观绿化施工设计说明cad施工图
阳台花园景观CAD施工图集cad施工图
样板房展示区示范区景观植物平面CAD施工图cad施工图
丽景园公园景观CAD平面施工图cad施工图
植物园景观绿化CAD平面施工图cad施工图
海丰锦绣园公园景观平面CAD施工图cad施工图
农业生态观光园景观平面CAD施工图cad施工图cad施工图
景观园路道路铺装节点CAD施工图cad施工图
植物园景观绿化种植平面CAD施工图cad施工图
曙光软件园临湖景观平面CAD施工图cad施工图
世博会广东粤晖园景观平面CAD施工图cad施工图
现代屋顶花园景观CAD施工图cad施工图
岩石园景观植物绿化平面CAD施工图cad施工图
示范区 给排水设计说明 景观设计说明 管道阀门井检查井cad施工图
张唐东原惠南示范区展示区景观CAD总图cad施工图
增城区乡村绿化美化工程景观升级改造CAD施工图cad施工图
别墅屋顶花园景观平面CAD施工图cad施工图
点击加载更多
分享到
复制链接
保存海报
取消
请选择收藏夹
+新增收藏夹
新增收藏夹
取消
确认
退出查看